Soccer reality

Prodej rodinného domu, Šestajovice, Potoční, 320 m2

Potoční, Šestajovice

22 990 000 Kč
/za nemovitost
včetně provize, právního a hypotečního servisu
Hypotéka od 102 751 Kč /měs. Chci hypotéku

Parametry domu

AdresaPotoční, Šestajovice
StavbaCihlová
Stav objektuVelmi dobrý
VybavenoAno
Druh objektuRohový
Lokalita objektuKlidná část obce
Užitná plocha320 m2
Zastavěná plocha204 m2
Plocha pozemku1014 m2
Plocha zahrady810 m2
Třída energetické náročnostiC - Úsporná
Ukazatel energetické náročnosti79 kWh/m2 za rok
Elektřina230V
PlynPlynovod
OdpadVeřejná kanalizace
KomunikaceAsfaltová
TelekomunikaceTelefon, Internet
DopravaVlak, Dálnice, Silnice, MHD, Autobus
VodaVodovod
Topné tělesoPodlahové vytápění, Radiátory, Krbová kamna, Krb
Zdroj topeníPlynový kondenzační kotel
Zdroj teplé vodyPlynový kondenzační kotel
Garáž
Výtah
Parkování
Bazén

Origo partneři v Šestajovicích

Popis

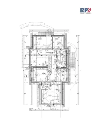
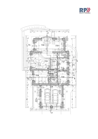
Exkluzivní prodej rodinné vily s dispozicí 8+1/2G/bazén/zahradní domek, užitná plocha 320 m2, pozemek celkem 1014 m2, Potoční ul., Šestajovice.

Dispozice vily je uvedena na půdorysech v obrázkové části inzerce. Při výstavbě byly použity kvalitní materiály, nemovitost je ve velmi dobrém stavu. Topení a ohřev TUV je zajištěno kondenzačním plynovým kotlem, jako přídavné zdroje tepla je zde krb a elektrická kamna. Nadstandardní počet ložnic a 3 koupelny umožňují nemovitost využít i pro vícegenerační bydlení. Vynikající umístění nemovitosti uprostřed vilové zástavby, nulová nutnost případných stavebních úprav, udržovaná zahrada s krytým bazénem a zahradním domkem, bezprostřední blízkost Klánovického lesa a zejména rozumný poměr cena/výkon, to všechno dělá tuto nabídku mimořádně atraktivní.

Šestajovice patří jednoznačně k nejžádanějším lokalitám na východním okraji hlavního města Prahy. Je zde veškerá infrastruktura, školka, škola, lékaři i nákupní možnosti. Velmi dobré spojení MHD (vlak z Klánovic nebo bus na metro B, stanice Černý Most), přímé napojení na Pražský okruh, D10 i D11.

Pro bližší informace kontaktujte makléře nabídky.

Makléř

Máte zájem o tento dům?

Tímto, v souladu s nařízením Evropského parlamentu a Rady (EU) 2016/679, v platném znění, prohlašuji, že mi je alespoň 16 let a uděluji tak svůj souhlas se zpracováním zadaných údajů (jméno, telefon, e-mail, ip adresa) společnosti B3 Technology, s.r.o., IČ: 07330600, se sídlem Novostavby 126/23, 435 11 Lom (správce dat), za účelem předání dotazu z tohoto formuláře Vámi vybranému inzerentovi a zpětného kontaktování mé osoby. Osobní údaje bude správce zpracovávat manuálně i automaticky přímo prostřednictvím svých zaměstnanců. Informace předané tímto formulářem budou uloženy v databázi správce maximálně po dobu 10 let. Odvolání souhlasu s uložením a zpracováním poskytnutých dat lze e-mailem na info@origo-reality.cz. V případě podezření na neoprávněné použití Vámi poskytnutých údajů máte právo předat podnět k šetření Úřadu pro ochranu osobních údajů. Více informací
Chystáte se prodat nemovitost?
Pomůžeme Vám!

Přihlášení k odběru

Nenechte si ujít nejnovější nabídky prodeje rodinných domů v Šestajovicích (okr. Praha-východ).