Prodej rodinného domu, Břeclav, Jaselská, 144 m2

Jaselská, Břeclav

7 800 000 Kč
/za nemovitost
včetně poplatků, včetně provize, včetně právního servisu
Hypotéka od 34 861 Kč /měs. Chci hypotéku

Parametry domu

AdresaJaselská, Břeclav
ID00120
StavbaCihlová
Stav objektuDobrý
VybavenoNe
Typ objektuPatrový
Druh objektuRohový
Lokalita objektuKlidná část obce
Užitná plocha144 m2
Zastavěná plocha209 m2
Podlahová plocha182 m2
Plocha pozemku304 m2
Třída energetické náročnostiG - Mimořádně nehospodárná
Elektřina230V
PlynPlynovod
OdpadVeřejná kanalizace
TopeníÚstřední plynové
KomunikaceAsfaltová
TelekomunikaceInternet
DopravaVlak, Dálnice, Silnice, MHD, Autobus
VodaVodovod
Garáž
Výtah

Origo partneři v Břeclavi

Popis

Hledáte ke koupi dům se dvěma bytovými jednotkami i se dvěma garážemi?

Ve výhradním zastoupení majitelů, Vám zprostředkujeme koupi domu se bytovými jednotkami 2+1 a 4+1 v ulici Jaselská č.p. 180/5A v Břeclavi.

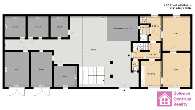
Bytová jednotka bytu 2+1 (1.nadzemní podlaží), užitná plocha bytu 67 m² s celkovou plochou 86,70 m².
Dispozice: předsíň, toaleta, chodba, kuchyň, dva pokoje, chodba a koupelna.

Bytová jednotka 4+1 (2.nadzemní podlaží), užitná plocha bytu 77 m², s celkovou plochou 96 m².
Dispozice: předsíň, technická místnost, koupelna s WC (sprchový kout), kuchyň a čtyři velké pokoje, z toho tři neprůchozí.

Půdorysy obou bytů naleznete ve fotogalerii.

Každá bytová jednotka má vlastní garáž pro osobní automobil a také zděné skladovací prostory ve dvoře. Dvůr je společný pro obě jednotky.

Ihned k dispozici.
Součástí prodejní ceny je také ½ pozemku, na kterém je postavena garáž, skladovací prostory a společný dvůr.

V případě více zájemců o koupi si majitel nemovitosti vyhrazuje právo na výběr kupujícího, dle jeho požadavků.

Zaujala Vás tato nabídka? Máte zájem o prohlídku? Vám vyhovující termín prohlídky (den a čas) s kontakty na Vás (tel. číslo a e-mail) zasílejte na e-mail makléře, formou odpovědi na tuto inzerci. Realitní makléř Vás následně bude telefonicky kontaktovat.

Makléř

Máte zájem o tento dům?

Tímto, v souladu s nařízením Evropského parlamentu a Rady (EU) 2016/679, v platném znění, prohlašuji, že mi je alespoň 16 let a uděluji tak svůj souhlas se zpracováním zadaných údajů (jméno, telefon, e-mail, ip adresa) společnosti B3 Technology, s.r.o., IČ: 07330600, se sídlem Novostavby 126/23, 435 11 Lom (správce dat), za účelem předání dotazu z tohoto formuláře Vámi vybranému inzerentovi a zpětného kontaktování mé osoby. Osobní údaje bude správce zpracovávat manuálně i automaticky přímo prostřednictvím svých zaměstnanců. Informace předané tímto formulářem budou uloženy v databázi správce maximálně po dobu 10 let. Odvolání souhlasu s uložením a zpracováním poskytnutých dat lze e-mailem na info@origo-reality.cz. V případě podezření na neoprávněné použití Vámi poskytnutých údajů máte právo předat podnět k šetření Úřadu pro ochranu osobních údajů. Více informací
Chystáte se prodat nemovitost?
Pomůžeme Vám!

Přihlášení k odběru

Nenechte si ujít nejnovější nabídky prodeje rodinných domů v Břeclavi.