Prodej rodinného domu, Křešice - Sedlec, 204 m2
Sedlec
/za nemovitost
Parametry domu
| Adresa | Sedlec | 
|---|---|
| ID | 24283 | 
| Stavba | Cihlová | 
| Stav objektu | Dobrý | 
| Vybaveno | Ano | 
| Typ objektu | Patrový | 
| Druh objektu | Samostatný | 
| Užitná plocha | 204 m2 | 
| Zastavěná plocha | 235 m2 | 
| Podlahová plocha | 204 m2 | 
| Plocha pozemku | 774 m2 | 
| Plocha zahrady | 540 m2 | 
| Třída energetické náročnosti | G - Mimořádně nehospodárná | 
| Elektřina | 230V, 400V | 
| Odpad | Septik | 
| Topení | Lokální tuhá paliva, Ústřední tuhá paliva | 
| Komunikace | Betonová | 
| Telekomunikace | Internet, Satelit | 
| Doprava | Dálnice, Silnice | 
| Voda | Místní zdroj vody | 
| Garáž | |
| Bezbarierový přístup | |
| Parkování | 
Popis
Hledáte místo, kde opravdu můžete dýchat? Kde každý den začíná výhledem do zeleně a končí tichem venkova, přesto kousek od města?
Vítejte v Sedleci u Litoměřic  v domě, který vás okouzlí nejen prostorem, ale i atmosférou.
Tento prostorný, dvoupodlažní dům o dispozici 4+1 (150 m) s garáží, dílnou, zahradou a možností půdní vestavby je ideální volbou pro rodinný život, víkendový únik i investici. Leží na oploceném pozemku o rozloze 770 m v bezzáplavové, klidné lokalitě.
Dům prošel poslední rekonstrukcí v roce 2025, je zateplený, má  střechu z pálených tašek, dřevěná euro okna, klimatizaci a kamerový a zabezpečovací systém. Stačí se nastěhovat a žít.
 
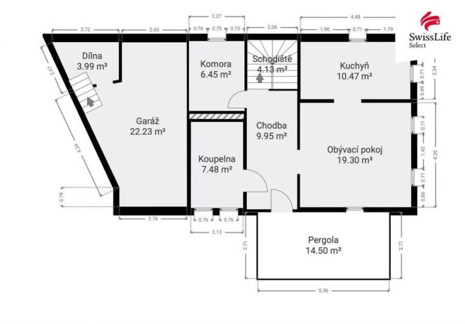
Vnitřní dispozice:
Přízemí:
Stylová kuchyň (10,5 m) propojená s jídelnou
Obývací pokoj s krbovými kamny (20 m)  centrum domácí pohody
Koupelna, komora, prostorná chodba
Vstup do garáže (22 m) a dílny (4 m)  ideální pro kutily 
Patro:
Velkorysý obývací pokoj s pracovnou (35 m)
Ložnice (14 m) a dětský pokoj (23 m)
Navíc: možnost půdní vestavby (další pokoj, ateliér, studio)
 Zahrada  and  pozemek:
540 m zeleně pro odpočinek, zahradničení i zábavu
2 studny + vrtaná studna  vlastní, nezávislý zdroj vody
Oplocený pozemek, soukromí, klid
Výhledy do přírody
Technické zázemí:
Vytápění: kotel na pelety, rozvod do radiátorů
V obýváku: litinová krbová kamna
Klimatizace, kamerový systém, zabezpečovací systém
Podlahy: kvalitní dřevo + dlažba
Satelit,, elektřina
 Dostupnost:
Litoměřice 10 min, Praha 45 min
Dálnice D8 do 15 minut
Výborná dostupnost i bez rušného okolí  dům je v tiché části obce
Bezzáplavová zóna  bezpečná investice i trvalé bydlení
Zaujala vás tato nabídka?
Ozvěte se  rádi vás domem provedeme a pomůžeme vám představit si, jaký by mohl být váš nový domov.
Sedlec vás nadchne klidem i polohou. Těšíme se na osobní setkání!
V případě více zájemců o nemovitost, si majitel vyhrazuje právo prodat nemovitost zájemci s nejvyšší nabídkou.
Přihlášení k odběru
Nenechte si ujít nejnovější nabídky prodeje rodinných domů v Křešicích.
 
                                                                                     
                                                                                     
                                                                                     
                                                                                     
                                                                                     
                                                                                     
                                                                                     
                                                                                     
                                                                                     
                                                                                     
                                                                                     
                                                                                     
                                                                                     
                                                                                     
                                                                                     
                                                                                     
                                                                                     
                                                                                     
                                                                                     
                                                                                     
                                                                                     
                                                                                     
                                                                                     
                                                                                     
                                                                                     
                                                             
                                                             
                                                             
                         
         
         
         
         
         
        