Prodej rodinného domu, Chrudim, Malecká, 162 m2
Malecká, Chrudim IV
/za nemovitost
včetně provize, včetně právního servisu
Parametry domu
| Adresa | Malecká, Chrudim IV | 
|---|---|
| ID | 05765 | 
| Stavba | Cihlová | 
| Stav objektu | Dobrý | 
| Typ objektu | Patrový | 
| Druh objektu | Řadový | 
| Lokalita objektu | Klidná část obce | 
| Užitná plocha | 162 m2 | 
| Plocha pozemku | 528 m2 | 
| Třída energetické náročnosti | G - Mimořádně nehospodárná | 
| Voda | Vodovod, Studna | 
| Sklep | |
| Terasa | 
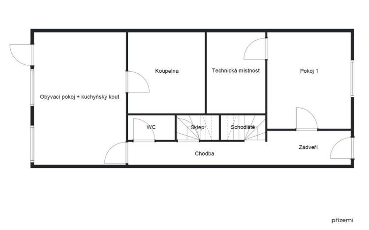
Popis
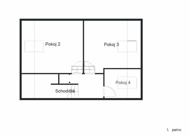
Nabízíme k prodeji prostorný a světlý rodinný dům o dispozici 6+kk, který se nachází v klidné části města Chrudim. 
RD je situován na východní hranici pozemku o celkové velikosti 528 m2.  Jedná se o částečně podsklepený, řadový dům s jedním nadzemním podlažím a obytným podkrovím. Objekt je připojen na veřejné rozvody – vodovod, kanalizace, plyn. Současně disponuje i studnou. Dům je vytápěn plynovým kotlem, který se nachází v technické místnosti (viz plánek přízemí - fotografie).
Dominantní místností domu je obývací pokoj s kuchyňským koutem, z kterého vedou dveře přímo na slunnou terasu, která nabízí ideální zázemí pro grilování či posezení s přáteli.
Dům je ideální volbou pro ty, kteří hledají prostor pro realizaci domova dle vlastních představ. Inzerát obsahuje i několik vizualizací, které slouží jako inspirace pro možnou proměnu prostorů.
V okolí naleznete veškerou občanskou vybavenost, výborná dostupnost do centra města  i nedalekých Pardubic. (20 minut jízdy autem)
Nemovitost lze financovat hypotečním úvěrem, s kterým Vám rádi pomůžeme. 
Více informací u makléře. Budeme se těšit na osobní setkání.
Přihlášení k odběru
Nenechte si ujít nejnovější nabídky prodeje rodinných domů v Chrudimi.
 
                                                                                     
                                                                                     
                                                                                     
                                                                                     
                                                                                     
                                                                                     
                                                                                     
                                                                                     
                                                                                     
                                                                                     
                                                                                     
                                                                                     
                                                                                     
                                                                                     
                                                                                     
                                                                                     
                                                                                     
                                                                                     
                                                                                     
                                                                                     
                                                                                     
                         
         
         
         
         
         
        