Prodej obchodního prostoru, Praha - Košíře, Lerausova, 92 m2 (ID: 1765857)

Lerausova, Praha, Košíře

9 900 000 Kč
/za nemovitost
Hypotéka od 44 247 Kč /měs. Chci hypotéku

Parametry nemovitosti

AdresaLerausova, Praha, Košíře
ID250007
StavbaSkeletová
Stav objektuNovostavba
Patro1. z 6
Užitná plocha92 m2
Zastavěná plocha974 m2
Podlahová plocha92 m2
Třída energetické náročnostiB - Velmi úsporná
Ukazatel energetické náročnosti112 kWh/m2 za rok
Elektřina230V
OdpadVeřejná kanalizace
KomunikaceAsfaltová
DopravaVlak, Dálnice, Silnice, MHD
VodaVodovod
Topné tělesoRadiátory, Kotel na tuhá paliva
Zdroj topeníPlynový kotel
Parkování

Origo partneři v Praze 5

Stěhovací služby

Výkup a prodej starého nábytku

Popis

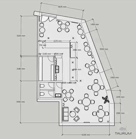
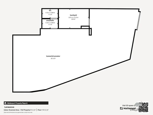
Představuji k prodeji obchodní prostory na adrese Lerausova ul., PrahaKošíře.

Prostory jsou v přízemí novostavby bytového domu a jsou tedy ve vynikajícím stavu.
Dispozice prostoru je velký prodejní prostor o výměře přibližně 81 m2, kuchyňka 7 m2 a WC.
Vytápění je zajištěno radiátory, do prostoru je zavedena elektřina, voda je z obecního rozvodu.
Prostory lze využívat například pro provoz kavárny, vinárny, cukrárny, kanceláří, služeb apod...
V případě zřízení kavárny, vinárny či cukrárny je nutné zajistit rekolaudaci prostor.
Součástí prodeje i jedno parkovací místo před budovou.
K dispozici jsou prostory ihned.
Cena je uvedena včetně DPH.

Kontaktujte mě prosím pro domluvení prohlídky.
Jan Štěpánek
TAURUM reality

Uvedené výměry jsou orientační.

Makléř

Máte zájem o tuto nemovistost?

Tímto, v souladu s nařízením Evropského parlamentu a Rady (EU) 2016/679, v platném znění, prohlašuji, že mi je alespoň 16 let a uděluji tak svůj souhlas se zpracováním zadaných údajů (jméno, telefon, e-mail, ip adresa) společnosti B3 Technology, s.r.o., IČ: 07330600, se sídlem Novostavby 126/23, 435 11 Lom (správce dat), za účelem předání dotazu z tohoto formuláře Vámi vybranému inzerentovi a zpětného kontaktování mé osoby. Osobní údaje bude správce zpracovávat manuálně i automaticky přímo prostřednictvím svých zaměstnanců. Informace předané tímto formulářem budou uloženy v databázi správce maximálně po dobu 10 let. Odvolání souhlasu s uložením a zpracováním poskytnutých dat lze e-mailem na info@origo-reality.cz. V případě podezření na neoprávněné použití Vámi poskytnutých údajů máte právo předat podnět k šetření Úřadu pro ochranu osobních údajů. Více informací
Chystáte se prodat nemovitost?
Pomůžeme Vám!

Přihlášení k odběru

Nenechte si ujít nejnovější nabídky prodeje obchodních prostor v Praze 5.