Pronájem kanceláře, Praha - Karlín, Pobřežní, 125 m2
Pobřežní, Praha 8, Karlín
/za měsíc
+ DPH + služby 120,- Kč/ m2
Parametry nemovitosti
| Adresa | Pobřežní, Praha 8, Karlín | 
|---|---|
| ID | N07725 | 
| Stavba | Cihlová | 
| Stav objektu | Po rekonstrukci | 
| Patro | 3. z 4 | 
| Typ objektu | Patrový | 
| Lokalita objektu | Centrum obce | 
| Vlastnictví | Osobní | 
| Užitná plocha | 125 m2 | 
| Podlahová plocha | 125 m2 | 
| Třída energetické náročnosti | C - Úsporná | 
| Elektřina | 230V | 
| Topení | Ústřední dálkové | 
| Telekomunikace | Kabelové rozvody | 
| Balkon | 
Popis
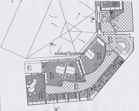
Kancelář 125 m2 s lodžií, která se nachází ve 3. podlaží administrativní budovy s výtahem v Praze 8 - Karlín, 2 min. chůzí od metra Florenc. Jedná se o soubor 4 samostatných kanceláří, po rekonstrukci - vybavená kuchyňka, 2x WC, 3x sklad, na podlahách koberec a dlažba, datové rozvody, ústřední vytápění. Možnost registrace sídla společnosti a pronájmu 2 parkovacích stání, k dispozici také nabíječka pro elektromobil. Pro nájemce je přístup do budovy 24/7. Výborná dopravní dostupnost - 2 min. MHD Metro B a C, zastávka Florenc. K nastěhování dle dohody. Pro více informací volejte manažera nabídky
Přihlášení k odběru
Nenechte si ujít nejnovější nabídky pronájmu kanceláří v Praze 8.
 
                                                                                     
                                                                                     
                                                                                     
                                                                                     
                                                                                     
                                                                                     
                                                                                     
                                                                                     
                                                                                     
                                                                                     
                                                                                     
                                                                                     
                                                                                     
                                                                                     
                                                             
                         
         
         
         
         
        