Pronájem kanceláře, Kopřivnice, Záhumenní, 18 m2

Záhumenní, Kopřivnice

4 600 Kč
/za měsíc
+ záloha na služby Ihned volný prostor!
Získejte výhodnou HYPOTÉKU Chci hypotéku

Parametry nemovitosti

AdresaZáhumenní, Kopřivnice
ID132918
StavbaCihlová
Stav objektuVelmi dobrý
VybavenoAno
Typ objektuPatrový
Lokalita objektuCentrum obce
Užitná plocha18 m2
Třída energetické náročnostiE - Nehospodárná
Elektřina230V
OdpadVeřejná kanalizace
TopeníLokální plynové
DopravaVlak, Silnice, Autobus
VodaVodovod

Origo partneři v Kopřivnici

Popis

Hledáte menší, reprezentativní kancelář s výbornou dostupností a příjemným pracovním prostředím – ať už pro sebe, svého zaměstnance nebo pro jednání s klienty?

Nabízíme k pronájmu komerční prostor o výměře 18 m2 vybavený klimatizací, umístěný ve 2. nadzemním podlaží prestižní budovy na ulici Záhumenní v centru Kopřivnice. V objektu dlouhodobě sídlí renomované společnosti – Česká spořitelna, RBP, advokátní kancelář, architektonické studio a IT firma. Budova se nachází přímo u hlavní komunikace a je ve velmi dobrém technickém stavu.

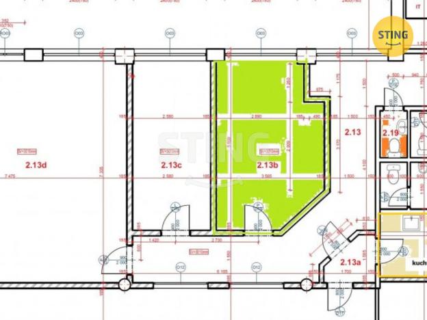
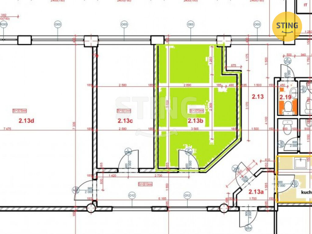
Kancelář č. 2.13b je světlá, s vysokými stropy a poskytuje komfortní pracovní prostředí. Vstup do budovy je zajištěn bočním vchodem.

Součástí pronájmu je společné sociální zařízení a kuchyňka umístěná na patře. Parkování je možné v blízkém okolí budovy.

Do objektu je přiveden vysokorychlostní internet (CETIN), rozvedený do jednotlivých kanceláří. Nájemce si může zvolit libovolného poskytovatele připojení.

V případě zájmu lze pronajmout sklepní prostory pro skladování.

Cena pronájmu:

Nájemné: 4.600,-Kč/měsíc
Záloha na služby: 1.600,-Kč/měsíc
(zahrnuje elektřinu, vodné, stočné, topení a úklid společných prostor)

Více informací a půdorys kanceláře naleznete v přiložených materiálech nebo u makléře realitní kanceláře.

Makléř

Máte zájem o tuto nemovistost?

Tímto, v souladu s nařízením Evropského parlamentu a Rady (EU) 2016/679, v platném znění, prohlašuji, že mi je alespoň 16 let a uděluji tak svůj souhlas se zpracováním zadaných údajů (jméno, telefon, e-mail, ip adresa) společnosti B3 Technology, s.r.o., IČ: 07330600, se sídlem Novostavby 126/23, 435 11 Lom (správce dat), za účelem předání dotazu z tohoto formuláře Vámi vybranému inzerentovi a zpětného kontaktování mé osoby. Osobní údaje bude správce zpracovávat manuálně i automaticky přímo prostřednictvím svých zaměstnanců. Informace předané tímto formulářem budou uloženy v databázi správce maximálně po dobu 10 let. Odvolání souhlasu s uložením a zpracováním poskytnutých dat lze e-mailem na info@origo-reality.cz. V případě podezření na neoprávněné použití Vámi poskytnutých údajů máte právo předat podnět k šetření Úřadu pro ochranu osobních údajů. Více informací
Chystáte se prodat nemovitost?
Pomůžeme Vám!

Přihlášení k odběru

Nenechte si ujít nejnovější nabídky pronájmu kanceláří v Kopřivnici.