Pronájem rodinného domu, Praha - Břevnov, Na zástřelu, 297 m2

Na zástřelu, Praha, Břevnov

75 000 Kč
/za měsíc
Vratná kauce je ve výši 1-3 nájmů (dle způsobu využití RD).
Získejte výhodnou HYPOTÉKU Chci hypotéku

Parametry domu

Náklady na bydlení+ poplatky 15.000,-Kč vč. energií
AdresaNa zástřelu, Praha, Břevnov
ID25014
StavbaCihlová
Stav objektuVelmi dobrý
VybavenoNe
Druh objektuŘadový
Lokalita objektuKlidná část obce
Užitná plocha297 m2
Zastavěná plocha145 m2
Podlahová plocha527 m2
Plocha pozemku262 m2
Plocha zahrady117 m2
Třída energetické náročnostiG - Mimořádně nehospodárná
TelekomunikaceTelefon, Internet
DopravaMHD
Topné tělesoRadiátory
Zdroj topeníPlynový kotel
Zdroj teplé vodyBojler - elektro
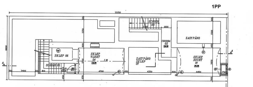
Sklep
Výtah
Bezbarierový přístup

Origo partneři v Praze 6

Stěhovací služby

Výkup a prodej starého nábytku

Popis

Nabídka pronájmu rodinného domu s dispozicí 7+1 se zimní zahradou (297 m2) + terasou (18 m2) + sklepem (100 m2) + zahradou (100 m2) se zahradním domkem (12 m2) - celkem 527 m2, který se nachází v klidné ulici v Praze 6 - Břevnově v blízkosti Kajetánky. Dům je postaven v místě bývalých břevnovských vinic z opuky a z cihel a disponuje 7 pokoji, 1 kuchyní a v každém patře koupelnou a WC - celkem 3x (2x vana, 1x masážní sprch. kout). Dům se nabízí nezařízený nábytkem, vybavena je kuchyň kuch. linkou s vestav. spotřebiči (myčkou, varným panelem, troubou, lednicí s mrazákem, mikrovlnkou). Protože pokoje jsou převážně průchozí, je dům vhodný buď pro rodinné bydlení, nebo např. bydlení v kombinaci s podnikáním v přízemí domu. Prostory lze využít např. pro provozování kanceláře, ordinace, či školky - která zde více než 10let fungovala...
V přízemí domu (1NP), cca 147 m2, jsou umístěny 2 místnosti, kuchyň, koupelna se sprch. koutem, samostatné WC a zimní zahrada.
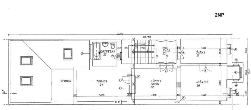
Ve 2NP o velikosti cca 82 m2 jsou umístěny 3 místnosti, terasa, koupelna s vanou a samostatné WC.
Ve 3NP (podkroví) o velikosti cca 68 m2 jsou umístěny 2 místnosti, koupelna s vanou a WC.
V domě je na podlaze položena kvalitní dřevěná podlaha v kombinaci s dlažbou, okna jsou dřevěná - dubová, celý dům je klimatizován, ohřev vody je zajištěn vlastním elektrickým kotlem, vytápění domu je plynem (radiátory + podlahové topení).
Bezpečné parkování auta je před domem (kamerový systém), v pěší dostupnosti je veškerá občanská vybavenost a spousta zeleně. Dům je připraven k nastěhování ihned s možností dlouhodobého pronájmu. Spolu s nájemným 75.000,-Kč platíte měsíčně poplatky ve výši 15.000,-Kč/měs., tj. záloha na el., plyn, vodu a odpad. Vratná kauce je ve výši 1-3 nájmů (dle způsobu využití RD, bude upřesněno na prohlídce) a provize ve výši 50.000,-Kč. PENB není k dispozici, proto je uvedena třida "G". Pokud máte zájem o prohlídku nebo potřebujete další informace, neváhejte mě kontaktovat. Těším se na Vás!

Makléř

Máte zájem o tento dům?

Tímto, v souladu s nařízením Evropského parlamentu a Rady (EU) 2016/679, v platném znění, prohlašuji, že mi je alespoň 16 let a uděluji tak svůj souhlas se zpracováním zadaných údajů (jméno, telefon, e-mail, ip adresa) společnosti B3 Technology, s.r.o., IČ: 07330600, se sídlem Novostavby 126/23, 435 11 Lom (správce dat), za účelem předání dotazu z tohoto formuláře Vámi vybranému inzerentovi a zpětného kontaktování mé osoby. Osobní údaje bude správce zpracovávat manuálně i automaticky přímo prostřednictvím svých zaměstnanců. Informace předané tímto formulářem budou uloženy v databázi správce maximálně po dobu 10 let. Odvolání souhlasu s uložením a zpracováním poskytnutých dat lze e-mailem na info@origo-reality.cz. V případě podezření na neoprávněné použití Vámi poskytnutých údajů máte právo předat podnět k šetření Úřadu pro ochranu osobních údajů. Více informací
Chystáte se prodat nemovitost?
Pomůžeme Vám!

Přihlášení k odběru

Nenechte si ujít nejnovější nabídky pronájmu rodinných domů v Praze 6.