Pronájem kanceláře, České Budějovice, Školní, 349 m2

Školní, České Budějovice

60 000 Kč
/za měsíc
Získejte výhodnou HYPOTÉKU Chci hypotéku

Parametry nemovitosti

AdresaŠkolní, České Budějovice
ID2254
StavbaCihlová
Stav objektuVelmi dobrý
Patro3. z 3
VybavenoNe
Typ objektuPatrový
Lokalita objektuKlidná část obce
Užitná plocha349 m2
Zastavěná plocha610 m2
Podlahová plocha349 m2
Plocha zahrady1000 m2
Třída energetické náročnostiG - Mimořádně nehospodárná
Elektřina400V
PlynPlynovod
OdpadVeřejná kanalizace
KomunikaceAsfaltová
TelekomunikaceInternet
VodaVodovod
Převod do OV
Parkování

Origo partneři v Českých Budějovicích

Výkup a prodej starého nábytku

Pojištění a finance

Popis

REALDOMUS Vám ve výhradním zastoupení majitele zprostředkuje pronájem administrativně obchodních prostor v obchodní zóně v ulici Školní v Českých Budějovicích.

Budova je kompletně zrekonstruována a připravena pro nastěhování nájemce, který si pouze vybere finální úpravu povrchů užitných ploch.

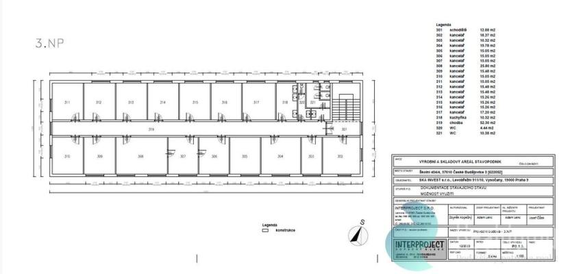
Předmět nájmu se nachází ve 3. NP objektu a sestává z 12 kanceláří, archivu a sociálního zázemí.

Zájmové prostory jsou situovány v uzavřeném areálu, který je přístupný (24/7) elektronicky ovládanou vjezdovou bránou. Areál disponuje dostatečnou parkovací kapacitou jak pro osobní tak i nákladní vozový park.

Bližší technické informace a podmínky pronájmu Vám poskytne REALDOMUS.

Makléř

Máte zájem o tuto nemovistost?

Tímto, v souladu s nařízením Evropského parlamentu a Rady (EU) 2016/679, v platném znění, prohlašuji, že mi je alespoň 16 let a uděluji tak svůj souhlas se zpracováním zadaných údajů (jméno, telefon, e-mail, ip adresa) společnosti B3 Technology, s.r.o., IČ: 07330600, se sídlem Novostavby 126/23, 435 11 Lom (správce dat), za účelem předání dotazu z tohoto formuláře Vámi vybranému inzerentovi a zpětného kontaktování mé osoby. Osobní údaje bude správce zpracovávat manuálně i automaticky přímo prostřednictvím svých zaměstnanců. Informace předané tímto formulářem budou uloženy v databázi správce maximálně po dobu 10 let. Odvolání souhlasu s uložením a zpracováním poskytnutých dat lze e-mailem na info@origo-reality.cz. V případě podezření na neoprávněné použití Vámi poskytnutých údajů máte právo předat podnět k šetření Úřadu pro ochranu osobních údajů. Více informací
Chystáte se prodat nemovitost?
Pomůžeme Vám!
Theleadway banner