Prodej rodinného domu, Pečky, Dobřichovská, 99 m2

Dobřichovská, Pečky

4 126 580 Kč
/za nemovitost
Konečná cena včetně Kupní smlouvy, advokátní úschovy a výhodného úvěru.
Hypotéka od 18 443 Kč /měs. Chci hypotéku

Parametry domu

AdresaDobřichovská, Pečky
ID16493
StavbaSmíšená
Stav objektuPřed rekonstrukcí
VybavenoNe
Typ objektuPřízemní
Druh objektuŘadový
Lokalita objektuCentrum obce
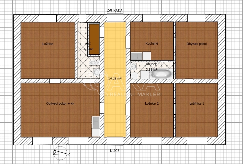
Užitná plocha99 m2
Zastavěná plocha154 m2
Podlahová plocha220 m2
Plocha pozemku261 m2
Plocha zahrady168 m2
Třída energetické náročnostiG - Mimořádně nehospodárná
Elektřina230V, 400V
PlynPlynovod
OdpadVeřejná kanalizace
KomunikaceAsfaltová
DopravaVlak, Silnice, Autobus
VodaVodovod, Studna
Sklep
Převod do OV

Origo partneři v Pečkách

Popis

Nabízím k prodeji rodinný dům v obci Pečky, necelých pět minut pěšky od vlakového a autobusového nádraží. Velmi dobré spojení do Prahy. Autem na Černý Most za půl hodiny a vlakem do centra Prahy za 1 hodinu.

Tento přízemní dům smíšené konstrukce je v řadové zástavbě a nabízí dostatek místností pro velkou rodinu. Celková zastavěná plocha domu činí 154 m², zatímco užitná plocha je 111 m². Součástí parcely je také zahrada za domem o celkové výměře 261 m². Na zahradě je meruňka a ořech. Na hranici pozemku je studna s užitkovou vodou používaná napůl se sousedy.

Dům je před rekonstrukcí, což poskytuje nové možnosti pro úpravy dle individuálních představ budoucího majitele. U domu se nachází sklep s plochou 7 m².

Dům je připojen na obecní vodovod a na kanalizaci. Také na plynovod a elektřinu s napětím 230 V. Internetové přípojka na VDSL, což zajišťuje rychlé a spolehlivé připojení.

Vytápění je řešeno prostřednictvím WAW topných těles, zatímco teplá voda v koupelně se ohřívá po staru v kotli na tuhá paliva. V koupelně je k dispozici vana.

Nemovitost se nachází v příjemném prostředí a při rekonstrukci má potenciál stát se útulným domovem podle individuálních představ.

K domu jsou zpracovány i internetové stránky. Bohužel pravidla Sreality neumožňují dávat přímé internetové odkazy. Pro zaslání adresy internetové stánky tohoto domu mi napište, nebo je adres zveřejněna na jiných inzertních portálech.

V případě zájmu o prohlídku mě neváhejte kontaktovat.
Energetický štítek v kategorii G.

DOTACE:
Pro tento dům máme spočítané dotace z programu NZÚ (Nová zelená úsporám - Oprav dům po babičce) na nová okna, zateplení fasády, zateplení střechy a zateplení podlah a to v předpokládané výši 740.000,- Kč a k tomu podle počtu dětí máte další příspěvky.
Na rekonstrukci z dotací máme připravený i zvýhodněný úvěr se sazbou 2-3%.
Můžete využít i další dotace na fotovoltaiku, tepelné čerpadlo, dešťovku, kotel na biomasu, rekuperaci, zelenou střechu.
Velkou výhodou je, že pro realizaci všech prací je připravena stavební firma. Ta má bohaté zkušenosti s realizací těchto úprav a vše udělá tak, aby byly splněny podmínky dotaci a zároveň všechny dotace vyřídí. Pro Vás je to velká úspora starostí a času.

Makléř

Máte zájem o tento dům?

Tímto, v souladu s nařízením Evropského parlamentu a Rady (EU) 2016/679, v platném znění, prohlašuji, že mi je alespoň 16 let a uděluji tak svůj souhlas se zpracováním zadaných údajů (jméno, telefon, e-mail, ip adresa) společnosti B3 Technology, s.r.o., IČ: 07330600, se sídlem Novostavby 126/23, 435 11 Lom (správce dat), za účelem předání dotazu z tohoto formuláře Vámi vybranému inzerentovi a zpětného kontaktování mé osoby. Osobní údaje bude správce zpracovávat manuálně i automaticky přímo prostřednictvím svých zaměstnanců. Informace předané tímto formulářem budou uloženy v databázi správce maximálně po dobu 10 let. Odvolání souhlasu s uložením a zpracováním poskytnutých dat lze e-mailem na info@origo-reality.cz. V případě podezření na neoprávněné použití Vámi poskytnutých údajů máte právo předat podnět k šetření Úřadu pro ochranu osobních údajů. Více informací
Chystáte se prodat nemovitost?
Pomůžeme Vám!

Přihlášení k odběru

Nenechte si ujít nejnovější nabídky prodeje rodinných domů v Pečkách.