Prodej rodinného domu, Praha - Lochkov, K úvozu, 62 m2

K úvozu, Praha-Lochkov, Praha 5

12 990 000 Kč
/za nemovitost
cena je vč. odměny RK
Hypotéka od 58 057 Kč /měs. Chci hypotéku

Parametry domu

AdresaK úvozu, Praha-Lochkov, Praha 5
ID651194
StavbaCihlová
Stav objektuNovostavba
Typ objektuPatrový
Druh objektuSamostatný
Lokalita objektuKlidná část obce
Užitná plocha62 m2
Zastavěná plocha81 m2
Podlahová plocha62 m2
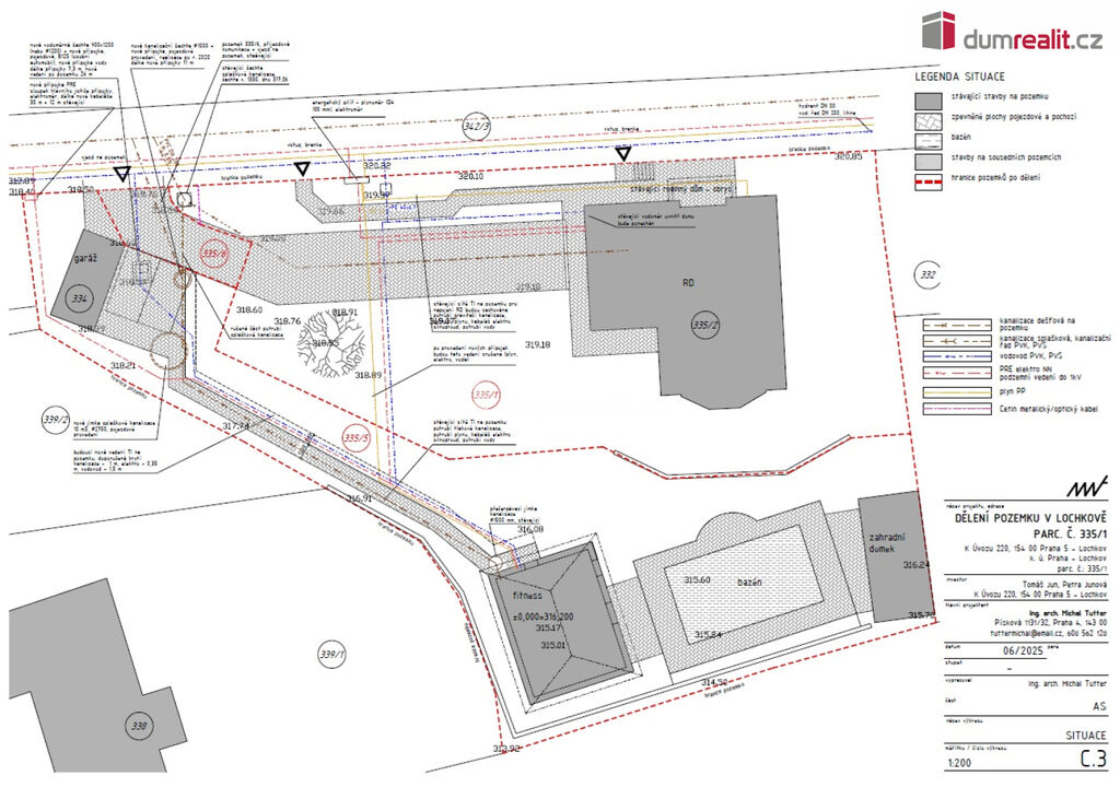
Plocha pozemku837 m2
Třída energetické náročnostiC - Úsporná
Ukazatel energetické náročnosti98 kWh/m2 za rok
TopeníLokální elektrické
Balkon
Garáž
Terasa
Parkování
Bazén

Origo partneři v Praze 5

Stěhovací služby

Výkup a prodej starého nábytku

Popis

Hledáte menší rodinný dům s dispozicí 3+kk v Praze, ideálně s bazénem a garáží? Mám zde pro vás exkluzivní nabídku domu z roku 2017, v ulici K Úvozu, Praha 5 – Lochkov. Tento moderní dům s dispozicí 3+kk, garáží a 3 x parkovacím stáním, pozemkem 837 m² je ideální volbou pro ty, kteří hledají menší dům v top stavu, navíc s velkým bazénem zn. Desjoyaux - 10 x 5 x 1,5m hloubka. Dispozici domu tvoří – obývací pokoj 24,9 m², pokoj 13 m², ložnice 9 m², chodba 3,3 m², koupelna 3,4 m², WC 1,8 m² a technická místnost 3 m². Topení domu bude zajištovat elektrokotel a ohřev vody elektrický bojler, lze instalovat solární panely. Dům má nově vlastní sítě – vlastní elektrickou přípojku, vodovod, odpad bude do vlastní jímky (časem lze dopojit na kanalizaci - aktuálně je stopstav s čističkou v Lochkově). K domu patří zděná garáž (22 m²) a zahradní domek (10 m²) s 15 m² altánem pro posezení, 3 x parking na vlastním pozemku a ½ příjezdové cesty (20,5 m²). Na KN je vše řádně zapsané a rozdělěné. U tohoto domu je možnost přístavby - rozšíření, je v osobním vlastnictví, lze ji financovat hypotečním úvěrem, je v TOP stavu a připravena dle dohody k nastěhování. V ceně domu a domku jsou kuchyně + spotřebiče, vestavěné skříně a osvětlení, ostatní dle dohody – více info v RK. V případě zájmu lze koupit větší dům hned vedle, 6+kk, 261 m², pozemek 1081,5 m². V okolí domu je absolutní klid, zastávka MHD (bus č. 120 – Lochkov je 2 minuty od domu, potraviny také do 5 minut pěšky, dále je v pražské části Lochkov – obecní úřad, fotbalové hřiště, tenisové kurty, venkovní posilovna, městská policie, mateřská školka, autem pak na Pražský okruh 5 minut. Ev. číslo: 650580.

Makléř

Máte zájem o tento dům?

Tímto, v souladu s nařízením Evropského parlamentu a Rady (EU) 2016/679, v platném znění, prohlašuji, že mi je alespoň 16 let a uděluji tak svůj souhlas se zpracováním zadaných údajů (jméno, telefon, e-mail, ip adresa) společnosti B3 Technology, s.r.o., IČ: 07330600, se sídlem Novostavby 126/23, 435 11 Lom (správce dat), za účelem předání dotazu z tohoto formuláře Vámi vybranému inzerentovi a zpětného kontaktování mé osoby. Osobní údaje bude správce zpracovávat manuálně i automaticky přímo prostřednictvím svých zaměstnanců. Informace předané tímto formulářem budou uloženy v databázi správce maximálně po dobu 10 let. Odvolání souhlasu s uložením a zpracováním poskytnutých dat lze e-mailem na info@origo-reality.cz. V případě podezření na neoprávněné použití Vámi poskytnutých údajů máte právo předat podnět k šetření Úřadu pro ochranu osobních údajů. Více informací
Chystáte se prodat nemovitost?
Pomůžeme Vám!

Přihlášení k odběru

Nenechte si ujít nejnovější nabídky prodeje rodinných domů v Praze 5.