Prodej rodinného domu, Varnsdorf - Studánka, 175 m2
Varnsdorf, Studánka
/za nemovitost
Parametry domu
| Adresa | Varnsdorf, Studánka | 
|---|---|
| ID | 05753 | 
| Stavba | Cihlová | 
| Stav objektu | Ve výstavbě | 
| Vybaveno | Ne | 
| Typ objektu | Přízemní | 
| Druh objektu | Samostatný | 
| Užitná plocha | 175 m2 | 
| Plocha pozemku | 3336 m2 | 
| Třída energetické náročnosti | G - Mimořádně nehospodárná | 
Popis
Prodej rozestavěného rodinného domu v atraktivní lokalitě – Studánka
V exkluzivním zastoupení nabízíme k prodeji rozestavěnou nemovitost v malebné obci Studánka, nedaleko města Rumburk. Jedná se o hrubou stavbu rodinného domu zasazeného do klidné a přirozeně krásné krajiny Lužických hor, která nabízí ideální prostředí pro bydlení v přírodě s výbornou dostupností městské infrastruktury.
Celková výměra pozemku činí 3 336 m2, z toho zastavěná plocha domu představuje 175 m2. K nemovitosti náleží rozlehlá zahrada, která poskytuje široké možnosti využití – od rekreačního zázemí přes ovocný sad až po vlastní záhony nebo chov drobných hospodářských zvířat.
Stavba je ve fázi hrubé nedokončené konstrukce, což dává budoucímu majiteli jedinečnou příležitost dokončit dům dle vlastních představ a potřeb. Dům byl vystavěn na původní základové desce novostavby z počátku roku 2003. Střecha je z kvalitního hliníkového plechu, osazena plastovými okny značky Samat. Vrata do dvougaráže jsou značky Hörmann, obě s elektrickým pohonem.
Na pozemku je vybudována čistička odpadních vod z doby původní výstavby základové desky (kolem roku 2003), která byla tehdy v provozu. V současné době nebyla testována a její aktuální stav je třeba ověřit. Součástí pozemku je také vrtaná studna, která je plně funkční. Tyto prvky významně přispívají k soběstačnosti a budoucímu komfortu bydlení.
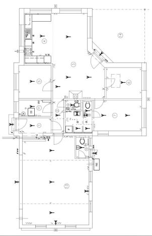
Dispozice domu zahrnuje:
prostorný obývací pokoj s plánovaným kuchyňským koutem,
jednu ložnici se soukromou koupelnou a toaletou,
další dva samostatné pokoje,
druhou koupelnu a samostatné WC,
technické a úložné prostory,
dvougaráž se samostatným vstupem a vlastním WC.
Lokalita Studánka je velmi vyhledávaná pro svou přírodní scenérii, blízkost lesů, turistických i cyklotras a zároveň dobrou dopravní dostupnost do Rumburku, Šluknova i nedalekého Německa. Jedná se o výjimečné místo vhodné pro klidné rodinné bydlení nebo rekreační účely.
Nemovitost je ideální pro zájemce, kteří hledají projekt k dokončení v atraktivní přírodní lokalitě s velkorysým pozemkem.
Financování Vám zajistíme zdarma a za výhodných podmínek. Rádi Vám pomůžeme s kompletním servisem včetně hypotečního poradenství.
Přihlášení k odběru
Nenechte si ujít nejnovější nabídky prodeje rodinných domů v Varnsdorfu.
 
                                                                                     
                                                                                     
                                                                                     
                                                                                     
                                                                                     
                                                                                     
                                                                                     
                                                                                     
                                                                                     
                                                                                     
                                                                                     
                                                                                     
                                                                                     
                                                                                     
                                                                                     
                                                                                     
                                                                                     
                                                                                     
                                                                                     
                                                                                     
                                                                                     
                                                                                     
                                                                                     
                                                                                     
                                                                                     
                                                                                     
                                                                                     
                                                                                     
                                                                                     
                                                             
                                                             
                                                             
                         
         
         
         
         
         
        