Soccer reality

Pronájem obchodního prostoru, Praha - Vysočany, Poděbradská, 400 m2

Poděbradská, Praha 9

15 €
/za metr čtvereční / měsíc
Získejte výhodnou HYPOTÉKU Chci hypotéku

Parametry nemovitosti

AdresaPoděbradská, Praha 9
ID962934
StavbaSmíšená
Stav objektuVelmi dobrý
Patro1.
Typ objektuPřízemní
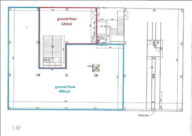
Užitná plocha400 m2
Zastavěná plocha491 m2
Plocha nebytových prostor400 m2
Třída energetické náročnostiG - Mimořádně nehospodárná
Garáž

Origo partneři v Praze 9

Stěhovací služby

Výkup a prodej starého nábytku

Popis

Neplatíte provizi!

Nabízíme k pronájmu flexibilní obchodní prostor o výměře 400 m² v přízemí budovy na adrese Poděbradská 36. Prostory budou k dispozici po domluvě, nejdříve od 1.1.2026. Mají samostatný vstup z ulice, přístup 24/7.

Dispozice a vybavení:
Přízemí
Vlastní vstup z ulice
Světlá výška stropů min. 4 m

Finanční podmínky:
Nájem: 15 EUR/m² (bez DPH)
Služby: v ceně nájmu
Pouze pro plátce DPH

Využití:
✓ vhodné: showroom, sklad, zákaznické centrum, eshop, atd.

Parkování:
Až 38 parkovacích míst v podzemních garážích a další před budovou

Zdarma pro Vás připravíme nabídku kanceláří a obchodních prostor z více jak 300 budov po celé Praze. Těšíme se na kontaktování.

Makléř

Máte zájem o tuto nemovistost?

Tímto, v souladu s nařízením Evropského parlamentu a Rady (EU) 2016/679, v platném znění, prohlašuji, že mi je alespoň 16 let a uděluji tak svůj souhlas se zpracováním zadaných údajů (jméno, telefon, e-mail, ip adresa) společnosti B3 Technology, s.r.o., IČ: 07330600, se sídlem Novostavby 126/23, 435 11 Lom (správce dat), za účelem předání dotazu z tohoto formuláře Vámi vybranému inzerentovi a zpětného kontaktování mé osoby. Osobní údaje bude správce zpracovávat manuálně i automaticky přímo prostřednictvím svých zaměstnanců. Informace předané tímto formulářem budou uloženy v databázi správce maximálně po dobu 10 let. Odvolání souhlasu s uložením a zpracováním poskytnutých dat lze e-mailem na info@origo-reality.cz. V případě podezření na neoprávněné použití Vámi poskytnutých údajů máte právo předat podnět k šetření Úřadu pro ochranu osobních údajů. Více informací
Chystáte se prodat nemovitost?
Pomůžeme Vám!