Prodej rodinného domu, Volfířov, 146 m2

Volfířov, Šach

7 800 000 Kč
/za nemovitost
Hypotéka od 34 861 Kč /měs. Chci hypotéku

Parametry domu

AdresaVolfířov, Šach
ID00061
StavbaCihlová
Stav objektuNovostavba
Druh objektuSamostatný
Lokalita objektuCentrum obce
Užitná plocha146 m2
Zastavěná plocha105 m2
Podlahová plocha146 m2
Plocha pozemku573 m2
Plocha zahrady465 m2
Třída energetické náročnostiB - Velmi úsporná
Elektřina230V
OdpadVeřejná kanalizace
TopeníÚstřední elektrické
VodaVodovod
Zdroj topeníTepelné čerpadlo
Zdroj teplé vodyTepelné čerpadlo
Výtah
Bezbarierový přístup

Origo partneři v Volfířově

Výkup a prodej starého nábytku

Popis

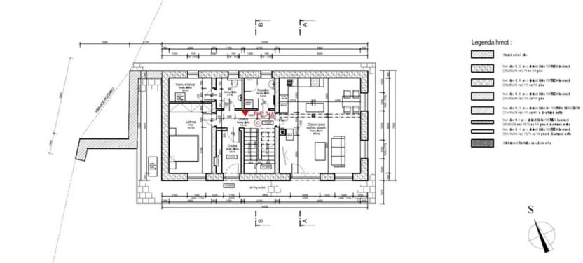
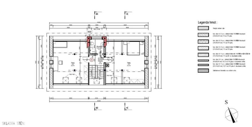
Máte rádi Vysočinu a nemáte čas na výstavbu rodinného domu? Pak právě pro Vás tu budeme mít cca do roka novostavbu rodinného domu 4+kk s jihozápadní orientací v malé vesničce Šach, 10 km od Dačic. Jde o dvoupodlažní cihlový dům s použitím moderních technologií (tepelné čerpadlo, podlahové vytápění) se zaměřením na kvalitu použitých materiálů a praktičnost na rodinné bydlení. V přízemí najdete prostorný obývací pokoj s kuchyňským koutem, ložnici a první koupelnu se sprchovým koutem, v patře pak další 2 pokoje (každý 30 m2) a druhou koupelnu se sprchou. Plastová okna, podlahové vytápění v přízemí, vinylové podlahy + dlažba, tepelné čerpadlo. Energetická náročnost B. Okolo domu malá zahrádka. Pozemek o celkové ploše 573 m2. Objekt bude napojen na všechny inženýrské sítě kromě plynu. Předpokládaný termín dokončení léto 2026.

Makléř

Máte zájem o tento dům?

Tímto, v souladu s nařízením Evropského parlamentu a Rady (EU) 2016/679, v platném znění, prohlašuji, že mi je alespoň 16 let a uděluji tak svůj souhlas se zpracováním zadaných údajů (jméno, telefon, e-mail, ip adresa) společnosti B3 Technology, s.r.o., IČ: 07330600, se sídlem Novostavby 126/23, 435 11 Lom (správce dat), za účelem předání dotazu z tohoto formuláře Vámi vybranému inzerentovi a zpětného kontaktování mé osoby. Osobní údaje bude správce zpracovávat manuálně i automaticky přímo prostřednictvím svých zaměstnanců. Informace předané tímto formulářem budou uloženy v databázi správce maximálně po dobu 10 let. Odvolání souhlasu s uložením a zpracováním poskytnutých dat lze e-mailem na info@origo-reality.cz. V případě podezření na neoprávněné použití Vámi poskytnutých údajů máte právo předat podnět k šetření Úřadu pro ochranu osobních údajů. Více informací
Chystáte se prodat nemovitost?
Pomůžeme Vám!

Přihlášení k odběru

Nenechte si ujít nejnovější nabídky prodeje rodinných domů v Volfířově.