Pronájem skladu, Blansko, Sušilova, 578 m2
Sušilova, Blansko
/za měsíc
dohodou, bez poplatků, + provize RK, cena k jednání
Parametry nemovitosti
| Adresa | Sušilova, Blansko | 
|---|---|
| ID | 00041 | 
| Stavba | Cihlová | 
| Stav objektu | Velmi dobrý | 
| Vybaveno | Částečně | 
| Typ objektu | Přízemní | 
| Druh objektu | Samostatný | 
| Lokalita objektu | Okraj obce | 
| Užitná plocha | 578 m2 | 
| Třída energetické náročnosti | G - Mimořádně nehospodárná | 
| Elektřina | 230V, 400V | 
| Plyn | Plynovod | 
| Odpad | Veřejná kanalizace | 
| Komunikace | Asfaltová | 
| Doprava | Vlak, Silnice, MHD, Autobus | 
| Voda | Vodovod | 
| Parkování | 
Popis
Skladovací a administrativní prostory k pronájmu – Blansko, ul. Sušilova (Písečná)
K dispozici ihned
Hledáte prostory pro skladování, podnikání nebo administrativu v dobré dostupnosti z Brna? 
Nabízíme k okamžitému pronájmu skladový a provozní objekt v Blansku, lokalita Písečná, na ulici Sušilova.
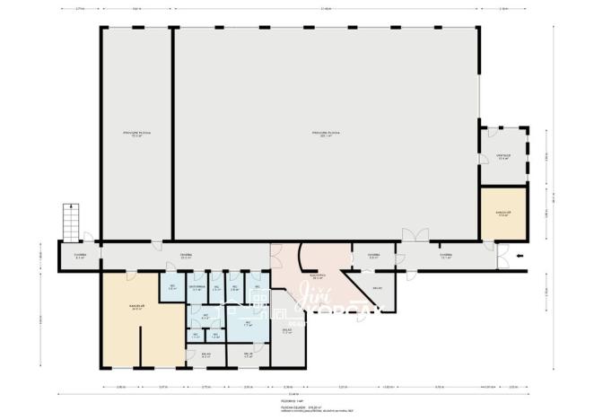
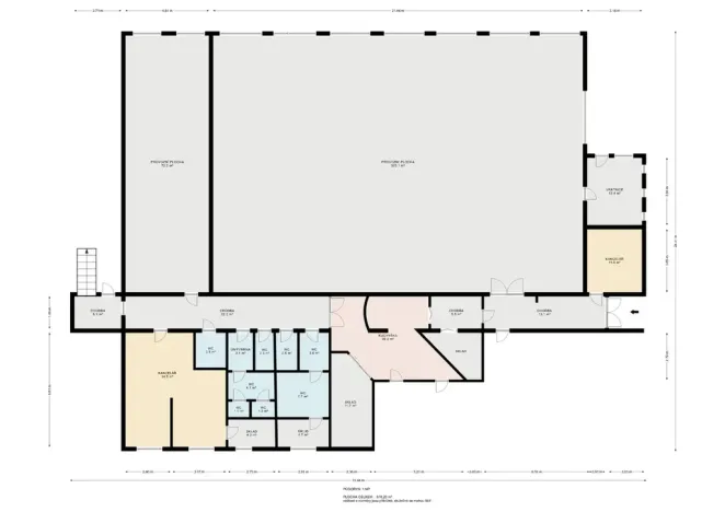
Dispozice objektu:
- Skladová hala o výměře 300 m2 (rozměry 14,5 x 20,4 m) se světlou výškou 7,5 m
- Ideální pro uskladnění zboží na paletách (kapacita cca 300 palet)
- Hala je vybavena regálovým systémem a vysokozdvižným vozíkem – vše v ceně nájmu
Navazující prostor o velikosti 95 m2 – vhodný jako sklad, dílna nebo administrativní zázemí.
Vjezdová vrata v úrovni terénu, elektrické ovládání
Další prostory:
- Kancelářské a provozní místnosti: 241 m2
- Sociální zařízení (včetně sprch): 38 m2
- Kuchyňka k dispozici
Vybavení a výhody:
- Betonová podlaha, sklad temperovaný
- ostatní prostory plně vytápěné (vlastní plynová kotelna)
 - možnost umístění velkoplošného reklamního banneru na fasádě (v ceně)
- zpevněná parkovací plocha před objektem: 180 m2
Inženýrské sítě: elektřina, plyn, voda, kanalizace
Výborná dopravní dostupnost – pouze 22 km od Brna
Cena pronájmu:
Skladové prostory (400 m2) včetně regálů a VZV: 70 000 Kč/měsíc + energie
Ostatní prostory (280 m2): 20 000 Kč/měsíc + energie
Preferujeme pronájem jako celku, ale v případě zájmu je možné domluvit i částečný pronájem.
V případě zájmu lze halu pronajmout bez vybavení – cena bude upravena. (Demontáž regálů jde k tíži nájemce.)
Finanční podmínky:
Při podpisu nájemní smlouvy se skládají dvě vratné kauce a nájemné na následující měsíc.
Provize realitní kanceláře činí částku odpovídající jednomu měsíčnímu nájmu.
Zaujala vás tato nabídka?
Ozvěte se mi pro více informací nebo si rovnou domluvme prohlídku. 
Rád vám prostory osobně ukážu a zodpovím všechny dotazy.
Přihlášení k odběru
Nenechte si ujít nejnovější nabídky pronájmu skladů v Blansku.
 
                                                                                     
                                                                                     
                                                                                     
                                                                                     
                                                                                     
                                                                                     
                                                                                     
                                                                                     
                                                                                     
                                                                                     
                                                                                     
                                                                                     
                                                                                     
                                                                                     
                                                                                     
                         
         
         
         
         
        