Prodej kanceláře, Pardubice, Školská, 157 m2

Školská, Pardubice, Ohrazenice

Cena na vyžádání
/za nemovitost
info v RK
Získejte výhodnou HYPOTÉKU Chci hypotéku

Parametry nemovitosti

AdresaŠkolská, Pardubice, Ohrazenice
ID00159
StavbaSmíšená
Stav objektuVelmi dobrý
Patro1.
VybavenoNe
Užitná plocha157 m2
Třída energetické náročnostiC - Úsporná
Ukazatel energetické náročnosti115 kWh/m2 za rok
Elektřina230V
OdpadVeřejná kanalizace
KomunikaceDlážděná, Asfaltová
TelekomunikaceInternet
DopravaVlak, Dálnice, Silnice, MHD, Autobus
VodaVodovod
Topné tělesoRadiátory
Zdroj topeníCentrální dálkové
Zdroj teplé vodyCentrální dálkový ohřev
Parkování

Origo partneři v Pardubicích

Pojištění a finance

Popis

Exkluzivně nabízíme kancelářské prostory se skvělým investičním potenciálem, o celkové výměře 157 m2, s vlastním pozemkem (450 m2), parkováním (10 míst) a možností úpravy na ateliéry, v žádané lokalitě Pardubice - Ohrazenice.

Kanceláře jsou rozděleny do dvou objektů.

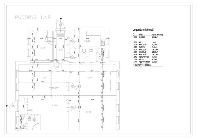
První část je umístěna v přízemí bytového domu (celková výměra 103 m2) a nabízí možnost případné úpravy pro účely bydlení. V současné době je prostor rozdělený na 3 kanceláře, chodbu, kuchyň, halu a sociální zařízení.

Druhá část je v samostatné budově a nabízí kancelářské prostory o výměře 54 m2 (3 kanceláře, kuchyňka, WC).

K dispozici je velký, dlážděný pozemek, který lze využívat na parkování vozidel. Kapacita parkoviště je cca 10 aut.

Celý areál je za vjezdovou bránou a má do něj přístup pouze majitel.

Unikátní nemovitost s velkým investičním potenciálem.

Cenovou nabídku předložíme na základě prohlídky a dle záměru potencionálního kupce.

Makléř

Máte zájem o tuto nemovistost?

Tímto, v souladu s nařízením Evropského parlamentu a Rady (EU) 2016/679, v platném znění, prohlašuji, že mi je alespoň 16 let a uděluji tak svůj souhlas se zpracováním zadaných údajů (jméno, telefon, e-mail, ip adresa) společnosti B3 Technology, s.r.o., IČ: 07330600, se sídlem Novostavby 126/23, 435 11 Lom (správce dat), za účelem předání dotazu z tohoto formuláře Vámi vybranému inzerentovi a zpětného kontaktování mé osoby. Osobní údaje bude správce zpracovávat manuálně i automaticky přímo prostřednictvím svých zaměstnanců. Informace předané tímto formulářem budou uloženy v databázi správce maximálně po dobu 10 let. Odvolání souhlasu s uložením a zpracováním poskytnutých dat lze e-mailem na info@origo-reality.cz. V případě podezření na neoprávněné použití Vámi poskytnutých údajů máte právo předat podnět k šetření Úřadu pro ochranu osobních údajů. Více informací
Chystáte se prodat nemovitost?
Pomůžeme Vám!
Theleadway banner

Přihlášení k odběru

Nenechte si ujít nejnovější nabídky prodeje kanceláří v Pardubicích.