Prodej obchodního prostoru, Zdounky, 88 m2 (ID: 1749625)

Zdounky

2 350 000 Kč
/za nemovitost
Hypotéka od 10 503 Kč /měs. Chci hypotéku

Parametry nemovitosti

AdresaZdounky
IDN00073
StavbaCihlová
Stav objektuDobrý
Užitná plocha88 m2
Podlahová plocha88 m2
Třída energetické náročnostiA - Mimořádně úsporná

Origo partneři v Zdounkách

Popis

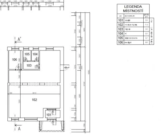
Nabízíme k prodeji atraktivní komerční prostory o výměře 88,5 m², které se nacházejí v přízemí budovy na frekventované ulici v obci Zdounky. Lokalita zajišťuje vysokou viditelnost a ideální možnosti pro umístění vaší reklamy. Dispozice prostoru zahrnuje zádveří (2,9 m²), prostornou prodejní plochu (71,5 m²), předsíň (3,2 m²), ze které je vstup do úklidové místnosti (2,1 m²) a na WC (1,9 m²). V zadní části objektu najdete také kancelář (6,8 m²), která poskytuje dostatek soukromí pro administrativní činnost. Zdounky leží pouhých 10 km od Kroměříže, což zajišťuje výbornou dopravní dostupnost.

Makléř

Máte zájem o tuto nemovistost?

Tímto, v souladu s nařízením Evropského parlamentu a Rady (EU) 2016/679, v platném znění, prohlašuji, že mi je alespoň 16 let a uděluji tak svůj souhlas se zpracováním zadaných údajů (jméno, telefon, e-mail, ip adresa) společnosti B3 Technology, s.r.o., IČ: 07330600, se sídlem Novostavby 126/23, 435 11 Lom (správce dat), za účelem předání dotazu z tohoto formuláře Vámi vybranému inzerentovi a zpětného kontaktování mé osoby. Osobní údaje bude správce zpracovávat manuálně i automaticky přímo prostřednictvím svých zaměstnanců. Informace předané tímto formulářem budou uloženy v databázi správce maximálně po dobu 10 let. Odvolání souhlasu s uložením a zpracováním poskytnutých dat lze e-mailem na info@origo-reality.cz. V případě podezření na neoprávněné použití Vámi poskytnutých údajů máte právo předat podnět k šetření Úřadu pro ochranu osobních údajů. Více informací
Chystáte se prodat nemovitost?
Pomůžeme Vám!

Přihlášení k odběru

Nenechte si ujít nejnovější nabídky prodeje obchodních prostor v Zdounkách.