Prodej rodinného domu, Pardubice, 142 m2 (ID: 1749622)

Pardubice, Drozdice

1 830 000 Kč
/za nemovitost
Hypotéka od 8 179 Kč /měs. Chci hypotéku

Parametry domu

AdresaPardubice, Drozdice
IDN00070
StavbaCihlová
Stav objektuVe výstavbě
Druh objektuSamostatný
Lokalita objektuKlidná část obce
Užitná plocha142 m2
Zastavěná plocha155 m2
Plocha pozemku424 m2
Třída energetické náročnostiC - Úsporná

Origo partneři v Pardubicích

Popis

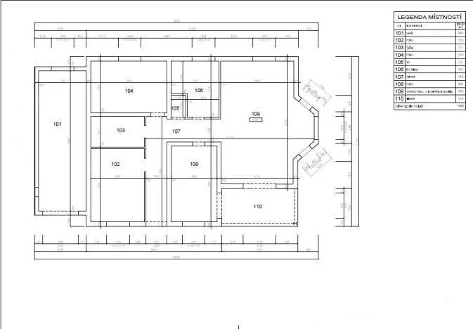
K prodeji nabízíme prostorný rodinný dům ve fázi výstavby, situovaný v klidné části obce Drozdice. Jednopodlažní dům postavený z ytongu je navržen v dispozici 4+kk a poskytuje pohodlné bydlení pro celou rodinu. Vstupní zádveří (4,46 m²) navazuje na technickou místnost (1,2 m²) a prostornou chodbu (10,29 m²). Dále zde najdete pokoj (16,95 m²), praktickou šatnu (7,02 m²), pracovnu (17,12 m²) i komfortní ložnici (16,6 m²). Srdcem domu je prostorný obývací pokoj (30,48 m²) propojený s kuchyní (8,3 m²) a spíží (2,2 m²). K dispozici je rovněž koupelna (8,9 m²) a samostatné WC (1,26 m²).
Pozemek má celkovou rozlohu 424 m², zastavěná plocha činí 155 m². Přípojky elektřiny, plynu a vody se nacházejí na hranici pozemku. Lokalita nabízí skvělou dostupnost – do Chrudimi dojedete za 8 minut, do Pardubic za 10 minut. V blízkosti domu je zastávka MHD č. 12 s přímým spojením do Pardubic. Dům je ve stádiu rozestavěnosti, průkaz energetické náročnosti budovy bude doložen v rámci stavebního povolení.
Drozdice jsou situovány nad pravým břehem řeky Chrudimky, v sousedství chráněných přírodních oblastí Drozdická a Nemošická stráň, které lákají svým bohatstvím fauny a flóry. Ideální místo pro pohodové rodinné bydlení v blízkosti přírody a zároveň s výbornou dostupností do města.

Makléř

Máte zájem o tento dům?

Tímto, v souladu s nařízením Evropského parlamentu a Rady (EU) 2016/679, v platném znění, prohlašuji, že mi je alespoň 16 let a uděluji tak svůj souhlas se zpracováním zadaných údajů (jméno, telefon, e-mail, ip adresa) společnosti B3 Technology, s.r.o., IČ: 07330600, se sídlem Novostavby 126/23, 435 11 Lom (správce dat), za účelem předání dotazu z tohoto formuláře Vámi vybranému inzerentovi a zpětného kontaktování mé osoby. Osobní údaje bude správce zpracovávat manuálně i automaticky přímo prostřednictvím svých zaměstnanců. Informace předané tímto formulářem budou uloženy v databázi správce maximálně po dobu 10 let. Odvolání souhlasu s uložením a zpracováním poskytnutých dat lze e-mailem na info@origo-reality.cz. V případě podezření na neoprávněné použití Vámi poskytnutých údajů máte právo předat podnět k šetření Úřadu pro ochranu osobních údajů. Více informací
Chystáte se prodat nemovitost?
Pomůžeme Vám!

Přihlášení k odběru

Nenechte si ujít nejnovější nabídky prodeje rodinných domů v Pardubicích.