Prodej bytu 2+kk, Živogošće, Chorvatsko, 57 m2
Živogošće
/za nemovitost
8.7.25 cena nav. z 219 000 na 230 000
Parametry bytu
| Adresa | Živogošće | 
|---|---|
| ID | CHŽ-A-S6 | 
| Stavba | Smíšená | 
| Stav objektu | Projekt | 
| Patro | 3. z 4 | 
| Vybaveno | Ne | 
| Vlastnictví | Osobní | 
| Užitná plocha | 57 m2 | 
| Podlahová plocha | 57 m2 | 
| Třída energetické náročnosti | G - Mimořádně nehospodárná | 
| Voda | Vodovod | 
| Lodžie | |
| Výtah | |
| Parkování | 
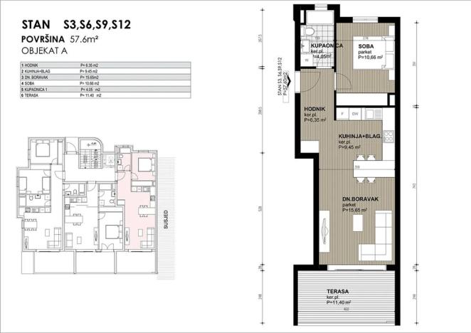
Popis
Dovolujeme si Vám nabídnout na prodej moderní a útulný apartmán s prostornou terasou v malebném dalmatském letovisku Živogošće ležící na slunném pobřeží Makarské riviéry ve Splitské oblasti v Chorvatsku. Apartmán se nachází v čtyřpodlažní moderní apartmánové budově A s výtahem ve výstavbě s celkem 12 apartmány, jejíž dokončení je plánováno na počátek roku 2027.
Nabízený apartmán S6 o  rozloze 46,16 m2 je situovaný v 1. patře a sestává z chodby, koupelny, 1 ložnice, obývacího pokoje s kuchyní a jídelnou  s přístupem na prostornou terasu o velikosti 11,40 m2. K apartmánu náleží 1 venkovní parkovací stání v suterénu budovy.
Apartmán bude vybavený klimatizací v obytných místnostech , roletami na oknech, moderní keramikou, bezpečnostními dveřmi a na přání klienta je možné za příplatek instalovat podlahové vytápění a elektrické žaluzie. Budova bude napojena na vodovodní i kanalizační řád. Vzdálenost k moři a pláži je cca 200 m.
Architektura budovy se vyznačuje moderním a funkčním designem s důrazem na komfort a soukromí obyvatel.
Živogošće Blato je malebné dalmatské letovisko ležící na slunném pobřeží Makarské riviéry, přibližně 23 km jižně od města Makarska, přímo pod majestátními vrcholy pohoří Biokovo. Tato klidná destinace se pyšní nádhernými oblázkovými plážemi s pozvolným stupem do azurově čistého moře a autentickou středomořskou atmosférou, která láká návštěvníky hledající relaxaci i aktivní dovolenou.
Letovisko Živogošće je ideální lokalitou pro investici do moderních apartmánů, které zde na podzim letošního roku začne stavět chorvatská stavební firma s českou účastí. Nabízí dokonalou kombinaci klidu, krásné přírody a komfortu, což z něj činí výjimečné místo pro bydlení i rekreační pobyty.
Objevte kouzlo Živogošće Blato a zažijte pravý středomořský ráj!
Přihlášení k odběru
Nenechte si ujít nejnovější nabídky prodeje bytů 2+kk.
 
                                                                                     
                                                                                     
                                                                                     
                                                                                     
                                                                                     
                                                                                     
                         
         
         
         
         
         
         
         
        