Prodej rodinného domu, Praha - Horní Počernice, Bříšťanská, 218 m2

Bříšťanská, Praha, Horní Počernice

23 750 000 Kč
/za nemovitost
info v RK
Hypotéka od 106 148 Kč /měs. Chci hypotéku

Parametry domu

AdresaBříšťanská, Praha, Horní Počernice
StavbaCihlová
Stav objektuNovostavba
VybavenoNe
Druh objektuSamostatný
Lokalita objektuKlidná část obce
Užitná plocha218 m2
Zastavěná plocha100 m2
Plocha pozemku455 m2
Elektřina230V, 400V
OdpadVeřejná kanalizace
TopeníPodlahové
KomunikaceAsfaltová
TelekomunikaceInternet
DopravaVlak, Dálnice, Silnice, MHD, Autobus
VodaMístní zdroj vody
Garáž
Parkování

Origo partneři v Praze 9

Stěhovací služby

Výkup a prodej starého nábytku

Popis

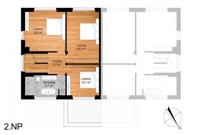
Nabízíme k prodeji nový cihlový RD o dispozici 7+kk s garáží a dalším parkovacím stáním na vlastním pozemku, který se nachází na klidném místě, ve vilkové čtvrti, v ulici Bříšťanská, v Praze Horních Počernicích. Pravá část dvojdomu leží na pozemku o celkové výměře 455m2, zastavěná plocha domu je 99,5m2 a plocha užitná 218m2 vč. garáže. Dům má tři nadzemní podlaží. Dispozice domu - v přízemí domu se nachází zádveří (4m2), hala (5m2), obývací pokoj s kuchyňským koutem (40m2) se vstupem na terasu a zahradu domu, šatna (4m2), samostatné WC s umyvadlem (1,5m2), schodiště s podestou (10m2) a garáž (21m2). V 2. nadzemním podlaží je situována ložnice (20m2), šatna (12m2), dětský pokoj (19m2), koupelna s vanou, sprchovým koutem, umyvadlem a toaletou (10m2), hala se schodištěm (10m2). Ve 3. nadzemním podlaží je situována hala, pracovna (20m2), dva dětské pokoje (20m2 a 12m2), koupelna se sprchovým koutem, umyvadlem a toaletou (10m2). Velká pozornost byla věnována výběru zařizovacích předmětů a vysokému standardu domu. Na podlahách domu je v obytných místnostech použita kvalitní dubová dřevěná podlaha, interiérové dveře jsou bezfalcové, reverzní, v bílém matném laku, v koupelnách je použita italská velkoformátová dlažba, podomítkové baterie, bidetové sprchy u toalet, atd. Vytápění domu je řešeno pomocí podlahového vytápění. Zdrojem tepla je tepelné čerpadlo De Dietrich a krbová kamna s výkonem max. 9KW umístěná v obývacím pokoji. Vlastním zdrojem energie je 5 kusů fotovoltaických panelů od výrobce Meyer Burger o celkovém výkonu 1950 Wp/ks (výroba Švýcarsko/Německo). Vyrobená energie bude prioritně spotřebována v objektu, nevyužité přebytky budou dodány do distribuční sítě. Je počítáno s případným rozšířením panelů na střeše a předělání systému na bateriový. Dům nabízí možnost propojení bydlení a podnikání, případně lze v horním patře vytvořit lehkou úpravou samostatnou bytovou jednotku pro vícegenerační bydlení. Na schodech bude usazeno zábradlí z bezpečnostního skla, které je nyní ještě ve výrobě.  Dům je možno financovat hypotékou! K prodeji je i levá část dvojdomu s pozemkem o výměře 376m2.

Makléř

Máte zájem o tento dům?

Tímto, v souladu s nařízením Evropského parlamentu a Rady (EU) 2016/679, v platném znění, prohlašuji, že mi je alespoň 16 let a uděluji tak svůj souhlas se zpracováním zadaných údajů (jméno, telefon, e-mail, ip adresa) společnosti B3 Technology, s.r.o., IČ: 07330600, se sídlem Novostavby 126/23, 435 11 Lom (správce dat), za účelem předání dotazu z tohoto formuláře Vámi vybranému inzerentovi a zpětného kontaktování mé osoby. Osobní údaje bude správce zpracovávat manuálně i automaticky přímo prostřednictvím svých zaměstnanců. Informace předané tímto formulářem budou uloženy v databázi správce maximálně po dobu 10 let. Odvolání souhlasu s uložením a zpracováním poskytnutých dat lze e-mailem na info@origo-reality.cz. V případě podezření na neoprávněné použití Vámi poskytnutých údajů máte právo předat podnět k šetření Úřadu pro ochranu osobních údajů. Více informací
Chystáte se prodat nemovitost?
Pomůžeme Vám!

Přihlášení k odběru

Nenechte si ujít nejnovější nabídky prodeje rodinných domů v Praze 9.