Prodej pozemku pro bydlení, Kácov, 2010 m2

Kácov

9 980 000 Kč
/za nemovitost
Hypotéka od 44 605 Kč /měs. Chci hypotéku

Parametry pozemku

AdresaKácov
IDN7678
Plocha pozemku2010 m2

Origo partneři v Kácově

Popis

Nabízíme k prodeji jedinečný pozemek o rozloze 2 010 m² s vydaným stavebním povolením, situovaný v atraktivní lokalitě u renomovaného Panorama Golf Resort v Kácově. Tento mírně svažitý pozemek s jihozápadní orientací umožňuje výstavbu moderního rodinného domu s výhledy do přírody a na golfové hřiště.

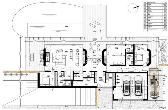
Součástí nabídky je schválený projekt pro solitérní rodinný dům určený k trvalému bydlení. Architektonické řešení reflektuje nejnovější trendy – dům je navržen jako jednopodlažní objekt s pochozí zelenou střechou a dispozicí 4+kk o celkové ploše 435 m². Součástí je prostorná terasa, sauna, biotop, garáž pro dvě auta a velké kryté parkovací stání.

Stavba kombinuje zděnou technologii s ocelovými prvky, fasády využívají přírodní kámen a dřevo. Západní prosklená fasáda propojuje interiér s exteriérem a je chráněna vertikálními dřevěnými lamelami, které zároveň reflektují estetiku golfové klubovny. Součástí domu je tepelné čerpadlo, extenzivní vegetační střecha a řešení důrazu na udržitelnost a komfort. Pozemek má zajištěné napojení na obecní vodovod a elektro přípojku. Bližší informace a možnosti poskytneme na vyžádání.

Pozemek umožňuje dle územního plánu s koeficientem 0,4 postavit stavbu o dvou podlažích plus obytné podkroví.

Obec Kácov, nacházející se v malebné krajině Posázaví (okres Kutná Hora), je vyhledávanou lokalitou pro milovníky klidu, přírody i aktivního životního stylu. Pozemek přímo sousedí s Panorama Golf Resortem, který patří mezi nejprestižnější golfová hřiště v České republice. V resortu jsou k dispozici špičková sportovní zázemí, několik hřišť pro různé sporty, wellness, krytý a přírodní venkovní bazén.

Okolí nabízí krásné výhledy, lesy, řeku Sázavu i historické památky – včetně zámku Kácov a barokního kostela. V obci je k dispozici základní občanská vybavenost: obchody, restaurace, škola, vlakové spojení.

Dopravní dostupnost je výborná – pouhých 5 minut od sjezdu z D1 a přibližně 35 minut jízdy z Prahy.

Tato nemovitost představuje ideální příležitost pro ty, kdo hledají spojení kvalitního bydlení s přírodou a sportem. Lokalita se těší rostoucímu zájmu a nabídka podobných pozemků je velmi omezená.

Makléř

Máte zájem o tento pozemek?

Tímto, v souladu s nařízením Evropského parlamentu a Rady (EU) 2016/679, v platném znění, prohlašuji, že mi je alespoň 16 let a uděluji tak svůj souhlas se zpracováním zadaných údajů (jméno, telefon, e-mail, ip adresa) společnosti B3 Technology, s.r.o., IČ: 07330600, se sídlem Novostavby 126/23, 435 11 Lom (správce dat), za účelem předání dotazu z tohoto formuláře Vámi vybranému inzerentovi a zpětného kontaktování mé osoby. Osobní údaje bude správce zpracovávat manuálně i automaticky přímo prostřednictvím svých zaměstnanců. Informace předané tímto formulářem budou uloženy v databázi správce maximálně po dobu 10 let. Odvolání souhlasu s uložením a zpracováním poskytnutých dat lze e-mailem na info@origo-reality.cz. V případě podezření na neoprávněné použití Vámi poskytnutých údajů máte právo předat podnět k šetření Úřadu pro ochranu osobních údajů. Více informací
Chystáte se prodat nemovitost?
Pomůžeme Vám!

Přihlášení k odběru

Nenechte si ujít nejnovější nabídky prodeje pozemků pro bydlení v Kácově.