Prodej bytu 1+kk, Praha - Chodov, Samohelova, 29 m2

Samohelova, Praha, Chodov

4 289 000 Kč
/za nemovitost
včetně poplatků, včetně provize, včetně právního servisu
Hypotéka od 19 169 Kč /měs. Chci hypotéku

Parametry bytu

AdresaSamohelova, Praha, Chodov
ID28066
StavbaPanelová
Stav objektuDobrý
Patro7. z 8
VybavenoNe
Lokalita objektuSídliště
VlastnictvíDružstevní
Užitná plocha29 m2
Podlahová plocha29 m2
Třída energetické náročnostiC - Úsporná
Ukazatel energetické náročnosti115.5 kWh/m2 za rok
Elektřina230V
PlynPlynovod
OdpadVeřejná kanalizace
DopravaSilnice, MHD, Autobus
VodaVodovod
Topné tělesoRadiátory
Zdroj topeníÚstřední dálkové
Zdroj teplé vodyCentrální dálkový ohřev
Výtah
Převod do OV

Origo partneři v Praze 4

Stěhovací služby

Výkup a prodej starého nábytku

Popis

Útulná garsonka na prodej – skvělá investice nebo startovní bydlení v klidné části Prahy

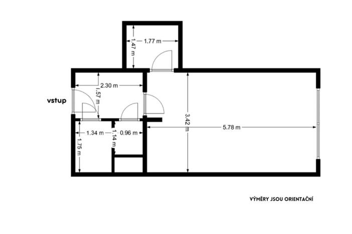
Hledáte byt, kde můžete začít nový životní příběh, nebo výhodně investovat? Nabízíme byt o dispozici 1+kk a výměře 29,09 m², nacházející se v 7. patře z 8 panelového domu v ulici Samohelova, Prahy 11 – Chodov.

Byt je v původním stavu, což nabízí příležitost pro rekonstrukci podle vašich představ. Dispozice zahrnuje vstupní chodbu, samostatnou koupelnu, WC, obytnou kuchyni a praktickou komoru. Díky jižní orientaci je byt po celý den příjemně prosvětlený.

Dům byl zrekonstruován uvnitř – nové výtahy, plastová okna, čisté a udržované společné prostory. Byt je v družstevním vlastnictví, anuita je zcela splacená a je možné převést jej do osobního vlastnictví.

Skvělá dopravní dostupnost
V docházkové vzdálenosti se nachází autobusové zastávky Donovalská a Brodského, které zajišťují pohodlné spojení na metro linky C – Opatov (cca 1,7 km). Nájezd na D1 a Pražský okruh je vzdálen pouhých 1,5 km.

Volnočasové aktivity a příroda na dosah
V bezprostředním okolí najdete fitness centrum, wellness, saunový svět, bowling a squash. Jen 500 metrů od domu se rozprostírá Hostivařský lesopark a přehrada, skvělé místo pro procházky, sport i relax. V blízkosti je také zoopark Divoká zahrada, Park u Chodovské tvrze s galerií a kulturním programem (1,5 km) nebo Kunratický les (2,5 km) s hustou sítí lesních cest.

Díky této kombinaci dopravní dostupnosti, občanské vybavenosti a blízkosti přírody je tento byt ideálním místem pro pohodlný život v Praze.

V bytě je aktuálně nájemnice s roční smlouvou, nájemné 10.000 Kč /měs + poplatky!

Pro více informací mě neváhejte kontaktovat.

Makléř

Máte zájem o tento byt?

Tímto, v souladu s nařízením Evropského parlamentu a Rady (EU) 2016/679, v platném znění, prohlašuji, že mi je alespoň 16 let a uděluji tak svůj souhlas se zpracováním zadaných údajů (jméno, telefon, e-mail, ip adresa) společnosti B3 Technology, s.r.o., IČ: 07330600, se sídlem Novostavby 126/23, 435 11 Lom (správce dat), za účelem předání dotazu z tohoto formuláře Vámi vybranému inzerentovi a zpětného kontaktování mé osoby. Osobní údaje bude správce zpracovávat manuálně i automaticky přímo prostřednictvím svých zaměstnanců. Informace předané tímto formulářem budou uloženy v databázi správce maximálně po dobu 10 let. Odvolání souhlasu s uložením a zpracováním poskytnutých dat lze e-mailem na info@origo-reality.cz. V případě podezření na neoprávněné použití Vámi poskytnutých údajů máte právo předat podnět k šetření Úřadu pro ochranu osobních údajů. Více informací
Chystáte se prodat nemovitost?
Pomůžeme Vám!

Přihlášení k odběru

Nenechte si ujít nejnovější nabídky prodeje bytů 1+kk v Praze 4.