Prodej rodinného domu, Beroun, Na Výšině, 224 m2 (ID: 1731968)

Na Výšině, Beroun-Město

15 990 000 Kč
/za nemovitost
Hypotéka od 71 466 Kč /měs. Chci hypotéku

Parametry domu

AdresaNa Výšině, Beroun-Město
IDN00246
StavbaCihlová
Stav objektuVelmi dobrý
Druh objektuSamostatný
Lokalita objektuKlidná část obce
Užitná plocha224 m2
Zastavěná plocha132 m2
Plocha pozemku542 m2
Třída energetické náročnostiG - Mimořádně nehospodárná
Elektřina230V
PlynPlynovod
OdpadVeřejná kanalizace
TopeníLokální plynové
DopravaVlak, Dálnice, Silnice, MHD, Autobus
VodaVodovod
Garáž
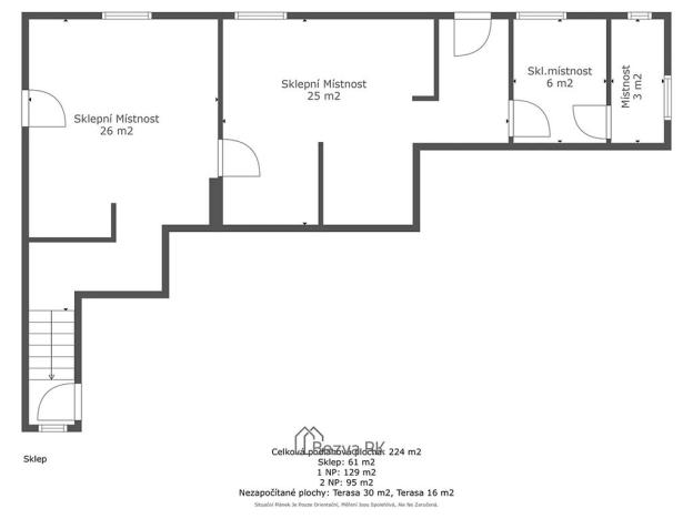
Sklep
Výtah
Parkování
Bazén

Origo partneři v Berouně

Popis

Nabízíme k prodeji prostorný, zděný rodinný dům s velkou terasou a nádherným výhledem na okolní krajinu a řeku Berounku. Dům se nachází v žádané a klidné lokalitě Na Černém vršku v Berouně, která je velmi oblíbená pro kombinaci soukromí, přírody a přitom skvělé dostupnosti do centra města i do Prahy.
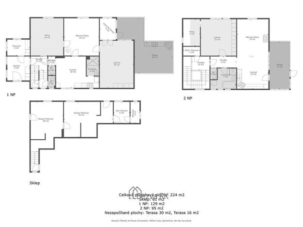
Dům byl postaven v 80. letech a je ve velmi dobrém, udržovaném stavu. Celková podlahová plocha činí 224 m² a nachází se na pozemku o rozloze 542 m².

!!! Značnou výhodou této nemovitosti je velké množství samostatných prostor sloužících jako garáže a autodílna. Tyto prostory je možné odděleně prodat, což nabízí jedinečnou příležitost získat finanční prostředky na modernizaci a rekonstrukci samotného domu.!!!
I v případě prodeje by stále zůstala součástí domu garáž pro min 2 vozy.

Dispozice domu:
Přízemí: bytová jednotka 4+1 s kuchyní, obývacím pokojem, třemi ložnicemi, koupelnou a WC
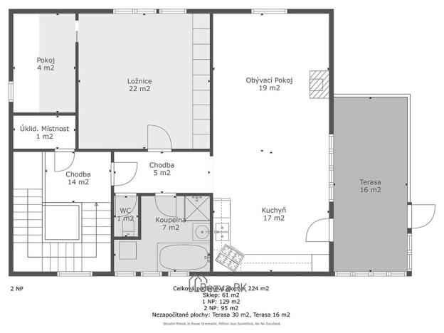
1. patro: bytová jednotka 2+1 s kuchyní, dvěma pokoji, koupelnou a WC

V každém podlaží je vlastní koupelna a toaleta, což nabízí možnost dvougeneračního bydlení nebo kombinace bydlení a podnikání

Hlavní výhody:
Velká terasa s panoramatickým výhledem na Berounku a okolí
Bazén se solárním ohřevem
Dvojgaráž + autodílna+další pracovní či úložné prostory+velký sklep
Venkovní terasa s kuchyní
Zděný zahradní domek
Bezbariérový přístup díky domovnímu výtahu

Vzrostlé stromy a upravená zahrada poskytující soukromí

Dům je napojen na všechny inženýrské sítě – plyn, vodovod, kanalizaci a elektřinu. Vytápění zajišťuje plynový kotel.

Lokalita Na Černém vršku je výjimečná svojí polohou – kombinace krásné přírody, výhledu a zároveň vynikající dostupnosti (centrum Berouna, nájezd na D5, vlak i veškeré služby v dosahu). Vhodné jak pro klidné rodinné bydlení, tak pro propojení bydlení s podnikáním.
Okolní zástavbu tvoří poze vily podobného charakteru.

Pro více informací nebo domluvení prohlídky mě prosím neváhejte kontaktovat. V případě potřeby financování hypotečním úvěrem Vám samozřejmě velmi ráda pomohu.

Makléř

Máte zájem o tento dům?

Tímto, v souladu s nařízením Evropského parlamentu a Rady (EU) 2016/679, v platném znění, prohlašuji, že mi je alespoň 16 let a uděluji tak svůj souhlas se zpracováním zadaných údajů (jméno, telefon, e-mail, ip adresa) společnosti B3 Technology, s.r.o., IČ: 07330600, se sídlem Novostavby 126/23, 435 11 Lom (správce dat), za účelem předání dotazu z tohoto formuláře Vámi vybranému inzerentovi a zpětného kontaktování mé osoby. Osobní údaje bude správce zpracovávat manuálně i automaticky přímo prostřednictvím svých zaměstnanců. Informace předané tímto formulářem budou uloženy v databázi správce maximálně po dobu 10 let. Odvolání souhlasu s uložením a zpracováním poskytnutých dat lze e-mailem na info@origo-reality.cz. V případě podezření na neoprávněné použití Vámi poskytnutých údajů máte právo předat podnět k šetření Úřadu pro ochranu osobních údajů. Více informací
Chystáte se prodat nemovitost?
Pomůžeme Vám!

Přihlášení k odběru

Nenechte si ujít nejnovější nabídky prodeje rodinných domů v Berouně.