Prodej chalupy, Josefův Důl, 176 m2

Josefův Důl

3 990 000 Kč
/za nemovitost
Včetně všech poplatků RK
Hypotéka od 17 833 Kč /měs. Chci hypotéku

Parametry domu

AdresaJosefův Důl
ID1748
StavbaCihlová
Stav objektuV rekonstrukci
Druh objektuSamostatný
Lokalita objektuKlidná část obce
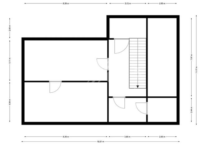
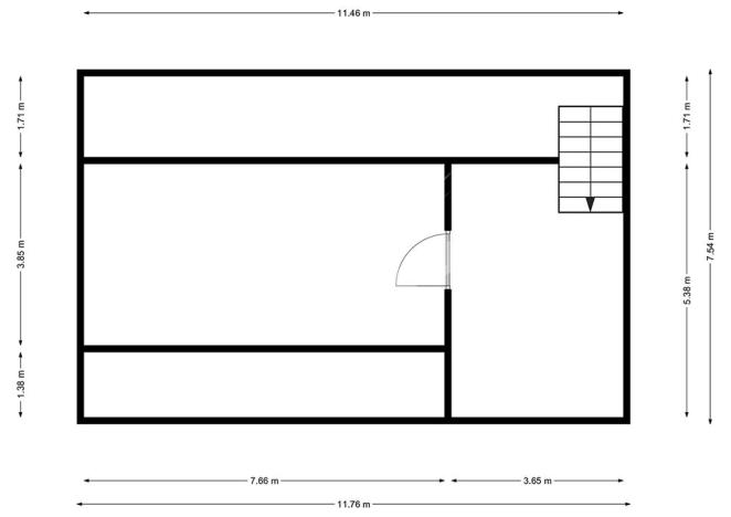
Užitná plocha176 m2
Zastavěná plocha88 m2
Podlahová plocha190 m2
Plocha pozemku885 m2
Plocha zahrady797 m2
Třída energetické náročnostiG - Mimořádně nehospodárná
OdpadSeptik
KomunikaceAsfaltová
DopravaVlak, Silnice, Autobus
VodaVodovod
Topné tělesoPřímotop
Zdroj topeníPřímotop

Origo partneři v Josefově Dole

Rekonstrukce

Úklidové služby

Popis

Nabízíme k prodeji dům na krásném pozemku v obci Josefův Důl, okres Jablonec nad Nisou. Podél pozemku teče zregulovaný potok Jedlová, kde žijí pstruzi.

Dům nabízí dispozici 3+kk a má nové rozvody vody a elektřiny. Vytápí se přímotopy a čekají ho další úpravy. Přízemí zahrnuje dva pokoje, jeden s kuchyňským koutem a krbovými kamny, koupelnu a kůlnu, která může sloužit jako dílna. V patře se nachází velký pokoj s možností rozšíření.

Okolní příroda poskytuje široké možnosti trávení volného času, přímo v obci se nacházejí dva vleky a poblíž je zastávka skibusu. Vlaková zastávka je vzdálena pouhých 100 m od domu, přičemž největší lyžařský areál v Jizerských horách, Tanvaldský Špičák, je jen dvě stanice vlakem. Pro milovníky běžek je k dispozici celkem 90 km tratí, a v létě jsou zde ideální podmínky pro cykloturistiku a vycházky po značených trasách.

Nemovitost je v osobním vlastnictví a lze ji tedy financovat hypotečním úvěrem, který vám zdarma pomůžeme vyřídit za nejvýhodnějších podmínek na trhu.

PENB nebyl dodán, proto uvádíme třídu G.

Přijeďte se podívat, rádi vám vše ukážeme!

Makléř

Máte zájem o tento dům?

Tímto, v souladu s nařízením Evropského parlamentu a Rady (EU) 2016/679, v platném znění, prohlašuji, že mi je alespoň 16 let a uděluji tak svůj souhlas se zpracováním zadaných údajů (jméno, telefon, e-mail, ip adresa) společnosti B3 Technology, s.r.o., IČ: 07330600, se sídlem Novostavby 126/23, 435 11 Lom (správce dat), za účelem předání dotazu z tohoto formuláře Vámi vybranému inzerentovi a zpětného kontaktování mé osoby. Osobní údaje bude správce zpracovávat manuálně i automaticky přímo prostřednictvím svých zaměstnanců. Informace předané tímto formulářem budou uloženy v databázi správce maximálně po dobu 10 let. Odvolání souhlasu s uložením a zpracováním poskytnutých dat lze e-mailem na info@origo-reality.cz. V případě podezření na neoprávněné použití Vámi poskytnutých údajů máte právo předat podnět k šetření Úřadu pro ochranu osobních údajů. Více informací
Chystáte se prodat nemovitost?
Pomůžeme Vám!

Přihlášení k odběru

Nenechte si ujít nejnovější nabídky prodeje chalup v Josefově Dole (okr. Jablonec nad Nisou).