Prodej rodinného domu, Praha - Horní Počernice, Artistů, 116 m2 (ID: 1729910)

Artistů, Praha, Horní Počernice

15 500 000 Kč
/za nemovitost
Hypotéka od 69 276 Kč /měs. Chci hypotéku

Parametry domu

AdresaArtistů, Praha, Horní Počernice
ID0020-NP09786
StavbaCihlová
Stav objektuNovostavba
VybavenoČástečně
Druh objektuŘadový
Lokalita objektuKlidná část obce
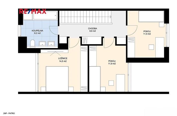
Užitná plocha116 m2
Zastavěná plocha74 m2
Podlahová plocha116 m2
Plocha pozemku202 m2
Plocha zahrady82 m2
Třída energetické náročnostiA - Mimořádně úsporná
Elektřina230V
OdpadVeřejná kanalizace
KomunikaceAsfaltová
TelekomunikaceInternet
DopravaAutobus
VodaVodovod
Topné tělesoPodlahové vytápění
Zdroj topeníTepelné čerpadlo
Zdroj teplé vodyTepelné čerpadlo
Bezbarierový přístup
Parkování

Origo partneři v Praze 9

Stěhovací služby

Výkup a prodej starého nábytku

Popis

Nabízíme k prodeji moderní řadový dům 4+kk s podlahovou plochou 116 m² a nízkou energetickou náročností (třída A). Dům byl zkolaudován v roce 2023, takže splňuje všechny současné standardy moderního bydlení. K nemovitosti náleží dvě parkovací stání, zahradní terasa o velikosti 10 m², přední část pozemku o rozloze 46 m² a zahrada o velikosti 82 m². Celková plocha pozemku činí 202 m².
Dispozice a konstrukce
Dům je postaven z vápenopískových cihel, které zajišťují tepelně-izolační vlastnosti a dlouhou životnost. Stropy tvoří železobetonové panely SPIROLL, které stavbě dodávají stabilitu a odolnost. Jednoplášťová fóliová krytina z měkčeného PVC na střeše je odolná a nenáročná na údržbu.
Exteriér
Fasáda kombinuje silikonovou omítku a fasádní kámen, což zajišťuje elegantní vzhled a odolnost proti povětrnostním vlivům. Prosklená stříška nad vchodem dodává moderní vzhled a chrání při nepřízni počasí. Zahrada zahrnuje parkovací stání a chodníky ze zámkové dlažby, zahradní domek s napojením na elektřinu a akumulační nádrž na dešťovou vodu o objemu cca 5 m³.
Interiér
Podlahy v obytných místnostech jsou vinylové, v koupelnách, vstupní chodbě a technických místnostech keramická dlažba. Stěny mají bílý nátěr PRIMALEX PLUS, v koupelnách a WC jsou keramické obklady až do stropu. Dřevěná EURO okna s trojsklem zajišťují izolaci a elegantní design. Vnitřní dveře jsou obložkové, výšky 2,1 m, vchodové plně prosklené.
Technologie a vybavení
Teplovodní podlahové vytápění s tepelným čerpadlem (vzduch/voda) a vestavěným zásobníkem na teplou vodu zajišťuje komfort. Řízené větrání s rekuperací minimalizuje tepelné ztráty, obytné prostory lze ochlazovat. Dům obsahuje inteligentní systém pro ovládání topení, rekuperace, vlhkostní čidla a Wi-Fi router.
Sociální vybavení a detaily
Luxusní koupelna s vanou a sprchovým koutem značky Kaldewei, závěsné WC, smaltované nebo keramické umyvadlo. Elektroinstalace zahrnuje měděné kabely, venkovní svítidla, vnitřní LED osvětlení a železobetonové schodiště s ocelovým zábradlím.
Lokalita
Horní Počernice nabízí klidné bydlení, služby, školy a skvělou dostupnost – metro Černý Most je dostupné za 10 minut autobusem, vlakem do centra za 20 minut, autobusem za 30 minut. Nákupy zajistí OC Černý Most s výbornou dostupností na dálnici a Pražský okruh.

Tento dům spojuje moderní design, kvalitní materiály a technologie s pohodlím a praktičností, ideální pro stylový a komfortní domov.

Makléř

Máte zájem o tento dům?

Tímto, v souladu s nařízením Evropského parlamentu a Rady (EU) 2016/679, v platném znění, prohlašuji, že mi je alespoň 16 let a uděluji tak svůj souhlas se zpracováním zadaných údajů (jméno, telefon, e-mail, ip adresa) společnosti B3 Technology, s.r.o., IČ: 07330600, se sídlem Novostavby 126/23, 435 11 Lom (správce dat), za účelem předání dotazu z tohoto formuláře Vámi vybranému inzerentovi a zpětného kontaktování mé osoby. Osobní údaje bude správce zpracovávat manuálně i automaticky přímo prostřednictvím svých zaměstnanců. Informace předané tímto formulářem budou uloženy v databázi správce maximálně po dobu 10 let. Odvolání souhlasu s uložením a zpracováním poskytnutých dat lze e-mailem na info@origo-reality.cz. V případě podezření na neoprávněné použití Vámi poskytnutých údajů máte právo předat podnět k šetření Úřadu pro ochranu osobních údajů. Více informací
Chystáte se prodat nemovitost?
Pomůžeme Vám!

Přihlášení k odběru

Nenechte si ujít nejnovější nabídky prodeje rodinných domů v Praze 9.