Prodej rodinného domu, Jablonné nad Orlicí, Potoční, 123 m2 (ID: 1729453)
Potoční, Jablonné nad Orlicí
/za nemovitost
cena je včetně právního servisu a provize realitní kanceláři
Parametry domu
| Adresa | Potoční, Jablonné nad Orlicí | 
|---|---|
| ID | 0582 | 
| Stavba | Cihlová | 
| Stav objektu | Před rekonstrukcí | 
| Druh objektu | Samostatný | 
| Užitná plocha | 123 m2 | 
| Zastavěná plocha | 123 m2 | 
| Podlahová plocha | 123 m2 | 
| Plocha pozemku | 227 m2 | 
| Plocha zahrady | 104 m2 | 
| Třída energetické náročnosti | G - Mimořádně nehospodárná | 
| Komunikace | Asfaltová, Zpevněná | 
| Doprava | Vlak, Silnice, Autobus | 
| Bezbarierový přístup | 
Popis
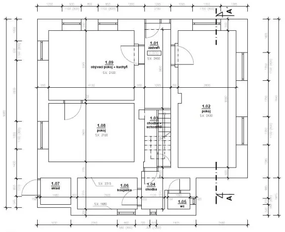
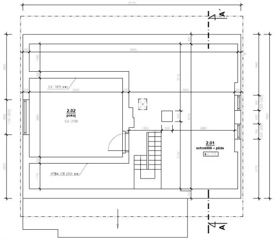
K prodeji je rodinný domek s malou příjemnou zahrádkou v klidné části obce Jablonné nad Orlicí, v ulici Potoční. Jedná se o původní stavbu z roku 1945. Dům je nepodsklepený, jednopodlažní s obytným podkrovím. Nemovitost se nachází ve stavu před rekonstrukcí a lze využít stávající projekt ke kompletní přestavbě nebo rekonstruovat dle vlastní úvahy. Nyní se v přízemí nachází dvě samostatné obytné místnosti a prostorná kuchyně s jídelnou, chodba, koupelna a toaleta. V patře je pak část podkroví využita jako půda a část je využita pro vestavbu obytné místnosti. Dům je napojen na veřejný vodovod, kanalizaci, elektřinu i plyn. Dům se nachází kousek od obchodu, školy, školky, koupaliště i samotného centra Jablonného. Dům lze přestavět na rekreační objekt nebo jako zázemí pro rodinné bydlení. Zahrada je orientována tak, že většinu dne zde svítí slunce. V pěší vzdálenosti naleznete vše, včetně lesů a přírody k procházkám nebo projížďkám na kole.
Přihlášení k odběru
Nenechte si ujít nejnovější nabídky prodeje rodinných domů v Jablonném nad Orlicí.
 
                                                                                     
                                                                                     
                                                                                     
                                                                                     
                                                                                     
                                                                                     
                                                                                     
                                                                                     
                                                                                     
                                                                                     
                                                                                     
                                                                                     
                                                                                     
                                                                                     
                                                                                     
                                                                                     
                                                                                     
                                                                                     
                         
         
         
         
         
         
        