Prodej rodinného domu, Cheb, Jilmová, 111 m2

Jilmová, Cheb, okres cheb

Rezervováno
8 790 000 Kč
/za nemovitost
včetně provize RK a kompletního právního servisu
Hypotéka od 39 286 Kč /měs. Chci hypotéku

Parametry domu

StavRezervováno
AdresaJilmová, Cheb, okres cheb
ID961196
StavbaDřevěná
Stav objektuNovostavba
VybavenoČástečně
Typ objektuPatrový
Druh objektuSamostatný
VlastnictvíOsobní
Užitná plocha111 m2
Zastavěná plocha72 m2
Podlahová plocha125 m2
Plocha pozemku730 m2
Třída energetické náročnostiB - Velmi úsporná
Ukazatel energetické náročnosti100 kWh/m2 za rok
Elektřina230V
PlynPlynovod
OdpadVeřejná kanalizace
TopeníJiné
TelekomunikaceInternet
DopravaVlak, Dálnice, Silnice, MHD
VodaVodovod
Terasa
Výtah
Parkování

Origo partneři v Chebu

Popis

V exkluzivním zastoupení majitele nabízíme možnost zprostředkování koupě novostavby nízkoenergetické dřevostavby rodinného domu v klidné a oblíbené části Chebu na Zlaté louce, v ulici Jilmová.

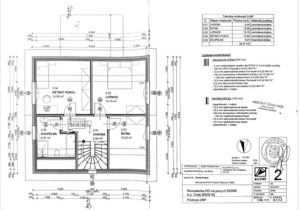
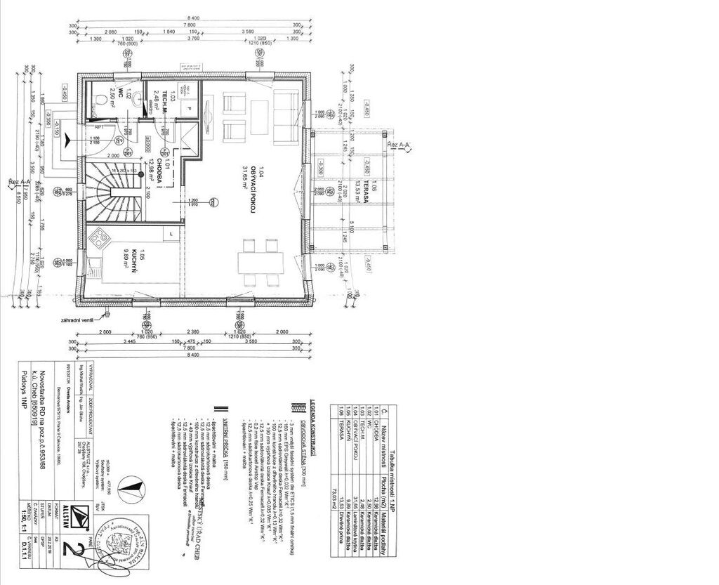
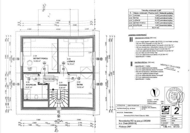
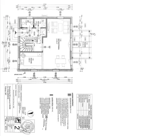
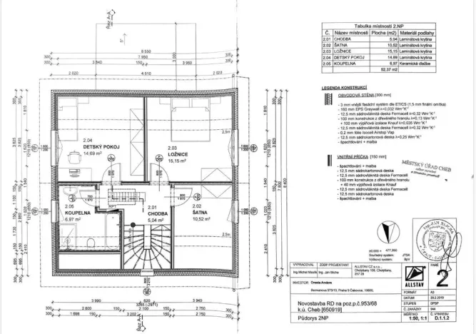
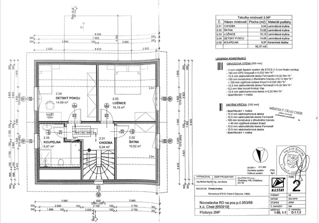
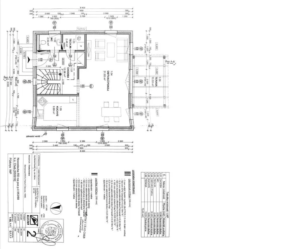
Tento rodinný dům velmi kvalitního provedení je dispozičně řešen jako 4+KK o celkové užitné ploše 111 m2. V přízemí domu se nachází prosvětlená obývací část prakticky propojená s kuchyňským a jídelním koutem se vstupem na zastřešenou terasu a udržovanou zahradu. Dále zde nalezneme technickou místnost a samostatnou toaletu. Dubové schodiště nás zavede do 1. patra domu, kde se nachází samostatné tři pokoje a prostorná koupelna s toaletou. Další praktické úložné prostory nalezneme v půdním prostoru.

Dům je vybaven tepelným čerpadlem Panasonic Aquarea, což zajišťuje velmi energeticky úsporný provoz. Podlahové vytápění v celém domě, ochranné venkovní žaluzie firmy Climax, střecha Bramac, kamerový systém a alarm Jablotron, parkování pro 2 vozy na vlastním pozemku.

Lokalita nabízí vysokou míru bezpečí a klidu, zároveň ale s rychlým spojením do centra s veškerou občanskou vybaveností.

Nenechte si ujít příležitost stát se majitelem tohoto jedinečného domova. Doporučujeme!

Neváhejte nás oslovit a sjednat si prohlídku nabízené nemovitosti. Veškeré bližší informace k této nemovitosti vám poskytne realitní makléř. S financováním rádi pomůžeme.

Makléř

Máte zájem o tento dům?

Tímto, v souladu s nařízením Evropského parlamentu a Rady (EU) 2016/679, v platném znění, prohlašuji, že mi je alespoň 16 let a uděluji tak svůj souhlas se zpracováním zadaných údajů (jméno, telefon, e-mail, ip adresa) společnosti B3 Technology, s.r.o., IČ: 07330600, se sídlem Novostavby 126/23, 435 11 Lom (správce dat), za účelem předání dotazu z tohoto formuláře Vámi vybranému inzerentovi a zpětného kontaktování mé osoby. Osobní údaje bude správce zpracovávat manuálně i automaticky přímo prostřednictvím svých zaměstnanců. Informace předané tímto formulářem budou uloženy v databázi správce maximálně po dobu 10 let. Odvolání souhlasu s uložením a zpracováním poskytnutých dat lze e-mailem na info@origo-reality.cz. V případě podezření na neoprávněné použití Vámi poskytnutých údajů máte právo předat podnět k šetření Úřadu pro ochranu osobních údajů. Více informací
Chystáte se prodat nemovitost?
Pomůžeme Vám!

Přihlášení k odběru

Nenechte si ujít nejnovější nabídky prodeje rodinných domů v Chebu.