Prodej obchodního prostoru, Chrášťany, 105 m2

Chrášťany, Chotouň

3 700 000 Kč
/za nemovitost
včetně DPH, včetně poplatků, včetně provize, včetně právního servisu
Hypotéka od 16 537 Kč /měs. Chci hypotéku

Parametry nemovitosti

AdresaChrášťany, Chotouň
ID28029
StavbaCihlová
Stav objektuPřed rekonstrukcí
Lokalita objektuKlidná část obce
Užitná plocha105 m2
Zastavěná plocha147 m2
Třída energetické náročnostiG - Mimořádně nehospodárná
Elektřina230V
KomunikaceAsfaltová
DopravaDálnice, Silnice, Autobus
VodaStudna

Origo partneři v Chrášťanech

Popis

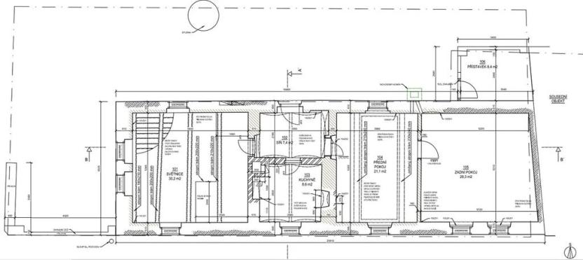
Představujeme Vám jedinečný dům s historickým duchem v srdci Chotouně, okr. Kolín, s pozemkem o velikosti 293m2 včetně zastavěné plochy 147m2 s již schváleným projektem a stavebním povolením na celkovou obnovu domu. Tento krásný dům je součástí bývalé zemědělské usedlosti v idylické obci Chotouň.

Obdélný půdorys orientovaný od západu k východu je korunován charakteristickou sedlovou střechou se štíty, jež dotvářejí jeho tradiční vzhled. Východní strana domu sousedí s vyšším objektem. Ačkoliv tento krásný dům vyžaduje obnovu, nevykazuje žádné zásadní statické poruchy, což z něj činí ideální projekt pro každého, kdo si chce vytvořit domov podle vlastních představ. Současný interiér zahrnuje vstupní chodbu, kuchyň, tři pokoje a přístavek. Interiér zdobí tradiční kamenné zdi s vnitřním obložením z nepálených cihel, které dodávají domu rustikální kouzlo. Dřevěné trámové stropy přidávají domu teplý a autentický vzhled.
.
K dispozici je již schválený projekt na celkovou obnovu obytného domu. Projekt a stavební povolení ráda zašlu zájemcům o koupi.

Chotouň je  místní část obce Chrášťany v okrese Kolín, která vás okouzlí svou poklidnou atmosférou a bohatou historií. Vesnice se připomíná ve svatoprokopských legendách z 11. století jako rodiště sv. Prokopa. Obklopena nádhernou přírodou a kulturními památkami, nabízí ideální prostředí pro život v souladu s tradicemi a moderním světem. Díky výborné dopravní dostupnosti jste v Praze autem během 25 minut, což činí Chotouň atraktivním místem pro každodenní život i relaxaci. Autobusová zastávka se nachází přímo u domu s pravidelným spojením do Českého Brodu a Říčan. Vlaková zastávka je v Klučově a Poříčanech (8 km). Mateřská školu najdete v Chrášťanech (2 km), a základní škola v Bylanech (4 km). Kompletní občanská vybavenost je v Českém Brodě, včetně zdravotnických zařízení a nákupních možností.

Uvedené výměry jsou orientační. V případě více zájemců bude nemovitost prodána nejlepší nabídce a majitel si vyhrazuje právo vybrat kupujícího na základě jim zvolených kritérií. Veškeré zveřejněné údaje obsažené v tomto inzerátu mají pouze informativní charakter a nejsou nabídkou ve smyslu §1731 nebo §1732 občanského zákoníku, ani se nejedná o veřejný příslib dle §1733 občanského zákoníku.

Pokud chcete vdechnout život tomuto krásnému místu a proměnit ho ve svůj vysněný domov anebo hledáte místo pro vlastní ateliér, dílnu, kavárnu nebo komunitní centrum s bydlením pod jednou střechou? Pak právě tento dům v  Chotouni může být Vaším novým projektem. Neváhejte mne kontaktovat, velice ráda Vám tuto nemovitost představím osobně!

Makléř

Máte zájem o tuto nemovistost?

Tímto, v souladu s nařízením Evropského parlamentu a Rady (EU) 2016/679, v platném znění, prohlašuji, že mi je alespoň 16 let a uděluji tak svůj souhlas se zpracováním zadaných údajů (jméno, telefon, e-mail, ip adresa) společnosti B3 Technology, s.r.o., IČ: 07330600, se sídlem Novostavby 126/23, 435 11 Lom (správce dat), za účelem předání dotazu z tohoto formuláře Vámi vybranému inzerentovi a zpětného kontaktování mé osoby. Osobní údaje bude správce zpracovávat manuálně i automaticky přímo prostřednictvím svých zaměstnanců. Informace předané tímto formulářem budou uloženy v databázi správce maximálně po dobu 10 let. Odvolání souhlasu s uložením a zpracováním poskytnutých dat lze e-mailem na info@origo-reality.cz. V případě podezření na neoprávněné použití Vámi poskytnutých údajů máte právo předat podnět k šetření Úřadu pro ochranu osobních údajů. Více informací
Chystáte se prodat nemovitost?
Pomůžeme Vám!

Přihlášení k odběru

Nenechte si ujít nejnovější nabídky prodeje obchodních prostor v Chrášťanech (okr. Kolín).