Pronájem kanceláře, Brno - Lesná, Slavíčkova, 188 m2

Slavíčkova, Brno, Lesná

432 400 Kč
/za rok
K ceně budou připočteny služby ve výši 2060,- Kč/m2/rok + DPH. Bez kauce a provize.
Získejte výhodnou HYPOTÉKU Chci hypotéku

Parametry nemovitosti

AdresaSlavíčkova, Brno, Lesná
ID910496
StavbaCihlová
Stav objektuDobrý
VybavenoNe
Lokalita objektuKlidná část obce
VlastnictvíOsobní
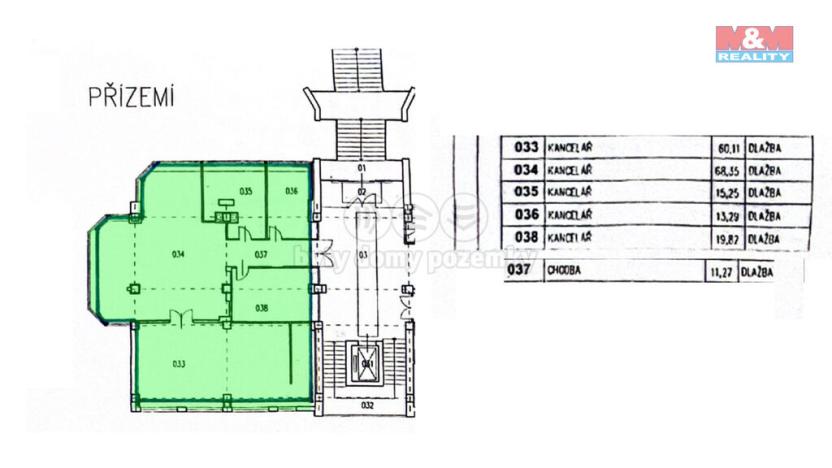
Užitná plocha188 m2

Origo partneři v Brně

Popis

Bez kauce a provize. Nabízíme k pronájmu kancelářské prostory o užitné ploše 188 m² v klidné části obce Brno - Lesná. Tyto kanceláře se nacházejí v 1. podlaží cihlové budovy s celkem 7 nadzemními podlažími a 1 podzemním podlažím. Prostory zahrnují 5 místností, které jsou ideální pro menší a středně velké firmy hledající klidné a přitom strategicky umístěné zázemí. Nemovitost je v dobrém stavu, připravena k okamžitému využití. Díky své poloze nabízí výbornou dostupnost do centra města a zároveň klidné pracovní prostředí. Nepropásněte tuto jedinečnou příležitost pro rozvoj vašeho podnikání v atraktivní lokalitě. Služby se rozpočítávají podle plochy kanceláře, objekt nemá vlastní měřiče, ale ročně probíhá zúčtování za budovu. V 1. PP je závodní jídelna, kterou je možno využívat, stejně jako terasu přiléhající přímo ke kanceláři. Do objektu je přístup časově neomezený. Pro více informací nás neváhejte kontaktovat.

Makléř

Máte zájem o tuto nemovistost?

Tímto, v souladu s nařízením Evropského parlamentu a Rady (EU) 2016/679, v platném znění, prohlašuji, že mi je alespoň 16 let a uděluji tak svůj souhlas se zpracováním zadaných údajů (jméno, telefon, e-mail, ip adresa) společnosti B3 Technology, s.r.o., IČ: 07330600, se sídlem Novostavby 126/23, 435 11 Lom (správce dat), za účelem předání dotazu z tohoto formuláře Vámi vybranému inzerentovi a zpětného kontaktování mé osoby. Osobní údaje bude správce zpracovávat manuálně i automaticky přímo prostřednictvím svých zaměstnanců. Informace předané tímto formulářem budou uloženy v databázi správce maximálně po dobu 10 let. Odvolání souhlasu s uložením a zpracováním poskytnutých dat lze e-mailem na info@origo-reality.cz. V případě podezření na neoprávněné použití Vámi poskytnutých údajů máte právo předat podnět k šetření Úřadu pro ochranu osobních údajů. Více informací
Chystáte se prodat nemovitost?
Pomůžeme Vám!

Přihlášení k odběru

Nenechte si ujít nejnovější nabídky pronájmu kanceláří v Brně.