Pronájem kanceláře, Třinec, Frýdecká, 97 m2 (ID: 1721251)

Frýdecká, Třinec, Staré Město

277,71 Kč
/za metr čtvereční / měsíc
+ provize RK+ energie 4.000,-
Získejte výhodnou HYPOTÉKU Chci hypotéku

Parametry nemovitosti

AdresaFrýdecká, Třinec, Staré Město
ID0324
StavbaCihlová
Stav objektuVelmi dobrý
Patro3. z 3
VybavenoČástečně
Užitná plocha97 m2
Zastavěná plocha633 m2
Třída energetické náročnostiG - Mimořádně nehospodárná

Origo partneři v Třinci

Popis

Pokud hledáte prostory k vašemu podnikání pár metrů od centra Třince, tak již dál hledat nemusíte.
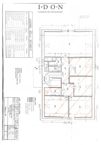
Nabízíme k pronájmu čtyři kanceláře a jednu velkou konferenční místnost nacházející se v podkroví o celkové výměře 179,83 m². Samotná místnost má výměru 57,75m², dále 4 kanceláře (19,60m², 18,34m², 22,78m², a 22,78m²) částečně vybavené, situované ve 3. patře komerčního objektu na ulici Frýdecká v Třinci. Kanceláře mají vlastní chodbu a kuchyňku, což zajišťuje komfort a soukromí pro Vaši firmu. Nabízí se možnost prostory stavebně upravit dle vlastních představ. Cena podnájmu 280 za m². Dá se po dohodě s majitelkou pronajmout pouze konferenční místnost. Vhodné pro sídlo obchodní firmy nebo ordinace lékařů.
Budova je vybavena:
- vlastním parkovištěm
- elektronickou ostrahou objektu
- úklidem kanceláří i společných prostor prováděným odbornou firmou
Výborná lokalita v těsné blízkosti Werk Areny, Tesca a autobusového stanoviště v Třinci.
Parkování přímo před budovou zajištěno. Dlouhodobý nájem výhodou. Velmi příjemní spolunájemníci společných prostor a vstřícná majitelka. Možnost využití ihned. Pro více informací mne kontaktujte.

Makléř

Máte zájem o tuto nemovistost?

Tímto, v souladu s nařízením Evropského parlamentu a Rady (EU) 2016/679, v platném znění, prohlašuji, že mi je alespoň 16 let a uděluji tak svůj souhlas se zpracováním zadaných údajů (jméno, telefon, e-mail, ip adresa) společnosti B3 Technology, s.r.o., IČ: 07330600, se sídlem Novostavby 126/23, 435 11 Lom (správce dat), za účelem předání dotazu z tohoto formuláře Vámi vybranému inzerentovi a zpětného kontaktování mé osoby. Osobní údaje bude správce zpracovávat manuálně i automaticky přímo prostřednictvím svých zaměstnanců. Informace předané tímto formulářem budou uloženy v databázi správce maximálně po dobu 10 let. Odvolání souhlasu s uložením a zpracováním poskytnutých dat lze e-mailem na info@origo-reality.cz. V případě podezření na neoprávněné použití Vámi poskytnutých údajů máte právo předat podnět k šetření Úřadu pro ochranu osobních údajů. Více informací
Chystáte se prodat nemovitost?
Pomůžeme Vám!

Přihlášení k odběru

Nenechte si ujít nejnovější nabídky pronájmu kanceláří v Třinci.