Prodej rodinného domu, Karlovy Vary - Drahovice, Rumunská, 895 m2 (ID: 1719131)

Rumunská, Karlovy Vary, Drahovice

104 500 000 Kč
/za nemovitost
Hypotéka od 467 052 Kč /měs. Chci hypotéku

Parametry domu

AdresaRumunská, Karlovy Vary, Drahovice
ID906508
StavbaSmíšená
Stav objektuNovostavba
VybavenoNe
Druh objektuV bloku
Lokalita objektuKlidná část obce
VlastnictvíOsobní
Užitná plocha895 m2
Plocha pozemku1336 m2

Origo partneři v Karlových Varech

Popis

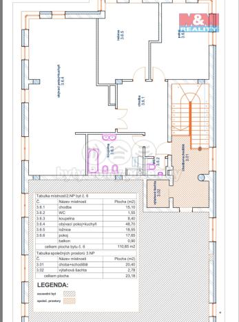
Nabízíme k prodeji bytový dům v prestižní lokalitě Karlových Varů – Rumunská ulice. Dům má osm velkorysých bytů o výměře 103–119 m². Dva z nich jsou již pronajaty a generují stabilní výnos, ostatní jsou ve stavu shell & core a umožňují budoucímu majiteli úpravy přesně podle vlastního vkusu a záměru. Ideální pro investici, pronájem či kombinaci s vlastním bydlením. V domě je moderní výtah, reprezentativní mramorové schodiště a kamerový systém. Každý byt má podlahové vytápění a samostatný plynový kotel Wolf. Součástí nemovitosti je garážové stání pro šest vozidel a dvě venkovní parkovací místa. Objekt se nachází v klidné, přesto velmi dobře dostupné lokalitě nedaleko centra města. Díky svému technickému stavu a možnostem úprav představuje tato nemovitost mimořádnou příležitost pro ty, kdo hledají kvalitu, prostor a investiční potenciál. Pro více informací mě kontaktujte.

Makléř

Máte zájem o tento dům?

Tímto, v souladu s nařízením Evropského parlamentu a Rady (EU) 2016/679, v platném znění, prohlašuji, že mi je alespoň 16 let a uděluji tak svůj souhlas se zpracováním zadaných údajů (jméno, telefon, e-mail, ip adresa) společnosti B3 Technology, s.r.o., IČ: 07330600, se sídlem Novostavby 126/23, 435 11 Lom (správce dat), za účelem předání dotazu z tohoto formuláře Vámi vybranému inzerentovi a zpětného kontaktování mé osoby. Osobní údaje bude správce zpracovávat manuálně i automaticky přímo prostřednictvím svých zaměstnanců. Informace předané tímto formulářem budou uloženy v databázi správce maximálně po dobu 10 let. Odvolání souhlasu s uložením a zpracováním poskytnutých dat lze e-mailem na info@origo-reality.cz. V případě podezření na neoprávněné použití Vámi poskytnutých údajů máte právo předat podnět k šetření Úřadu pro ochranu osobních údajů. Více informací
Chystáte se prodat nemovitost?
Pomůžeme Vám!

Přihlášení k odběru

Nenechte si ujít nejnovější nabídky prodeje rodinných domů v Karlových Varech.