Prodej rodinného domu, Skalka, 122 m2

Skalka

Rezervováno
3 700 000 Kč
/za nemovitost
Hypotéka od 16 537 Kč /měs. Chci hypotéku

Parametry domu

StavRezervováno
AdresaSkalka
ID22779
StavbaPanelová
Stav objektuDobrý
VybavenoAno
Typ objektuPatrový
Druh objektuSamostatný
Užitná plocha122 m2
Zastavěná plocha190 m2
Podlahová plocha122 m2
Plocha pozemku1266 m2
Plocha zahrady766 m2
Třída energetické náročnostiG - Mimořádně nehospodárná
Elektřina230V, 400V
PlynPlynovod
OdpadVeřejná kanalizace, Septik
TopeníÚstřední plynové
KomunikaceAsfaltová
TelekomunikaceTelefon
DopravaSilnice, Autobus
VodaMístní zdroj vody
Garáž
Sklep
Bezbarierový přístup
Parkování

Origo partneři v Skalce

Pojištění a finance

Popis

Představte si život v krásné přírodě nedaleko malebných Chřibů.

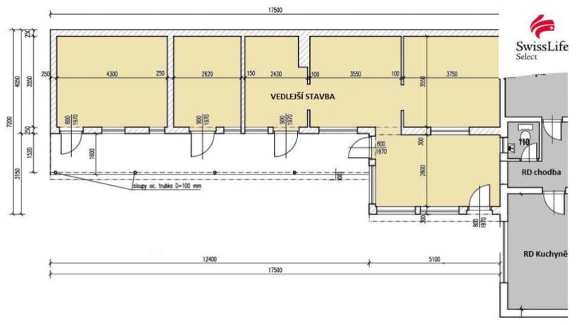
Rodinný dům z roku 1985 s velkou zahradou v obci Skalka u Kyjova čeká na nového majitele, který ocení velkorysý prostor domu. Přijďte objevit potenciál této nemovitosti. Dům je v původním, udržovaném stavu a nabízí čtyři prostorné pokoje, kuchyň, spíž, garáž. K domu je také možné dokoupit nedaleký vinný sklípek.

Velká zahrada je ideální pro relaxaci, odpočinek nebo pěstování ovoce, zeleniny a třeba i vína. Na pozemku se nachází studna a hospodářská budova, které zvyšují užitnou hodnotu nemovitosti. Dům je podsklepený, což poskytuje další úložný prostor nebo možnost vybudování hobby místností, například sauny nebo posilovny.

Plocha pozemku celkem: 1 266 m
Užitná plocha RD: 122 m
Sklepní podlaží: 50 m
Půda: 70 m
Zahrada: 766 m
Stavební pozemek: 500 m
Zastavěná plocha domu: 98 m
Zastavěná plocha vedlejší stavby: 92 m
Garáž: 17 m
Vinný sklep: 36 m

Lokalita Skalka u Kyjova nabízí klidné venkovské prostředí s dobrou dostupností do města Kyjov (9 km), kde najdete veškerou občanskou vybavenost včetně škol, obchodů a zdravotnických zařízení. Autobusová zastávka se nachází přímo u domu. Oblast je známá vinařstvím, folklorními tradicemi a krásnou přírodou Chřibů. Neváhejte a přijďte se podívat na tento dům, který čeká na nového majitele.

V případě více zájemců o nemovitost, si majitel vyhrazuje právo prodat nemovitost zájemci s nejvyšší nabídkou.

Makléř

Máte zájem o tento dům?

Tímto, v souladu s nařízením Evropského parlamentu a Rady (EU) 2016/679, v platném znění, prohlašuji, že mi je alespoň 16 let a uděluji tak svůj souhlas se zpracováním zadaných údajů (jméno, telefon, e-mail, ip adresa) společnosti B3 Technology, s.r.o., IČ: 07330600, se sídlem Novostavby 126/23, 435 11 Lom (správce dat), za účelem předání dotazu z tohoto formuláře Vámi vybranému inzerentovi a zpětného kontaktování mé osoby. Osobní údaje bude správce zpracovávat manuálně i automaticky přímo prostřednictvím svých zaměstnanců. Informace předané tímto formulářem budou uloženy v databázi správce maximálně po dobu 10 let. Odvolání souhlasu s uložením a zpracováním poskytnutých dat lze e-mailem na info@origo-reality.cz. V případě podezření na neoprávněné použití Vámi poskytnutých údajů máte právo předat podnět k šetření Úřadu pro ochranu osobních údajů. Více informací
Chystáte se prodat nemovitost?
Pomůžeme Vám!
Theleadway banner

Přihlášení k odběru

Nenechte si ujít nejnovější nabídky prodeje rodinných domů v Skalce (okr. Hodonín).