Prodej činžovního domu, Úpice, Dr. A. Hejny, 549 m2

Dr. A. Hejny, Úpice

8 900 000 Kč
/za nemovitost
Hypotéka od 39 778 Kč /měs. Chci hypotéku

Parametry nemovitosti

AdresaDr. A. Hejny, Úpice
ID305-NP00710
StavbaSmíšená
Stav objektuDobrý
Typ objektuPatrový
Lokalita objektuCentrum obce
Užitná plocha549 m2
Zastavěná plocha224 m2
Podlahová plocha549 m2
Třída energetické náročnostiG - Mimořádně nehospodárná
Elektřina230V
OdpadVeřejná kanalizace
KomunikaceAsfaltová
TelekomunikaceTelefon, Internet, Kabelové rozvody
DopravaSilnice, MHD, Autobus
VodaVodovod
Převod do OV

Origo partneři v Úpici

Popis

Nabízíme k prodeji nemovitost, která se nachází v Úpici, v ulici Dr. A. Hejny. Tato nemovitost představuje vynikající investiční příležitost s vysokým potenciálem návratnosti investice a osloví široké spektrum zájemců, ať už jde o jednotlivce, rodiny či podnikatele.

Nemovitost se nachází ve výhodné poloze, která zajišťuje skvělou dostupnost. Úpice, jakožto region s bohatou historií a dobře rozvinutou infrastrukturou, nabízí široké možnosti pro volnočasové aktivity, vzdělání a zdravotní péči. V přímém okolí se nachází veškerá občanská vybavenost, jako jsou školy, obchody a restaurace. Z důvodu narůstající poptávky po bydlení v této lokalitě lze očekávat značný zájem o pronájmy.

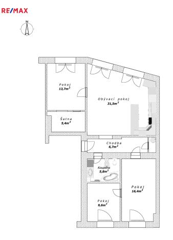
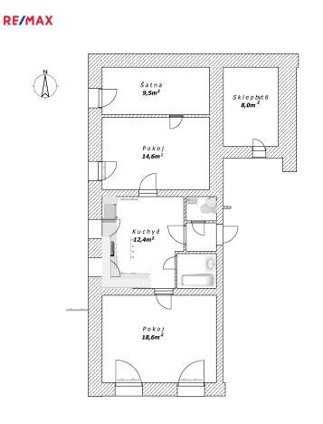
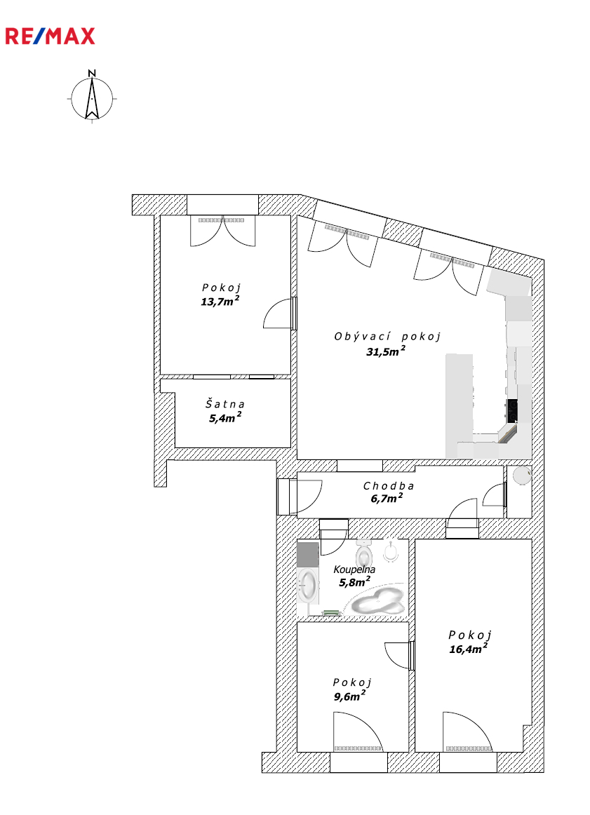
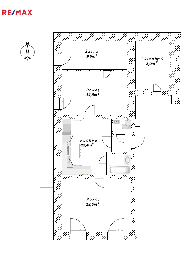
Dům se skládá z 6 bytových jednotek s těmito parametry:

- Byt č. 1 o výměře 65,6 m²
- Byt č. 2 o výměře 44,3 m²
- Byt č. 3 o výměře 39,6 m²
- Byt č. 4 o výměře 63,1 m²
- Byt č. 5 o výměře 67,7 m²
- Byt č. 6 o výměře 97,2 m²

Dále je k dispozici podsklepení. Dům má 3 podlaží a jeho zastavěná plocha činí 220 m² s obestavěným prostorem 1980 m². Nemovitost je vybavena plastovými okny a topení je ústřední, dálkové. Zavedena je voda, elektřina, a je zde připojena kanalizace. Dům prošel mezi léty 2020 - 2024 kompletní revitalizací. Za domem se navíc nachází zahrada o výměře 115 m².

Tato nemovitost nabízí také potenciál pro další rozvoj a úpravy, což je obzvlášť zajímavé pro investory zaměřené na rekonstrukce a modernizace. Vzhledem k aktuálním trendům na trhu s nemovitostmi existuje možnost valorizace hodnoty této nemovitosti v krátkodobém až střednědobém horizontu. Investice do této nemovitosti tak představuje kombinaci stabilního příjmu, možného zhodnocení a praktického bydlení pro nájemníky.

V případě zájmu o prohlídku nás neváhejte kontaktovat.

Makléř

Máte zájem o tuto nemovistost?

Tímto, v souladu s nařízením Evropského parlamentu a Rady (EU) 2016/679, v platném znění, prohlašuji, že mi je alespoň 16 let a uděluji tak svůj souhlas se zpracováním zadaných údajů (jméno, telefon, e-mail, ip adresa) společnosti B3 Technology, s.r.o., IČ: 07330600, se sídlem Novostavby 126/23, 435 11 Lom (správce dat), za účelem předání dotazu z tohoto formuláře Vámi vybranému inzerentovi a zpětného kontaktování mé osoby. Osobní údaje bude správce zpracovávat manuálně i automaticky přímo prostřednictvím svých zaměstnanců. Informace předané tímto formulářem budou uloženy v databázi správce maximálně po dobu 10 let. Odvolání souhlasu s uložením a zpracováním poskytnutých dat lze e-mailem na info@origo-reality.cz. V případě podezření na neoprávněné použití Vámi poskytnutých údajů máte právo předat podnět k šetření Úřadu pro ochranu osobních údajů. Více informací
Chystáte se prodat nemovitost?
Pomůžeme Vám!

Přihlášení k odběru

Nenechte si ujít nejnovější nabídky prodeje činžovních domů v Úpici.