Pronájem obchodního prostoru, Brno, Kaštanová, 589 m2 (ID: 1713438)

Kaštanová, Brno, Brněnské Ivanovice

180 Kč
/za metr čtvereční / měsíc
Získejte výhodnou HYPOTÉKU Chci hypotéku

Parametry nemovitosti

AdresaKaštanová, Brno, Brněnské Ivanovice
ID01175
StavbaMontovaná
Stav objektuVelmi dobrý
VybavenoNe
Typ objektuPatrový
Druh objektuSamostatný
Lokalita objektuKlidná část obce
Užitná plocha589 m2
Třída energetické náročnostiG - Mimořádně nehospodárná
Výtah
Bezbarierový přístup
Parkování

Origo partneři v Brně

Popis

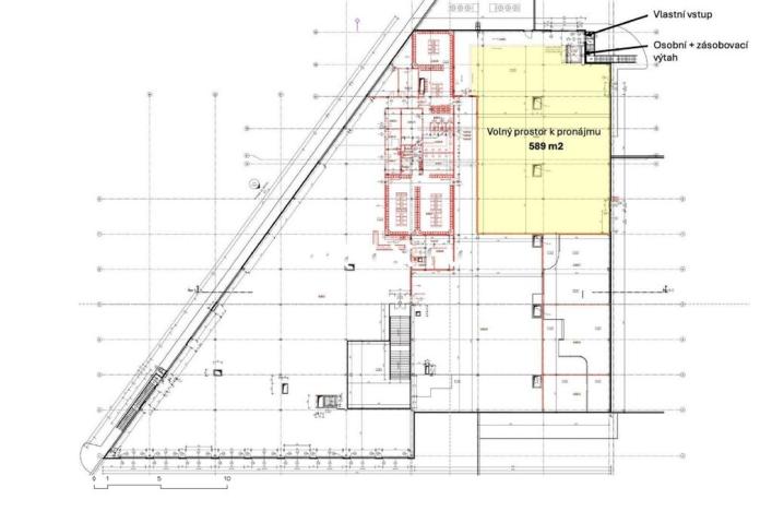
Pronájem obchodního prostoru o výměře 589m2, který se nachází ve 2.NP a má samostatný vstup přes venkovní schodiště a je také zajištěn bezbariérový vstup výtahem (osobní/zásobovací).

Prostor sousedí na patře s nově otevřeným Fitness centrem Gymnation.
Obchodní centrum nabízí široké možnosti využití – prostor je ideální pro maloobchod, showroom, služby, fitness studio nebo například ordinaci. K dispozici je klimatizace, vlastní sociální zázemí a možnost umístění viditelné reklamy na fasádu objektu. Samozřejmostí je bezbariérový přístup a dostatek parkovacích míst pro zákazníky, včetně vyhrazených stání pro osoby se sníženou pohyblivostí.

Lokalita vyniká strategickou dopravní dostupností, v blízkosti jsou napojení na dálnice D1 a D2, a v pěší vzdálenosti je i zastávka MHD.

V případě zájmu nás neváhejte kontaktovat.

Makléř

Máte zájem o tuto nemovistost?

Tímto, v souladu s nařízením Evropského parlamentu a Rady (EU) 2016/679, v platném znění, prohlašuji, že mi je alespoň 16 let a uděluji tak svůj souhlas se zpracováním zadaných údajů (jméno, telefon, e-mail, ip adresa) společnosti B3 Technology, s.r.o., IČ: 07330600, se sídlem Novostavby 126/23, 435 11 Lom (správce dat), za účelem předání dotazu z tohoto formuláře Vámi vybranému inzerentovi a zpětného kontaktování mé osoby. Osobní údaje bude správce zpracovávat manuálně i automaticky přímo prostřednictvím svých zaměstnanců. Informace předané tímto formulářem budou uloženy v databázi správce maximálně po dobu 10 let. Odvolání souhlasu s uložením a zpracováním poskytnutých dat lze e-mailem na info@origo-reality.cz. V případě podezření na neoprávněné použití Vámi poskytnutých údajů máte právo předat podnět k šetření Úřadu pro ochranu osobních údajů. Více informací
Chystáte se prodat nemovitost?
Pomůžeme Vám!

Přihlášení k odběru

Nenechte si ujít nejnovější nabídky pronájmu obchodních prostor v Brně.