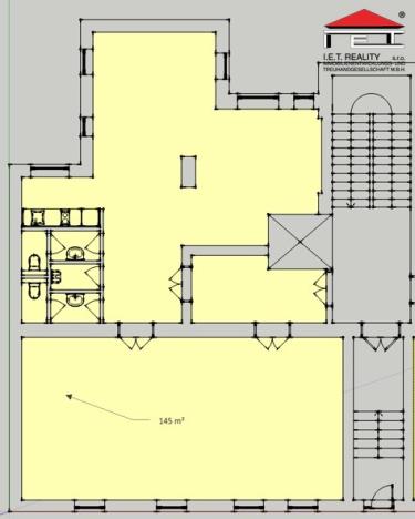
Pronájem kanceláře, Ostrava, Dvořákova, 145 m2

Dvořákova, Moravská Ostrava

Cena na vyžádání
/za měsíc
volejte makléři, + služby 6 100 - včetně el. energie + jistota, + provize RK
Získejte výhodnou HYPOTÉKU Chci hypotéku

Parametry nemovitosti

AdresaDvořákova, Moravská Ostrava
IDIETO838075
StavbaCihlová
Stav objektuPo rekonstrukci
Patro1. z 5
Typ objektuPatrový
Druh objektuV bloku
Lokalita objektuCentrum obce
Užitná plocha145 m2
Třída energetické náročnostiD - Méně úsporná
Ukazatel energetické náročnosti136.6 kWh/m2 za rok
TelekomunikaceInternet, Kabelové rozvody
DopravaMHD
VodaMístní zdroj vody
Výtah
Parkování

Origo partneři v Ostravě

Pojištění a finance

Popis

Rekonstruované, reprezentativní, kancelářské prostory situované v přízemí centra Moravské Ostravy na ul. Dvořákova v blízkosti Sokolské třídy s okny do ulice a také do dvorního traktu s balkonem a parkováním pro 1 auto. Jedná se o samostatnou jednotku v 1.NP se sociálním zázemím a samostatným měřením energií o celkové výměře 145 m2 v levé části patra. Výhodou je možnost parkování ve dvoře u domu a před domem. Prostory k nastěhování ihned.

Makléř

Máte zájem o tuto nemovistost?

Tímto, v souladu s nařízením Evropského parlamentu a Rady (EU) 2016/679, v platném znění, prohlašuji, že mi je alespoň 16 let a uděluji tak svůj souhlas se zpracováním zadaných údajů (jméno, telefon, e-mail, ip adresa) společnosti B3 Technology, s.r.o., IČ: 07330600, se sídlem Novostavby 126/23, 435 11 Lom (správce dat), za účelem předání dotazu z tohoto formuláře Vámi vybranému inzerentovi a zpětného kontaktování mé osoby. Osobní údaje bude správce zpracovávat manuálně i automaticky přímo prostřednictvím svých zaměstnanců. Informace předané tímto formulářem budou uloženy v databázi správce maximálně po dobu 10 let. Odvolání souhlasu s uložením a zpracováním poskytnutých dat lze e-mailem na info@origo-reality.cz. V případě podezření na neoprávněné použití Vámi poskytnutých údajů máte právo předat podnět k šetření Úřadu pro ochranu osobních údajů. Více informací
Chystáte se prodat nemovitost?
Pomůžeme Vám!
Theleadway banner

Přihlášení k odběru

Nenechte si ujít nejnovější nabídky pronájmu kanceláří v Ostravě.