Prodej rodinného domu, Vamberk, Vilímkova, 183 m2

Vilímkova, Vamberk

8 880 000 Kč
/za nemovitost
Hypotéka od 39 688 Kč /měs. Chci hypotéku

Parametry domu

AdresaVilímkova, Vamberk
IDN13422
StavbaCihlová
Stav objektuNovostavba
Typ objektuPatrový
Druh objektuV bloku
Užitná plocha183 m2
Zastavěná plocha112 m2
Podlahová plocha183 m2
Plocha pozemku901 m2
Třída energetické náročnostiC - Úsporná
Elektřina230V, 400V
OdpadVeřejná kanalizace
TopeníPodlahové
DopravaVlak, Silnice, MHD, Autobus
VodaVodovod
Výtah
Parkování

Origo partneři v Vamberku

Popis

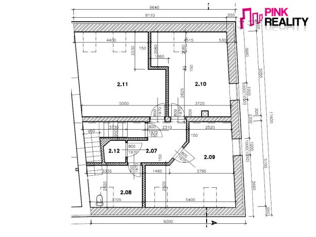
Nabízíme novostavbu rodinného domu 5+kk v obci Vamberk. V přízemí domu se nachází obývací pokoj, ve kterém je komín, dále jídelna s kuchyní, pokoj pro hosty, technická místnost, koupelna s vanou a WC, komora a chodba se schodištěm, ve druhém nadzemním podlaží je ložnice, dva dětské pokoje (v jednom z nich je přivedena voda, elektřina a odpad pro možnost vybudování druhé kuchyně), dále je zde druhá koupelna se sprchovým koutem a WC, komora a chodba. Dům je napojený na elektřinu, kanalizaci, obecní vodovod a je vytápěný tepelným čerpadlem s podlahovým topením. Kupujícímu bude prodán podíl 1/2 pozemku sloužící jako příjezdová komunikace. Předpokládaný termín kolaudace je léto 2025. Pro více informací či prohlídku kontaktujte naši bezplatnou linku.

Makléř

Máte zájem o tento dům?

Tímto, v souladu s nařízením Evropského parlamentu a Rady (EU) 2016/679, v platném znění, prohlašuji, že mi je alespoň 16 let a uděluji tak svůj souhlas se zpracováním zadaných údajů (jméno, telefon, e-mail, ip adresa) společnosti B3 Technology, s.r.o., IČ: 07330600, se sídlem Novostavby 126/23, 435 11 Lom (správce dat), za účelem předání dotazu z tohoto formuláře Vámi vybranému inzerentovi a zpětného kontaktování mé osoby. Osobní údaje bude správce zpracovávat manuálně i automaticky přímo prostřednictvím svých zaměstnanců. Informace předané tímto formulářem budou uloženy v databázi správce maximálně po dobu 10 let. Odvolání souhlasu s uložením a zpracováním poskytnutých dat lze e-mailem na info@origo-reality.cz. V případě podezření na neoprávněné použití Vámi poskytnutých údajů máte právo předat podnět k šetření Úřadu pro ochranu osobních údajů. Více informací
Chystáte se prodat nemovitost?
Pomůžeme Vám!

Přihlášení k odběru

Nenechte si ujít nejnovější nabídky prodeje rodinných domů v Vamberku.