Prodej rodinného domu, Bzová, 230 m2 (ID: 1709185)

Bzová

6 490 000 Kč
/za nemovitost
včetně provize a právních služeb
Hypotéka od 29 006 Kč /měs. Chci hypotéku

Parametry domu

AdresaBzová
ID15953
StavbaSmíšená
Stav objektuPřed rekonstrukcí
Typ objektuPřízemní
Druh objektuSamostatný
Lokalita objektuCentrum obce
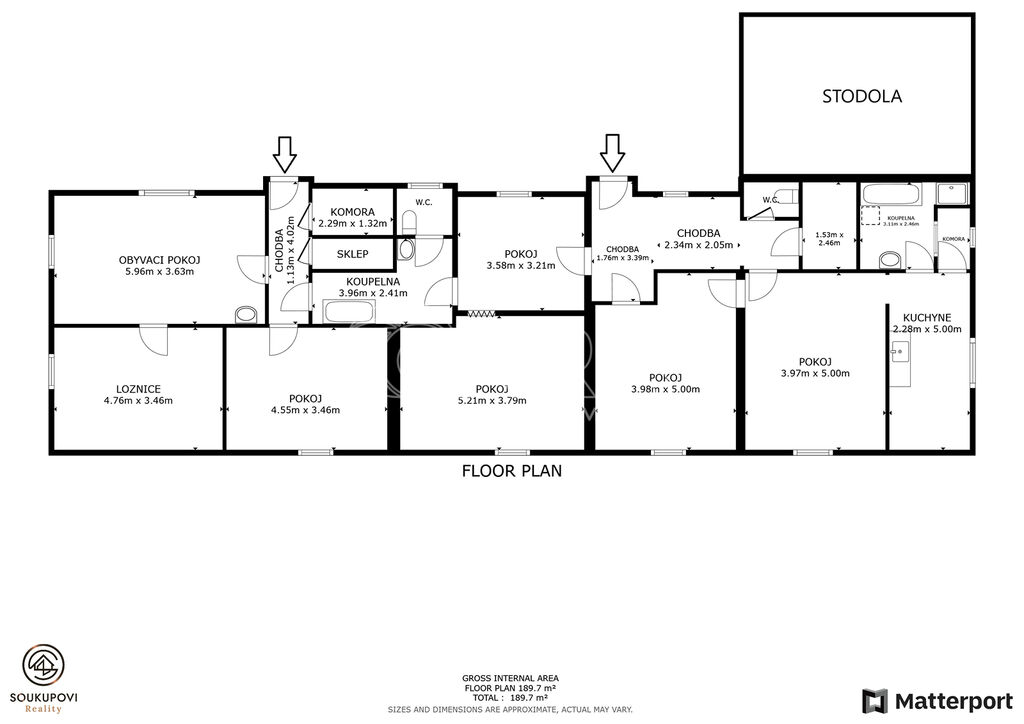
Užitná plocha230 m2
Zastavěná plocha297 m2
Plocha pozemku942 m2
Třída energetické náročnostiG - Mimořádně nehospodárná
Elektřina230V, 400V
OdpadVeřejná kanalizace
KomunikaceAsfaltová
DopravaSilnice, Autobus
VodaVodovod
Garáž
Sklep
Převod do OV
Parkování

Origo partneři v Bzové

Popis

Hledáte nemovitost, kde můžete spojit bydlení s podnikáním nebo investicí? V obci Bzová, jen 9 km od Hořovic a 10 minut od nájezdu na dálnici D5, na vás čeká jedinečný areál se třemi stavbami na jednom pozemku o celkové výměře 942 m².

1. RODINNÝ DŮM:
Původní dům z roku 1919 o užitné ploše přes 230 m² + půda vhodná pro vestavbu (přes 100 m2).
Dva samostatné vchody – dříve užíván jako dvě bytové jednotky.
Určený ke kompletní rekonstrukci – ideální pro vlastní bydlení, zaměstnanecké zázemí nebo další komerční využití.
Stodola, umístěná mezi domem a komerčním prostorem, má nový krov a plechovou krytinu.
K dispozici je kamenný sklep.
Dům je napojen na vodovod a kanalizaci, má vlastní elektroměr - jistič 3x16A

2. KOMERČNÍ PROSTORY:

Dílna (užitná plocha 114 m²)
– postavená v roce 1994, zkolaudovaná pro autoservis/pneuservis.
Výška stropu 5,6 metrů, montážní jáma, příruční sklad, kancelář a sociální zázemí umístěné v patře.
Připraveno na instalaci jeřábu o nosnosti až 7 tun. Vlastní elektroměr (jistič 3 x 40 A), napojení na vodovod a kanalizaci.
Mansardová střecha, krytina živičný šindel.
Na podlahách keramická dlažba a cementový potěr.
Rozvody tlakového vzduchu.
Vytápění - původní kotel na tuhá paliva, ohřev vody elektrický boiler.
Přístup z obecní komunikace, výborné parkování na vlastním pozemku před dílnou.

Garáž (užitná plocha 63 m²)
– z roku 1992, rovněž kolaudovaná pro opravárenskou činnost.
Betonová podlaha, kovová vrata, velmi dobrý technický stav.
Povrch podlahy z betonové mazaniny.

AREÁL JE IDEÁLNÍ PRO:
Autoservis, pneuservis, sklad, lehkou výrobu, kombinaci podnikání a bydlení nebo jako investice s výnosovým potenciálem.

O lokalitě:
Bzová je klidná obec v podhůří Křivoklátska (CHKO Křivoklátsko) obklopená přírodou a zároveň s výbornou dostupností. Leží mezi historickými hrady Točník a Žebrák, se základní občanskou vybaveností – obecní úřad, pošta, knihovna, kulturní dům, sportoviště, potraviny i restaurace. Ostatní služby jsou v blízkém Žebráku nebo Hořovicích.
Díky napojení na dálnici D5 je Praha dosažitelná do 40 minut.

Makléř

Máte zájem o tento dům?

Tímto, v souladu s nařízením Evropského parlamentu a Rady (EU) 2016/679, v platném znění, prohlašuji, že mi je alespoň 16 let a uděluji tak svůj souhlas se zpracováním zadaných údajů (jméno, telefon, e-mail, ip adresa) společnosti B3 Technology, s.r.o., IČ: 07330600, se sídlem Novostavby 126/23, 435 11 Lom (správce dat), za účelem předání dotazu z tohoto formuláře Vámi vybranému inzerentovi a zpětného kontaktování mé osoby. Osobní údaje bude správce zpracovávat manuálně i automaticky přímo prostřednictvím svých zaměstnanců. Informace předané tímto formulářem budou uloženy v databázi správce maximálně po dobu 10 let. Odvolání souhlasu s uložením a zpracováním poskytnutých dat lze e-mailem na info@origo-reality.cz. V případě podezření na neoprávněné použití Vámi poskytnutých údajů máte právo předat podnět k šetření Úřadu pro ochranu osobních údajů. Více informací
Chystáte se prodat nemovitost?
Pomůžeme Vám!

Přihlášení k odběru

Nenechte si ujít nejnovější nabídky prodeje rodinných domů v Bzové.