Remax Monarcha

Pronájem obchodního prostoru, Olomouc, Řepčínská, 480 m2 (ID: 1708115)

Řepčínská, Olomouc

70 000 Kč
/za měsíc
bez DPH, + provize RK, cena k jednání
Získejte výhodnou HYPOTÉKU Chci hypotéku

Parametry nemovitosti

AdresaŘepčínská, Olomouc
ID02812
StavbaCihlová
Stav objektuDobrý
VybavenoAno
Lokalita objektuOkraj obce
Užitná plocha480 m2
Třída energetické náročnostiG - Mimořádně nehospodárná
OdpadVeřejná kanalizace
VodaVodovod, Studna
Zdroj teplé vodyPlynový kotel
Výtah
Bezbarierový přístup

Origo partneři v Olomouci

Popis

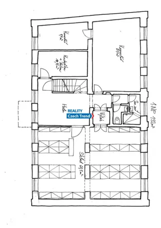
Nabídka pronájmu lukrativního komerčního objektu o užitné ploše 350 m2. Jedná se o třípatrovou budovu blízko centra Olomouce v části Řepčín. Budova se nachází u frekventované komunikace a je dobře přístupná na dálnici směr Mohelnice-Brno - Ostrava. V budově je i výtah. Prostory jsou vhodné pro různé obchodní aktivity, jako například kancelář či showroom, sídlo firmy, prodejní, kancelářské, lékařské ordinace, advokátní služby, kuchyňské studio, atd. Prodejní prostory disponují velkými prosklenými plochami, což zajišťuje dostatek přirozeného světla a vytváří moderní prostředí pro vaše podnikání. K dispozici je také dostatek parkovacích míst pro vaše zákazníky a zaměstnance. Zažijte novou úroveň obchodních prostorů v Olomouci a dejte svému podnikání dostatek prostoru pro růst a rozvoj.
V přízemí jsou prodejní prostory, malá kancelář, sklad a garáž. V 1. patře jsou 1. větší a jedna menší kancelář, sklad, kuchyňka a soc. zařízení . Ve 3. patře se nachází skladovací prostor a strojovna výtahu. Budova je vytápěna třemi druhy topení - plyn, elektřina, klimatizace a je napojena na kanalizaci a vodovod + vlastní studna. Prostor lze po dohodě pronajmout i po částech.
Prostor je možno pronajmout i po částech.
Cena nájemného + DPH se bude odvíjet od velikosti prostoru, který si pronajmete + energie, kauce jeden měsíční nájem, + provize RK jeden měsíční nájem + DPH. V případě zájmu o další informace či prohlídku volejte makléře.
Po dohodě možnost pozdějšího odkupu nemovitosti.

Makléř

Máte zájem o tuto nemovistost?

Tímto, v souladu s nařízením Evropského parlamentu a Rady (EU) 2016/679, v platném znění, prohlašuji, že mi je alespoň 16 let a uděluji tak svůj souhlas se zpracováním zadaných údajů (jméno, telefon, e-mail, ip adresa) společnosti B3 Technology, s.r.o., IČ: 07330600, se sídlem Novostavby 126/23, 435 11 Lom (správce dat), za účelem předání dotazu z tohoto formuláře Vámi vybranému inzerentovi a zpětného kontaktování mé osoby. Osobní údaje bude správce zpracovávat manuálně i automaticky přímo prostřednictvím svých zaměstnanců. Informace předané tímto formulářem budou uloženy v databázi správce maximálně po dobu 10 let. Odvolání souhlasu s uložením a zpracováním poskytnutých dat lze e-mailem na info@origo-reality.cz. V případě podezření na neoprávněné použití Vámi poskytnutých údajů máte právo předat podnět k šetření Úřadu pro ochranu osobních údajů. Více informací
Chystáte se prodat nemovitost?
Pomůžeme Vám!