Pronájem komerční nemovitosti, Lhota Rapotina, 1000 m2

Lhota Rapotina

20 000 Kč
/za měsíc
+ zálohy na energie + provize RK
Získejte výhodnou HYPOTÉKU Chci hypotéku

Parametry nemovitosti

AdresaLhota Rapotina
ID216225LeD
StavbaSmíšená
Stav objektuDobrý
Užitná plocha1000 m2
Zastavěná plocha634 m2
Podlahová plocha1000 m2
Třída energetické náročnostiG - Mimořádně nehospodárná
Elektřina230V, 400V
PlynPlynovod
OdpadVeřejná kanalizace
VodaVodovod

Origo partneři v Lhotě Rapotině

Pojištění a finance

Popis

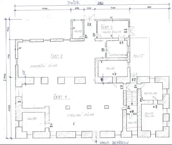
Nabízíme Vám k pronájmu zajímavý komerční objekt, který se nachází v obci Lhota Rapotina, pouhé 4 km od města Boskovice a 13 km od města Blansko.

Tento objekt zaujme zejména svou užitnou plochou cca 1000 m², která je rozdělena do dvou nadzemních podlaží. V minulosti sloužil jako stolařská dílna, ale díky rozvodům elektřiny, které jsou tomu přizpůsobeny, je možné ho využít i pro jiné typy výroby, jako skladovací prostory, kanceláře nebo například lehkou výrobu. Velmi dobrá dopravní dostupnost, klidné prostředí vhodné pro podnikání mimo městský ruch, ale s rychlým dosahem všech služeb a infrastruktury.
Nájem je ve výši 20.000, Kč + zálohy na energie (budou přepsány na nového nájemníka).

Součástí budovy jsou také:
• sociální zázemí (sprchy, toalety),
• kancelářské prostory,
• možnost napojení na zabezpečovací systém,
• dvě možnosti vytápění – plynovým kotlem nebo kotlem na tuhá paliva.

Energetická náročnost budovy: PENB – G

Obec Lhota Rapotina leží ve vzdálenosti 13 km od města Blansko, 35 km od města Brno a 4 km od města Boskovice, které tvoří správní centrum (úřady, školy, školky...) severní poloviny okresu Blansko.

Prodávající si vyhrazuje právo určit kupujícího dle vlastních zvolených kritérií.

Makléř

Máte zájem o tuto nemovistost?

Tímto, v souladu s nařízením Evropského parlamentu a Rady (EU) 2016/679, v platném znění, prohlašuji, že mi je alespoň 16 let a uděluji tak svůj souhlas se zpracováním zadaných údajů (jméno, telefon, e-mail, ip adresa) společnosti B3 Technology, s.r.o., IČ: 07330600, se sídlem Novostavby 126/23, 435 11 Lom (správce dat), za účelem předání dotazu z tohoto formuláře Vámi vybranému inzerentovi a zpětného kontaktování mé osoby. Osobní údaje bude správce zpracovávat manuálně i automaticky přímo prostřednictvím svých zaměstnanců. Informace předané tímto formulářem budou uloženy v databázi správce maximálně po dobu 10 let. Odvolání souhlasu s uložením a zpracováním poskytnutých dat lze e-mailem na info@origo-reality.cz. V případě podezření na neoprávněné použití Vámi poskytnutých údajů máte právo předat podnět k šetření Úřadu pro ochranu osobních údajů. Více informací
Chystáte se prodat nemovitost?
Pomůžeme Vám!
Theleadway banner

Přihlášení k odběru

Nenechte si ujít nejnovější nabídky pronájmu komerčních nemovitostí v Lhotě Rapotině.