Prodej rodinného domu, Husinec, Jeronýmova, 400 m2 (ID: 1707984)

Jeronýmova, Husinec

7 600 000 Kč
/za nemovitost
Hypotéka od 33 967 Kč /měs. Chci hypotéku

Parametry domu

AdresaJeronýmova, Husinec
ID43510
StavbaCihlová
Stav objektuDobrý
VybavenoČástečně
Druh objektuŘadový
Lokalita objektuCentrum obce
Užitná plocha400 m2
Zastavěná plocha1479 m2
Plocha pozemku4324 m2
Plocha zahrady2845 m2
Elektřina230V, 400V
OdpadVeřejná kanalizace
KomunikaceAsfaltová
DopravaSilnice, Autobus
VodaVodovod

Origo partneři v Husinci

Výkup a prodej starého nábytku

Popis

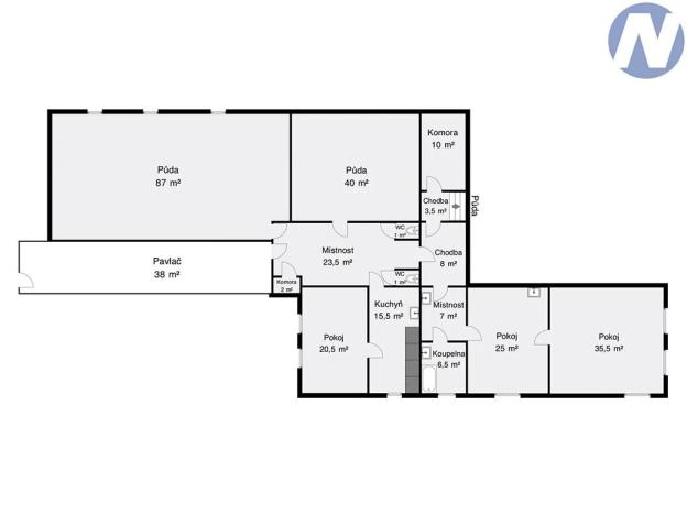
Nabízím k prodeji krásnou zemědělskou usedlost v historickém centru města Husinec. Jedná se o dvoupatrový objekt s uzavřeným dvorem a ovocným sadem. Obytnou část tvoří 3 bytové jednotky a rozsáhlé půdní prostory vhodné k vytvoření dalších bytů. V přízemí se nachází 1 nebytový prostor s vchodem z ulice (obchod). Dům je z části podsklepen. Na obytnou část stavebně navazují hospodářské budovy a uzavírají dvůr do tvaru písmena U. Zde je množství dalších prostor, v přízemí je maštal, konírna, stodola, technické místnosti a v patře je pavlač se sýpkou. Objekt prošel v roce 2000 rekonstrukcí střechy, fasády. Dům je napojen na vodovodní, kanalizační, plynovodní a elektrickou síť. Ohřev vody zajišťují bojlery a vytápění je plynovým kotlem a kamny na tuhá paliva. Na zahradě je kopaná studna s užitkovou vodou. Do dvora je vjezd vraty z ulice a průjezd skrze stodolu do zahrady. Do domu je vchod z ulice přes dřevěná vrata, z průjezdu je vchod do jednotlivých bytů 2+1 a 1+1. Ze dvora je vstup přes pavlač do bytu 3+1 o výměře 144 m2. V místě je veškerá občanská vybavenost. Na prodej je celý objekt. Více informací u makléře.

Makléř

Máte zájem o tento dům?

Tímto, v souladu s nařízením Evropského parlamentu a Rady (EU) 2016/679, v platném znění, prohlašuji, že mi je alespoň 16 let a uděluji tak svůj souhlas se zpracováním zadaných údajů (jméno, telefon, e-mail, ip adresa) společnosti B3 Technology, s.r.o., IČ: 07330600, se sídlem Novostavby 126/23, 435 11 Lom (správce dat), za účelem předání dotazu z tohoto formuláře Vámi vybranému inzerentovi a zpětného kontaktování mé osoby. Osobní údaje bude správce zpracovávat manuálně i automaticky přímo prostřednictvím svých zaměstnanců. Informace předané tímto formulářem budou uloženy v databázi správce maximálně po dobu 10 let. Odvolání souhlasu s uložením a zpracováním poskytnutých dat lze e-mailem na info@origo-reality.cz. V případě podezření na neoprávněné použití Vámi poskytnutých údajů máte právo předat podnět k šetření Úřadu pro ochranu osobních údajů. Více informací
Chystáte se prodat nemovitost?
Pomůžeme Vám!

Přihlášení k odběru

Nenechte si ujít nejnovější nabídky prodeje rodinných domů v Husinci (okr. Prachatice).