Prodej pozemku pro bydlení, Kraslice, Pod lesem, 630 m2

Pod Lesem, Kraslice

1 890 000 Kč
/za nemovitost
Včetně provize a právních služeb
Hypotéka od 8 447 Kč /měs. Chci hypotéku

Parametry pozemku

AdresaPod Lesem, Kraslice
ID600
Plocha pozemku630 m2
Elektřina230V
OdpadVeřejná kanalizace
DopravaSilnice
VodaVodovod

Origo partneři v Kraslicích

Popis

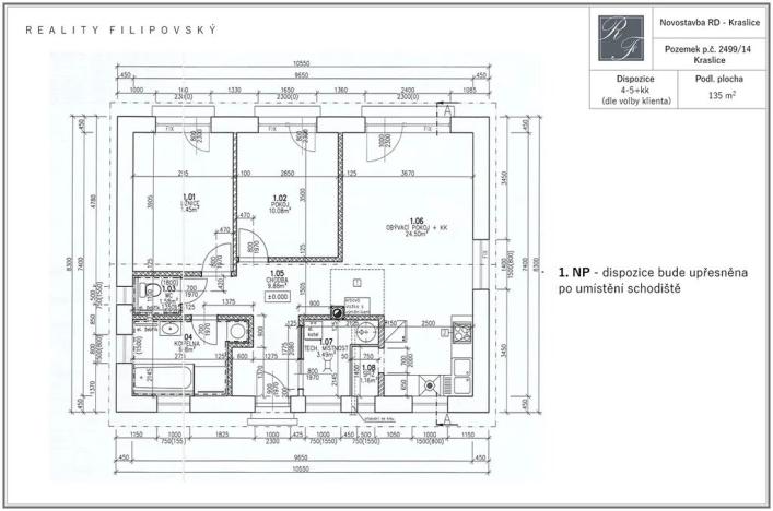
Ojedinělá nabídka pozemku o výměře 630 m2 s vydaným stavebním povolením a zahájenou stavbou (základové pasy) dvoupodlažního rodinného domu s podlahovou plochou 135 m2, který se nachází jen nedaleko oblíbeného lyžařského střediska Bublava - (foto domu ve fotogalerii je ilustrační a jedná se o již realizovaný projekt v jiné lokalitě).

Uvedená cena zahrnuje:
- pozemek
- projekt domu s vydaným stavebním povolením
- dosavadní provedené práce

Na hranici pozemku se nachází elektřina, voda i kanalizace.

Na pořízení této nemovitosti lze pohlížet i jako na mimořádně zajímavou investiční příležitost. Budoucí dům totiž můžete využívat nejen k bydlení, ale také komerčním způsobem, jako nájemní rekreační ubytování.
Výše uvedené lyžařské středisko Bublava nabízí 7 sjezdovek všech kategorií obsloužených šesti vleky a lanovkou s celkovou kapacitou 4 300 osob za hodinu. Doslova ráj zde najdou i běžkaři s výborně udržovanými stopami propojenými přes Krušnohorskou magistrálou s německou Kammloipe. To vše je v letních měsících využíváno pro cyklotrasy s perfektním zázemím a též pro náročnější sjezdové dráhy obsloužené vleky. Velkou přidanou hodnotou je také nedaleké horské středisko Klínovec vzdálený 35 minut jízdy a za pouhých 15 minut dojedete do německého Schönecku. Ten nabízí středisko s lyžováním na červené a modré sjezdovce, jehož součástí je celoroční aquapark a rozsáhlý bikepark pro bikery všech kategorií, od rodin s dětmi, po náročné sjezdaře. Navíc se v Schönecku domluvíte s personálem česky.

V lokalitě je silná poptávka po kvalitním ubytování od českých i zahraničních turistů.

Velmi příznivým faktorem jsou též komfortní dojezdové časy a vzdálenosti z Prahy, Plzně a Karlových Varů s tím, že po kompletním dokončení dálnice Praha – Karlovy Vary je další vzestup cen obdobných nemovitostí v této lokalitě prakticky nevyhnutelný.

Neváhejte mě kontaktovat pro více informací.

Makléř

Máte zájem o tento pozemek?

Tímto, v souladu s nařízením Evropského parlamentu a Rady (EU) 2016/679, v platném znění, prohlašuji, že mi je alespoň 16 let a uděluji tak svůj souhlas se zpracováním zadaných údajů (jméno, telefon, e-mail, ip adresa) společnosti B3 Technology, s.r.o., IČ: 07330600, se sídlem Novostavby 126/23, 435 11 Lom (správce dat), za účelem předání dotazu z tohoto formuláře Vámi vybranému inzerentovi a zpětného kontaktování mé osoby. Osobní údaje bude správce zpracovávat manuálně i automaticky přímo prostřednictvím svých zaměstnanců. Informace předané tímto formulářem budou uloženy v databázi správce maximálně po dobu 10 let. Odvolání souhlasu s uložením a zpracováním poskytnutých dat lze e-mailem na info@origo-reality.cz. V případě podezření na neoprávněné použití Vámi poskytnutých údajů máte právo předat podnět k šetření Úřadu pro ochranu osobních údajů. Více informací
Chystáte se prodat nemovitost?
Pomůžeme Vám!

Přihlášení k odběru

Nenechte si ujít nejnovější nabídky prodeje pozemků pro bydlení v Kraslicích.