Prodej rodinného domu, Rotava, Hornická, 121 m2

Hornická, Rotava

770 000 Kč
/za nemovitost
Hypotéka od 3 441 Kč /měs. Chci hypotéku

Parametry domu

AdresaHornická, Rotava
ID908566
StavbaCihlová
Stav objektuPřed rekonstrukcí
VybavenoNe
Druh objektuSamostatný
Lokalita objektuKlidná část obce
VlastnictvíOsobní
Užitná plocha121 m2
Plocha pozemku121 m2

Origo partneři v Rotavě

Popis

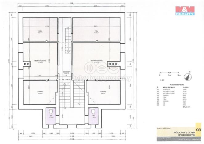
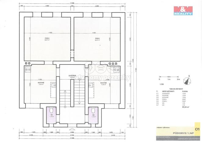
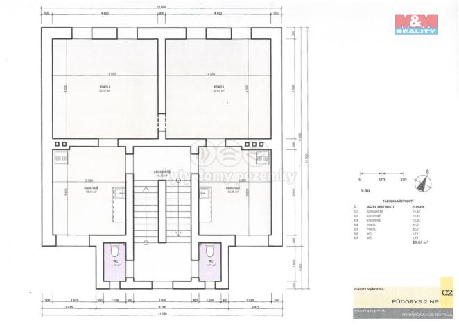
Prodej samostatně stojícího rodinného domu v klidné části obce Rotava. Jde o dům k celkové rekonstrukci. Tato investiční příležitost nabízí možnost přeměny na až šest bytových jednotek o dispozici 1+1, případně využít jako dvougenerační bydlení. Dům je cihlové konstrukce a má celkem čtyři nadzemní podlaží včetně půdy a jedno podzemní. Budova je podsklepená, střecha byla před šesti lety renovována kanadským šindelem a okapy jsou nové. Elektřina je dostupná na hranici pozemku, voda je k dispozici na žádost přípojky od obce. Kanalizace je obecní, ale její stav není znám. Pozemek u domu je pronajat od města a lze jej využívat jako zahradu. Příroda okolo nabízí relax a pěkné procházky spojené s houbařením. Tato nemovitost je ideální pro ty, kteří hledají projekt k rekonstrukci s potenciálem zajímavého zhodnocení nebo bydlení pro velkou rodinu.

Makléř

Máte zájem o tento dům?

Tímto, v souladu s nařízením Evropského parlamentu a Rady (EU) 2016/679, v platném znění, prohlašuji, že mi je alespoň 16 let a uděluji tak svůj souhlas se zpracováním zadaných údajů (jméno, telefon, e-mail, ip adresa) společnosti B3 Technology, s.r.o., IČ: 07330600, se sídlem Novostavby 126/23, 435 11 Lom (správce dat), za účelem předání dotazu z tohoto formuláře Vámi vybranému inzerentovi a zpětného kontaktování mé osoby. Osobní údaje bude správce zpracovávat manuálně i automaticky přímo prostřednictvím svých zaměstnanců. Informace předané tímto formulářem budou uloženy v databázi správce maximálně po dobu 10 let. Odvolání souhlasu s uložením a zpracováním poskytnutých dat lze e-mailem na info@origo-reality.cz. V případě podezření na neoprávněné použití Vámi poskytnutých údajů máte právo předat podnět k šetření Úřadu pro ochranu osobních údajů. Více informací
Chystáte se prodat nemovitost?
Pomůžeme Vám!

Přihlášení k odběru

Nenechte si ujít nejnovější nabídky prodeje rodinných domů v Rotavě.