Prodej rodinného domu, Zborovice, 164 m2

Zborovice, Medlov

2 900 000 Kč
/za nemovitost
Hypotéka od 12 961 Kč /měs. Chci hypotéku

Parametry domu

AdresaZborovice, Medlov
ID97267
StavbaSmíšená
Stav objektuDobrý
Druh objektuŘadový
Lokalita objektuKlidná část obce
Užitná plocha164 m2
Zastavěná plocha165 m2
Podlahová plocha191 m2
Plocha pozemku348 m2
Třída energetické náročnostiG - Mimořádně nehospodárná
OdpadVeřejná kanalizace
TopeníLokální elektrické
DopravaSilnice, MHD
Topné tělesoWAW, Přímotop
Zdroj topeníWAW, Přímotop
Zdroj teplé vodyElektrokotel
Garáž

Origo partneři v Zborovicích

Popis

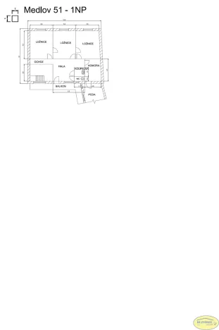
Hledáte dům na vesnici v klidné lokalitě obklopené přírodou, nedaleko lesů a přitom s dostupností cca 15 min. do centra města? Jeden takový tu máme, jedná se o řadový RD s dispozicí 5+1 v obci Medlov, okres Kroměříž. Dům prošel částečnou rekonstrukcí cca před 15ti lety v přízemní části (elektřina, odpady, podlahy, kuchyňská linka) o podlahové ploše 81m2, kde se nachází - vstupní chodba, komora, kuchyně s obývacím prostorem, hala se vstupem na dvůr, pokoj a koupelna se sprochovým koutem i vanou. První patro o podlahové ploše 92m2 je v původním stavu z cca 80-tých let a prošlo pouze udržovacími úpravami, zde se nachází chodba, balkón, 3 pokoje, komora se vstupem na půdu, koupelna se sprchovým koutem a samostatné WC. K domu náleží i garáž, kotelna, prádelna a sklad. Je napojen na elektřinu, plyn, vodovod i kanalizaci. Ohřev vody zajišťuje elektrický bojler, vytápění převážně elektrickými přímotopy či plynovými wafkami. Dům je z větší části zděný - cihly plné pálené v kombinaci s nepálenými, které jsou převážně v přízemní části, někdejsou použity i švárobetonové tvárnice, střecha sedlová - původní stav. Doporučujeme prohlídku. K dispozici ihned. PENB - G .

Makléř

Máte zájem o tento dům?

Tímto, v souladu s nařízením Evropského parlamentu a Rady (EU) 2016/679, v platném znění, prohlašuji, že mi je alespoň 16 let a uděluji tak svůj souhlas se zpracováním zadaných údajů (jméno, telefon, e-mail, ip adresa) společnosti B3 Technology, s.r.o., IČ: 07330600, se sídlem Novostavby 126/23, 435 11 Lom (správce dat), za účelem předání dotazu z tohoto formuláře Vámi vybranému inzerentovi a zpětného kontaktování mé osoby. Osobní údaje bude správce zpracovávat manuálně i automaticky přímo prostřednictvím svých zaměstnanců. Informace předané tímto formulářem budou uloženy v databázi správce maximálně po dobu 10 let. Odvolání souhlasu s uložením a zpracováním poskytnutých dat lze e-mailem na info@origo-reality.cz. V případě podezření na neoprávněné použití Vámi poskytnutých údajů máte právo předat podnět k šetření Úřadu pro ochranu osobních údajů. Více informací
Chystáte se prodat nemovitost?
Pomůžeme Vám!

Přihlášení k odběru

Nenechte si ujít nejnovější nabídky prodeje rodinných domů v Zborovicích.