Prodej rodinného domu, Tachlovice, Olivová, 290 m2

Olivová, Tachlovice

Cena na vyžádání
/za nemovitost
Cena včetně právního a realitního servisu.
Získejte výhodnou HYPOTÉKU Chci hypotéku

Parametry domu

AdresaOlivová, Tachlovice
ID15747
StavbaSmíšená
Stav objektuDobrý
VybavenoČástečně
Typ objektuPatrový
Druh objektuSamostatný
Užitná plocha290 m2
Plocha pozemku1297 m2
Třída energetické náročnostiG - Mimořádně nehospodárná
Elektřina230V, 400V
PlynPlynovod
OdpadVeřejná kanalizace
KomunikaceAsfaltová
TelekomunikaceInternet
DopravaSilnice, Autobus
VodaVodovod
Sklep
Převod do OV
Parkování
Bazén

Origo partneři v Tachlovicích

Popis

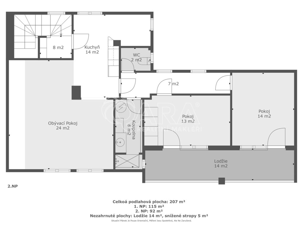
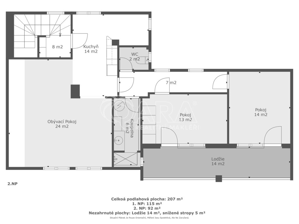
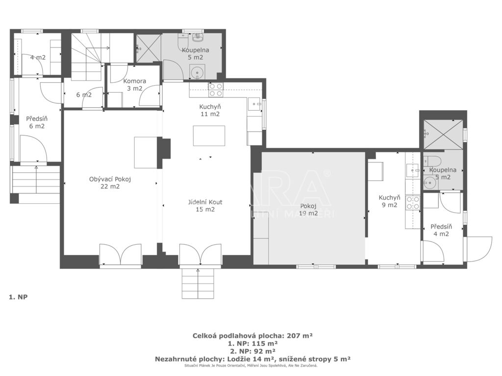
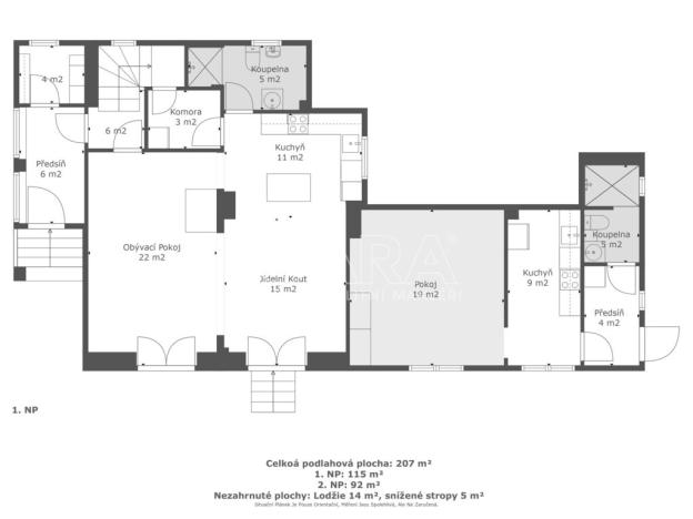
Nabízíme k prodeji zděný dvou generační rodinný dům o obytné ploše 290 m2 s dalšími okolními stavbami a s krásným pozemkem 1297 m2, nacházející se žádané lokalitě v okrese Praha Západ v obci Tachlovice, pouhých 16 km jihozápadně od centra Prahy.

V domě se nacházejí dvě bytové jednotky se samostatným vchodem. Dům je velmi dobře a účelně navržen ke komfortnímu bydlení i odpočinku. První bytová jednotka je o dispozici 2+KK s koupelnou, toaletou, vstupní halou a nachází se v 1 NP domu. Druhá část domu je o dispozici 5+KK se dvěma lodžiemi, dvěma koupelnami s toaletou. Celé přízemí domu je po kompletní rekonstrukci, včetně nově nainstalované moderní kuchyňské linky s vestavěnými spotřebiči. V rámci rekonstrukce byly také v celém domě vyměněny okna za plastové, kompletně nová elektro instalace, rozvody vody, nový plynový kotel s rozvody a radiátory. Ohřev vody zajišťuje nový bojler.


Celá nemovitost má velký potenciál. Na pozemku se nachází další více účelová zděná stavba s menší zařízenou hospůdkou se samostatným vstupem z ulice s prostornou kanceláří a sociálním zařízením. Tuto budovu lze využívat pro podnikání s vlastním zázemím, nebo zde můžete vybudovat samostatnou bytovou jednotku.

Pozemek je kompletně oplocen. Dům je napojen na veškeré inženýrské sítě.

Přístupová komunikace je obecní a zpevněná asfaltovým povrchem.

DOHODA O CENĚ MOŽNÁ.

Nemovitost se nachází ve velmi žádané lokalitě v těsné blízkosti Prahy 15 min od letiště, 20 min autobusem linka č. 310 od Metra Zličín.

V místě je výborná občanská vybavenost. V obci je základní i mateřská škola, hřiště, restaurace, obchod s potravinami, úřad a pošta. Blízké okolí nabízí široké sportovní i volnočasové aktivity.

Velmi rád vás osobně touto nemovitostí provedu, neváhejte a objednejte si prohlídku.

Nemovitost je možné financovat hypotéčním úvěrem.

Makléř

Máte zájem o tento dům?

Tímto, v souladu s nařízením Evropského parlamentu a Rady (EU) 2016/679, v platném znění, prohlašuji, že mi je alespoň 16 let a uděluji tak svůj souhlas se zpracováním zadaných údajů (jméno, telefon, e-mail, ip adresa) společnosti B3 Technology, s.r.o., IČ: 07330600, se sídlem Novostavby 126/23, 435 11 Lom (správce dat), za účelem předání dotazu z tohoto formuláře Vámi vybranému inzerentovi a zpětného kontaktování mé osoby. Osobní údaje bude správce zpracovávat manuálně i automaticky přímo prostřednictvím svých zaměstnanců. Informace předané tímto formulářem budou uloženy v databázi správce maximálně po dobu 10 let. Odvolání souhlasu s uložením a zpracováním poskytnutých dat lze e-mailem na info@origo-reality.cz. V případě podezření na neoprávněné použití Vámi poskytnutých údajů máte právo předat podnět k šetření Úřadu pro ochranu osobních údajů. Více informací
Chystáte se prodat nemovitost?
Pomůžeme Vám!

Přihlášení k odběru

Nenechte si ujít nejnovější nabídky prodeje rodinných domů v Tachlovicích.