Prodej rodinného domu, Ostrovec, 44 m2 (ID: 1688106)

Ostrovec, Dědovice

3 750 000 Kč
/za nemovitost
Hypotéka od 16 760 Kč /měs. Chci hypotéku

Parametry domu

AdresaOstrovec, Dědovice
ID530675
StavbaSmíšená
Stav objektuProjekt
Užitná plocha44 m2
Plocha pozemku187 m2
Plocha zahrady162 m2
Třída energetické náročnostiB - Velmi úsporná
Výtah
Parkování

Origo partneři v Ostrovci

Popis

Den otevřených dveří se koná v neděli 23.11.2025 od 10–16 hod.

Svůj termín si prosím zarezervujte předem


Chaty Na Rybárně – Vaše místo pro relax i chytrou investici


Projekt Chaty Na Rybárně přináší jedinečnou příležitost vlastnit moderní rekreační chatu v jedné z nejoblíbenějších rekreačních oblastí v Česku. Chaty jsou navrženy pro celoroční užívání, což umožňuje nejen využívat je k vlastní rekreaci v každém ročním období, ale také je pronajímat dle potřeby.


Výnosnost pronájmu dle slov nových vlastníků dosahuje nadprůměrných 10 %, což činí návratnost investice velmi příznivou.


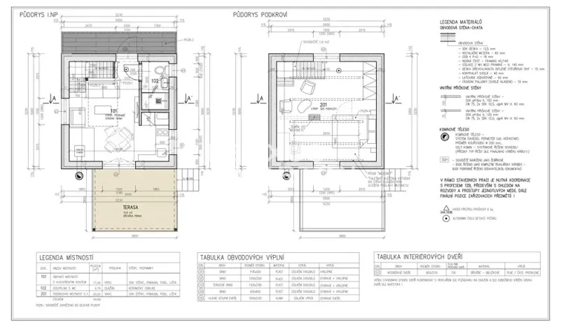
Každá chata s obytnou plochou 44 m² je navržena tak, aby nabízela maximální komfort pro krátkodobé i dlouhodobé pobyty. V přízemí se nachází obývací prostor s kuchyňským koutem, koupelnou a přímým vstupem na terasu s výhledem na okolní lesy, horní patro pak nabízí prostornou ložnici. Moderní koupelna a stylový interiér zajišťují vysoký standard rekreačního bydlení. Chaty Jsou vybaveny klimatizací, úložným uzamykatelným boxem a přípravou na 3 patro. Ke každé chatě je přiděleno parkovací stání v hodnotě 85 000,-Kč, které není zahrnuto v ceně.

Součástí areálu je také zastřešený bazén se slanou vodou a sauna, což zvyšuje atraktivitu místa nejen pro majitele, ale i pro případné hosty v rámci pronájmu.

Výhodná poloha a skvělá dostupnost


Chaty se nacházejí v blízkosti Orlické přehrady, která patří mezi nejoblíbenější rekreační oblasti v Česku. Orlík láká na vodní sporty, rybaření, cyklistiku i pěší turistiku a díky své rozmanitosti je atraktivní po celý rok.

Doprava do této oblasti je pohodlná a rychlá. Cesta z Prahy na místo trvá pouhých 58 minut díky novému úseku dálnice D4, který byl dokončen v prosinci 2024.


Oblast s bohatými možnostmi volnočasových aktivit

Kromě Orlíku stojí za návštěvu také hrad Zvíkov, lázeňská obec Vráž s novogotickým zámečkem nebo historické město Písek, které je vzdálené pouhých 20 minut. Okolí je ideální pro cyklistiku, pěší turistiku, rybaření a houbaření, zatímco milovníci historie ocení kulturní památky v blízkém okolí. Přímo v Dědovicích je k dispozici menší obchod s potravinami a několik restaurací.

Poslední příležitost stát se majitelem


Tento projekt spojuje komfort soukromého rekreačního bydlení s možností chytré investice. Pokud hledáte místo pro svůj volný čas nebo nemovitost, která vám bude vydělávat, nyní je ta pravá chvíle jednat. Poslední dvě jednotky čekají právě na vás – nenechte si ujít tuto jedinečnou příležitost!

Makléř

Máte zájem o tento dům?

Tímto, v souladu s nařízením Evropského parlamentu a Rady (EU) 2016/679, v platném znění, prohlašuji, že mi je alespoň 16 let a uděluji tak svůj souhlas se zpracováním zadaných údajů (jméno, telefon, e-mail, ip adresa) společnosti B3 Technology, s.r.o., IČ: 07330600, se sídlem Novostavby 126/23, 435 11 Lom (správce dat), za účelem předání dotazu z tohoto formuláře Vámi vybranému inzerentovi a zpětného kontaktování mé osoby. Osobní údaje bude správce zpracovávat manuálně i automaticky přímo prostřednictvím svých zaměstnanců. Informace předané tímto formulářem budou uloženy v databázi správce maximálně po dobu 10 let. Odvolání souhlasu s uložením a zpracováním poskytnutých dat lze e-mailem na info@origo-reality.cz. V případě podezření na neoprávněné použití Vámi poskytnutých údajů máte právo předat podnět k šetření Úřadu pro ochranu osobních údajů. Více informací
Chystáte se prodat nemovitost?
Pomůžeme Vám!

Přihlášení k odběru

Nenechte si ujít nejnovější nabídky prodeje rodinných domů v Ostrovci.