Pronájem obchodního prostoru, Praha - Nusle, Lomnického, 45 m2 (ID: 1683176)

Lomnického, Praha, Nusle

19 €
/za metr čtvereční / měsíc
Poplatky za služby 120 Kč/m2/měsíc (včetně záloh na elektřinu) + DPH, cena k jednání
Získejte výhodnou HYPOTÉKU Chci hypotéku

Parametry nemovitosti

AdresaLomnického, Praha, Nusle
ID00098-2
StavbaSkeletová
Stav objektuNovostavba
Patro1.
Užitná plocha45 m2
Třída energetické náročnostiG - Mimořádně nehospodárná

Origo partneři v Praze 4

Stěhovací služby

Výkup a prodej starého nábytku

Popis

Moderní a prémiová budova PANKRÁC PRIME nabízí prvotřídní kanceláře několik obchodních prostor k pronájmu spolu s parkovacími místy v garáži. Do kanceláře se dostanete přes unikátní velkorysou a designově velmi čistou a propracovanou vstupní lobby. Celková plocha budovy je téměř 10,000 m2.

Budova byla navržena studiem Mimolimit architektky Báry Škorpilové.

Vaše nové kanceláře či prostory jsou umístěné jen pár kroků od stanice metra linky C "Pražského povstání" a v blízkosti pražské magistrály, která navazuje na dálnici D1.

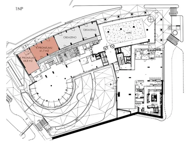
Nabízíme k pronájmu obchodní prostor / showroom / kancelář o velikosti 44,80 m2 v 1.NP:
• Dispozičně otevřený prostor
• Samostatný vstup z ulice
• Velká okna / výlohy
• Osvětlení
• Zdvojené podlahy
• Sdílené toalety

Technická specifikace budovy:
• klimatizace
• centrální vzduchotechnika
• otevíratelná okna
• zdvojené podlahy
• přístup do budovy 24/7
• ostraha budovy

Parkování: Budova nabízí parkovací stání v garáži. Stání k této jednotce je na dotaz.

Poplatky za služby: 120 Kč/m2/měsíc (zahrnuje zálohy na elektřinu) + DPH.

K dispozici ihned.

NÁJEMCE NEHRADÍ PROVIZI.

Makléř

Máte zájem o tuto nemovistost?

Tímto, v souladu s nařízením Evropského parlamentu a Rady (EU) 2016/679, v platném znění, prohlašuji, že mi je alespoň 16 let a uděluji tak svůj souhlas se zpracováním zadaných údajů (jméno, telefon, e-mail, ip adresa) společnosti B3 Technology, s.r.o., IČ: 07330600, se sídlem Novostavby 126/23, 435 11 Lom (správce dat), za účelem předání dotazu z tohoto formuláře Vámi vybranému inzerentovi a zpětného kontaktování mé osoby. Osobní údaje bude správce zpracovávat manuálně i automaticky přímo prostřednictvím svých zaměstnanců. Informace předané tímto formulářem budou uloženy v databázi správce maximálně po dobu 10 let. Odvolání souhlasu s uložením a zpracováním poskytnutých dat lze e-mailem na info@origo-reality.cz. V případě podezření na neoprávněné použití Vámi poskytnutých údajů máte právo předat podnět k šetření Úřadu pro ochranu osobních údajů. Více informací
Chystáte se prodat nemovitost?
Pomůžeme Vám!