Prodej domu na klíč, Pasohlávky, 134 m2

Pasohlávky

11 285 750 Kč
/za nemovitost
včetně DPH, včetně provize
Hypotéka od 50 440 Kč /měs. Chci hypotéku

Parametry domu

AdresaPasohlávky
ID53014
StavbaCihlová
Stav objektuNovostavba
Druh objektuŘadový
Lokalita objektuKlidná část obce
Užitná plocha134 m2
Plocha pozemku244 m2
Třída energetické náročnostiA - Mimořádně úsporná
Ukazatel energetické náročnosti15 kWh/m2 za rok
Nízkoenergetický

Origo partneři v Pasohlávkách

Pojištění a finance

Popis

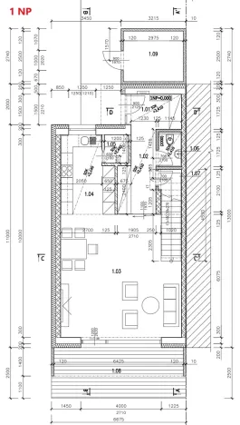
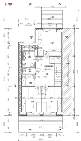
Výstavba nového cihlového řadového rodinného domu č. 15 v Pasohlávkách. Dům je energeticky velmi úsporný (třída A). Jedná se o řadový rodinný dům 4+kk na pobřeží Mušovských jezer ve druhé etapě výstavby projektu Rezidence Pasohlávky. Dům nabídne moderní a funkční dispozice, maximálně využitý prostor, dvě parkovací místa a pohodlné bydlení pro celou rodinu. Navržená dispozice může mít několik modifikací, jejich návrhy rádi zašleme, například až na 5+kk.

Makléř

Máte zájem o tento dům?

Tímto, v souladu s nařízením Evropského parlamentu a Rady (EU) 2016/679, v platném znění, prohlašuji, že mi je alespoň 16 let a uděluji tak svůj souhlas se zpracováním zadaných údajů (jméno, telefon, e-mail, ip adresa) společnosti B3 Technology, s.r.o., IČ: 07330600, se sídlem Novostavby 126/23, 435 11 Lom (správce dat), za účelem předání dotazu z tohoto formuláře Vámi vybranému inzerentovi a zpětného kontaktování mé osoby. Osobní údaje bude správce zpracovávat manuálně i automaticky přímo prostřednictvím svých zaměstnanců. Informace předané tímto formulářem budou uloženy v databázi správce maximálně po dobu 10 let. Odvolání souhlasu s uložením a zpracováním poskytnutých dat lze e-mailem na info@origo-reality.cz. V případě podezření na neoprávněné použití Vámi poskytnutých údajů máte právo předat podnět k šetření Úřadu pro ochranu osobních údajů. Více informací
Chystáte se prodat nemovitost?
Pomůžeme Vám!
Theleadway banner

Přihlášení k odběru

Nenechte si ujít nejnovější nabídky prodeje domů na klíč v Pasohlávkách.