Prodej rodinného domu, Kladno, Jeronýmova, 135 m2

Jeronýmova, Kladno, Kročehlavy

12 995 000 Kč
/za nemovitost
Kupní cena je včetně právního servisu, advokátní úschovy kupní ceny, zajištění HÚ, odměny RK.
Hypotéka od 58 080 Kč /měs. Chci hypotéku

Parametry domu

AdresaJeronýmova, Kladno, Kročehlavy
ID0023-NP08395
StavbaCihlová
Stav objektuNovostavba
Druh objektuV bloku
Lokalita objektuOkraj obce
Užitná plocha135 m2
Zastavěná plocha93 m2
Podlahová plocha135 m2
Plocha pozemku213 m2
Třída energetické náročnostiB - Velmi úsporná
Elektřina230V
OdpadVeřejná kanalizace
KomunikaceAsfaltová
DopravaDálnice, Silnice, MHD, Autobus
VodaVodovod
Topné tělesoInfrapanel, Krbová kamna
Zdroj teplé vodyBojler - elektro

Origo partneři v Kladně

Popis

Nabízíme prodej moderní novostavby v Kladně, Jeronýmova 3317, s možností dvougeneračního bydlení, fotovoltaikou a výborným spojením s Prahou.

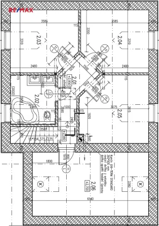
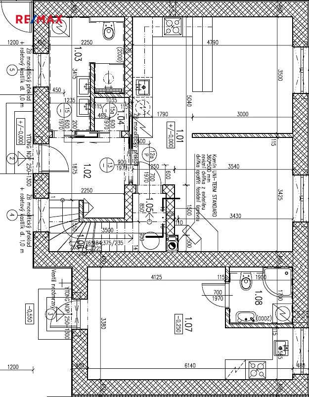
Jedná se o rodinný dům o dvou nadzemních podlažích, který zaujme nejen svým kvalitním provedením, ale také praktickým dispozičním řešením. Dům je vhodný jak pro větší rodinu, tak i pro dvougenerační bydlení – nabízí až 5 ložnic, 3 plně vybavené koupelny, obývací pokoj navazující na kuchyň s menší jídelnou a promyšlené dispoziční řešení, které zajišťuje soukromí i pohodlí pro všechny členy domácnosti. Součástí domu je moderní fotovoltaický systém s bateriovým úložištěm, který výrazně snižuje náklady na energie a zajišťuje soběstačnost.
Na dům navazuje nově zhotovený přístřešek se sklípkem, který je určen pro pohodlné posezení majitelů za jakéhokoliv počasí. Ten zatím čeká na svou kolaudaci.
V domě je i samostatná jednotka s vlastním vchodem, koupelnou s wc a malou kuchyňkou.

Ohřev TUV a topné panely jsou elektrické. Dům má izolační trojskla a kvalitní izolační zateplení.
Nemovitost se nachází na menším, ale prakticky řešeném pozemku, který i přes svou velikost nabízí dostatek soukromí a možnosti venkovního využití. Celý dům působí velmi příjemným a útulným dojmem – ideální volba pro ty, kteří hledají klidné, ale moderní bydlení.

Velkou předností je výborné dopravní spojení s Prahou díky dálnici D7, po které se do centra hlavního města dostanete během několika desítek minut. Lokalita tak ideálně kombinuje klidné bydlení mimo městský ruch s rychlým dosahem všech služeb a pracovních příležitostí v metropoli.

Pro více informací či sjednání prohlídky nás neváhejte kontaktovat. Prodávající si vyhrazuje právo vybrat kupujícího na základě jím zvolených kritérií.

Makléř

Máte zájem o tento dům?

Tímto, v souladu s nařízením Evropského parlamentu a Rady (EU) 2016/679, v platném znění, prohlašuji, že mi je alespoň 16 let a uděluji tak svůj souhlas se zpracováním zadaných údajů (jméno, telefon, e-mail, ip adresa) společnosti B3 Technology, s.r.o., IČ: 07330600, se sídlem Novostavby 126/23, 435 11 Lom (správce dat), za účelem předání dotazu z tohoto formuláře Vámi vybranému inzerentovi a zpětného kontaktování mé osoby. Osobní údaje bude správce zpracovávat manuálně i automaticky přímo prostřednictvím svých zaměstnanců. Informace předané tímto formulářem budou uloženy v databázi správce maximálně po dobu 10 let. Odvolání souhlasu s uložením a zpracováním poskytnutých dat lze e-mailem na info@origo-reality.cz. V případě podezření na neoprávněné použití Vámi poskytnutých údajů máte právo předat podnět k šetření Úřadu pro ochranu osobních údajů. Více informací
Chystáte se prodat nemovitost?
Pomůžeme Vám!

Přihlášení k odběru

Nenechte si ujít nejnovější nabídky prodeje rodinných domů v Kladně.