Prodej rodinného domu, Kosmonosy, 105 m2 (ID: 1668090)

Kosmonosy

12 999 000 Kč
/za nemovitost
Hypotéka od 58 098 Kč /měs. Chci hypotéku

Parametry domu

AdresaKosmonosy
ID250121
StavbaDřevěná
Stav objektuVe výstavbě
VybavenoNe
Druh objektuSamostatný
Užitná plocha105 m2
Zastavěná plocha84 m2
Podlahová plocha105 m2
Plocha pozemku589 m2
Plocha zahrady505 m2
Třída energetické náročnostiB - Velmi úsporná
Ukazatel energetické náročnosti68 kWh/m2 za rok
Elektřina230V
OdpadVeřejná kanalizace
KomunikaceZpevněná
DopravaDálnice, Silnice, Autobus
VodaVodovod
Topné tělesoPodlahové vytápění
Zdroj topeníTepelné čerpadlo
Parkování

Origo partneři v Kosmonosech

Popis

Představuji k prodeji nově vznikající novostavbu rodinného domu č. 21 v rámci projektu Domy pod platany v Kosmonosích u Mladé Boleslavi.

Kompletní informace o projektu, o samotném domě i o standardech a nadstandardech najdete na webových stránkách projektu: Domy pod platany.

V rámci tohoto projektu vzniká na rovinaté louce jen pár minut od centra Mladé Boleslavi komplex 21 nových rodinných domů navržených renomovaným studiem Hora Architekti s.r.o. Jedná se o moderní dřevostavby realizované specializovanou stavební společností Vexta, která poskytuje na skelet domu 50 letou záruku.

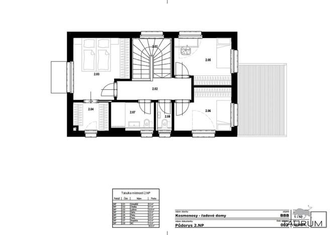
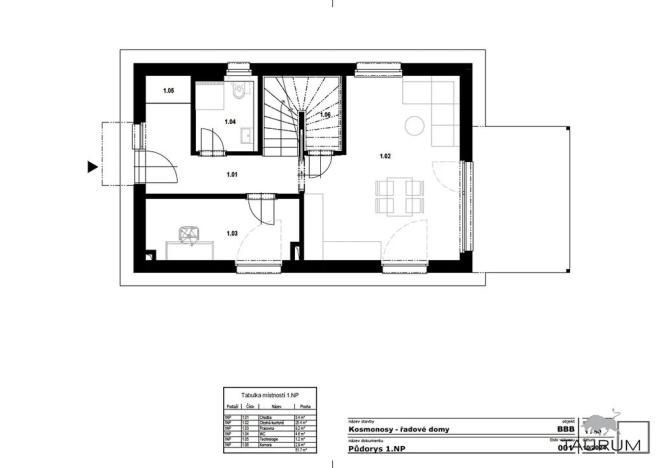
Dispozice domu:
Dům č. 21 je samostatný dům o dispozici 5+kk a ploše 105 m2, stojící na pozemku o výměře 589 m2. Je možné objednat i prodlouženou variantu domu, která má plochu domu 120 m2. V domě jsou 4 samostatné pokoje, 1 obývací pokoj s kuchyňským prostorem, 2x koupelna s WC, další samostatné WC, šatna, úložný prostor pod schodištěm a místo pro technologie.

Technické informace:
Domy jsou již v základu vybaveny kvalitními standardy a technologiemi a dále je možné vybírat ze široké nabídky nadstandardního vybavení.
Vytápění a ohřev vody jsou zajištěny tepelným čerpadlem vzduch voda zn. Vaillant se zásobníkem na teplou vodu a s možností chlazení v létě. Topným (chladícím) prvkem jsou podlahová teplovodní tělesa. Okna v domě jsou plastová vybavená trojskly. Dům je vybaven tepelnou i zvukovou izolací. Dům je napojen na obecní vodovod, kanalizaci i přípojku elektřiny. Součástí ceny domu je i oplocení, ručně ovládaná otevírací brána, štěrková příprava na chodníčky kolem domu a parkovací stání. Kompletní technické informace o domě a o vybavení obsaženém ve standardu je ke stažení na webových stránkách projektu. Stejně tak i seznam volitelných nadstandardů.

Časový průběh a financování:
Nyní do konce roku 2025 budou na pozemku vybudovány komunikace a přípojky sítí. Samotná výstavba domu dle objednávky klienta může započít na začátku 2026. Realizace domu trvá přibližně 5 měsíců, dům tedy může být hotový do poloviny roku 2026.
S klienty bude postupně podepisována rezervační smlouva, smlouva o smlouvě budoucí a následně kupní smlouva na pozemek a smlouva o dílo na výstavbu domu. Dům je možné financovat prostřednictvím hypotečního úvěru.

Pro koupi domu zajišťujeme s partnery kompletní realitní a právní servis a financování hypotečním úvěrem.
Kontaktujte mě prosím pro další informace:
Jan Štěpánek
TAURUM reality

Uvedené výměry jsou orientační

Makléř

Máte zájem o tento dům?

Tímto, v souladu s nařízením Evropského parlamentu a Rady (EU) 2016/679, v platném znění, prohlašuji, že mi je alespoň 16 let a uděluji tak svůj souhlas se zpracováním zadaných údajů (jméno, telefon, e-mail, ip adresa) společnosti B3 Technology, s.r.o., IČ: 07330600, se sídlem Novostavby 126/23, 435 11 Lom (správce dat), za účelem předání dotazu z tohoto formuláře Vámi vybranému inzerentovi a zpětného kontaktování mé osoby. Osobní údaje bude správce zpracovávat manuálně i automaticky přímo prostřednictvím svých zaměstnanců. Informace předané tímto formulářem budou uloženy v databázi správce maximálně po dobu 10 let. Odvolání souhlasu s uložením a zpracováním poskytnutých dat lze e-mailem na info@origo-reality.cz. V případě podezření na neoprávněné použití Vámi poskytnutých údajů máte právo předat podnět k šetření Úřadu pro ochranu osobních údajů. Více informací
Chystáte se prodat nemovitost?
Pomůžeme Vám!

Přihlášení k odběru

Nenechte si ujít nejnovější nabídky prodeje rodinných domů v Kosmonosech.