Prodej vily, Králíky, Hřbitovní, 133 m2

Hřbitovní, Králíky

5 730 000 Kč
/za nemovitost
vč. provize RK
Hypotéka od 25 610 Kč /měs. Chci hypotéku

Parametry domu

AdresaHřbitovní, Králíky
IDN111133
StavbaSmíšená
Stav objektuDobrý
VybavenoČástečně
Druh objektuSamostatný
Lokalita objektuKlidná část obce
Užitná plocha133 m2
Zastavěná plocha68 m2
Plocha pozemku1592 m2
Třída energetické náročnostiG - Mimořádně nehospodárná
Elektřina230V, 400V
PlynPlynovod
OdpadVeřejná kanalizace
TopeníLokální plynové, Lokální tuhá paliva
KomunikaceAsfaltová
DopravaVlak, Silnice, Autobus
VodaMístní zdroj vody, Vodovod
Sklep
Bezbarierový přístup

Origo partneři v Králíkách

Popis

Nabízíme k prodeji půvabnou vilku z roku 1919 (užitná plocha cca 133 m2) s přístavbou (cca 24,32 m2), půdou a se zahradou 1.524m2. Budova byla téměř nepřetržitě obývána a pečlivě udržována. Zastavěná plocha domu je cca 68 m2.

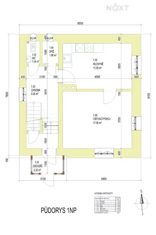
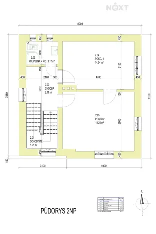
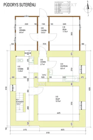
Dispozici lze detailněji nalézt na přiložených plánech:
• Přízemí (cca 44,9 m2 ): Vstup z ulice přes zádveří do vstupní chodby se schodištěm. Z chodby je přístupné WC, spíž a kuchyň, odkud vedou dveře do obývacího pokoje.
• První patro (cca 47,27 m2 ): Z centrálního schodiště a chodby se dostanete do koupelny a do dvou vzájemně propojených pokojů.
• Půda: Nezateplená půda nabízí úložné prostory a malý letní pokojík pro přespání.
• Suterén (cca 41,55 m2): Tento prostor je částečně nad terénem. Z chodby je přístupná větší místnost (sklep), uklízecí kout s umyvadlem a WC, a také prostor s plynovým kotlem a kombinovaným zásobníkem TUV, kde se nachází pračka.
• Přístavba (cca 24,32 m2): Dřevěná nezateplená přístavba sloužící jako zahradní domek, dílna či sklad je přístupná jak z RD, tak ze zahrady. V části dílny se nachází vlastní studna a verandu lze využít pro posezení.

Údržba a technické parametry:
Dům byl zakoupen v roce 2000 a od té doby prošel řadou rekonstrukcí, včetně výměny střešní krytiny (plechová šablona s imitací tašky)a obnovy fasády mezi lety 2001-2003. Úprava koupelen a kuchyně cca 2005. Topení a ohřev TUV zajišťuje plynový kotel s kombinovaným zásobníkem Dražice (cca 180 l), radiátory s termoregulačními hlavicemi lze ovládat pomocí aplikace. Většina vedení již v měděných trubkách. Objekt je napojen na obecní vodovod a kanalizaci, má také vlastní studnu pro zalévání zahrady. Plyn zaveden. Venkovní okna budou vyžadovat výměnu, jinak je objekt v dobrém technickém stavu. Dům si zachoval atmosféru starších ač idylických časů a většinu původních prvků, jako jsou vnitřní dveře, špaletová okna, prkenné podlahy aj. Místnosti jsou díky původnímu tvaru oken dostatečně prosvětlené.

Zahrada:
Součástí domu je rozlehlá stinná zahrada s množstvím ovocných stromů a keřů (jabloně, třešně, hrušně, slivoně, rybíz, maliny, angrešt, ostružiny, mišpule, muchovník, áronie, dřín) a okrasných rostlin (pivoňky, růže, floxy, bohyšky, kakosty).

Lokalita:
V okolí najdete veškeré služby (obchody, ZŠ, MŠ, lékaře, restaurace). V Králíkách se nachází nový sportovní areál a koupaliště, plánuje se výstavba nové sportovní haly. Okolní příroda nabízí možnosti cykloturistiky a běžkování. V blízkosti je poutní areál Hora Matky Boží a odpočinkový areál Dolní Morava, přehrada na Pastvinách je vzdálena 21 km.

Dům je ideální pro trvalé bydlení, rekreaci nebo i případně pro pronájem. Financování zajistíme s naším prověřeným specialistou - řešení v podobě nezávislé konzultace se zkušenou hypoteční konzultantkou s péčí připraví hypotéku přesně na míru vašim potřebám. Přijďte na prohlídku! Pro komunikaci uvádějte evidenční číslo zakázky N111133.

Makléř

Máte zájem o tento dům?

Tímto, v souladu s nařízením Evropského parlamentu a Rady (EU) 2016/679, v platném znění, prohlašuji, že mi je alespoň 16 let a uděluji tak svůj souhlas se zpracováním zadaných údajů (jméno, telefon, e-mail, ip adresa) společnosti B3 Technology, s.r.o., IČ: 07330600, se sídlem Novostavby 126/23, 435 11 Lom (správce dat), za účelem předání dotazu z tohoto formuláře Vámi vybranému inzerentovi a zpětného kontaktování mé osoby. Osobní údaje bude správce zpracovávat manuálně i automaticky přímo prostřednictvím svých zaměstnanců. Informace předané tímto formulářem budou uloženy v databázi správce maximálně po dobu 10 let. Odvolání souhlasu s uložením a zpracováním poskytnutých dat lze e-mailem na info@origo-reality.cz. V případě podezření na neoprávněné použití Vámi poskytnutých údajů máte právo předat podnět k šetření Úřadu pro ochranu osobních údajů. Více informací
Chystáte se prodat nemovitost?
Pomůžeme Vám!

Přihlášení k odběru

Nenechte si ujít nejnovější nabídky prodeje vil v Králíkách (okr. Ústí nad Orlicí).